3 Bedroom Semi-Detached
£485,000
Chitterwell, Wellington

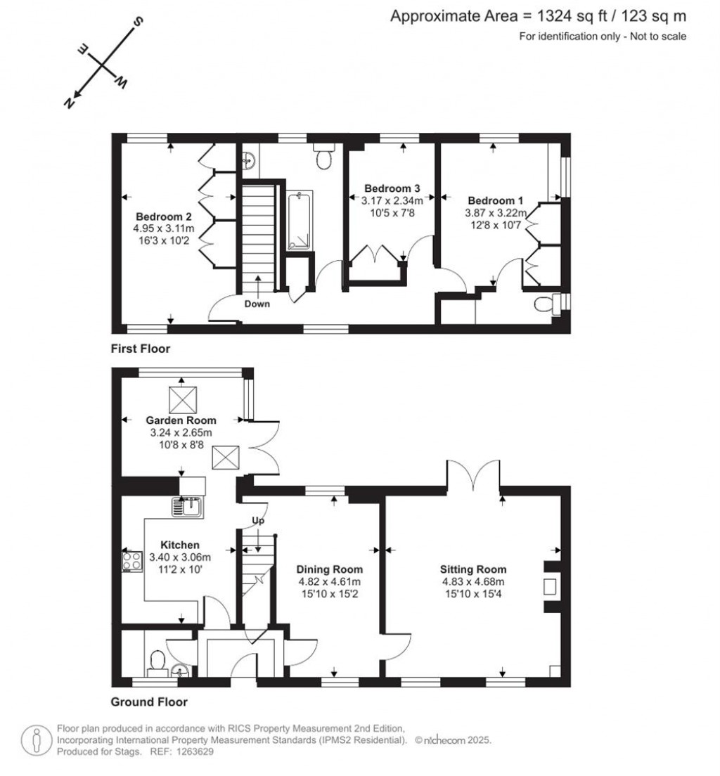
Floorplans For Chitterwell, Wellington
EPC Graph for Chitterwell, Wellington

Description


A well presented character barn conversion forming part of a select courtyard development in a delightful rural setting. Three Bedrooms & Master En Suite. Family bathroom. Sitting Room. Dining Room. Kitchen. Garden Room. Established Gardens. Garage & Parking. Freehold. Council Tax Band E. EPC Band D.

Situation - The Spinney is situated within a select development of individually designed barn conversions located within a courtyard development. Although in a rural location, the property is within 0.75 of a mile of Holywell Lake a similar distance from the A38 which provides easy links to Wellington 4 miles and the M5 motorway network either at junction 26 or 27 both within 6 miles. Wellington offers an excellent range of shopping, recreational and scholastic facilities with the County Town of Taunton a further 7 miles east where an even greater selection of facilities can be found. Tiverton Parkway train station is just 7.5 miles from the property with regular trains to London Paddington.

Description - The Spinney comprises a well appointed three bedroom barn conversion constructed principally of stone exterior elevations with some attractive arch windows and contained beneath a slate roof housing the solar panels on the south side. The accommodation comprises an entrance hall, cloakroom, kitchen, garden room, dining room, sitting room, three bedrooms, one en-suite and a family bathroom. Outside the property benefits from a enclosed rear garden, parking and garage.

Accommodation - A wooden front door opens into an entrance lobby, to the left is the cloakroom with W.C and wash hand basin and window to front. Door to the kitchen with a range of wall and base units and Aga with extractor over, tiled splashbacks, space for appliances, Belfast sink, opening into the garden room. The garden room has dual aspect, Velux windows, tiled floor and double doors to the rear garden. A further door from the kitchen leads into the dining room with dual aspect. Door to the sitting room featuring an attractive fireplace with wood burner stove and patio doors to rear.

To the first floor are three double bedrooms, bedroom one benefiting from built in wardrobes, dual aspect and en suite shower room. Bedroom two also with dual aspect and built in wardrobes. Bedroom three window to rear and built in wardrobes. The family bathroom comprises a wooden panel bath, shower over with shower screen, tiled floor, sink vanity unit and w.c.

Outside - To the rear is an area of patio with steps leading up to a feature pond and a further small area of patio. Steps lead up to a large area of lawn with a productive organic vegetable garden, including mature fruit trees. The garden is bordered by mature plants and shrubs and a greenhouse. It has been nurtured to encourage wildlife and to enable nature to flourish. From the top of the garden is an expansive view across fields to a nearby Millenium Wood. At the front of the house is parking and a single garage.

Services - Mains electricity and water. Shared private drainage. Oil fired central heating. Solar Panels. This property has the benefit of ultrafast broadband(Ofcom). Mobile coverage limited inside with 02 and likely outside with EE, Three, 02, and Vodafone (Ofcom).

Viewings - Strictly by appointment with the vendor's selling agents, Messrs Stags, Wellington Office.

Directions - From Wellington head in a westerly direction along the A38 and after approximately 2.5 miles turn right opposite The Beambridge Inn. Continue to the crossroads and continue straight across. After a short distance turn right and continue along this lane for a short distance whereupon the entrance to the the barns will be seen on your right hand side. Continue into courtyard whereupon the property will be found on the left hand side.

Stags

Stags

7 High Street
Wellington
Somerset
TA21 8QT

+44 (0)1823 662822

Reference: 34326773

Request a viewing for this property

Simply fill out the form below or alternatively call us on 020 7839 0888

* Mandatory fields