4 Bedroom Detached
£1,100,000
Baxterley, Atherstone, CV9

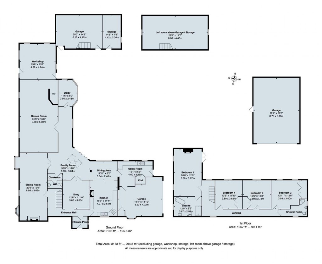
Floorplans For Baxterley, Atherstone, CV9
EPC Graph for Baxterley, Atherstone, CV9

Description


A truly outstanding country home combining period charm with high-quality modern living, Steam Mill Cottage offers an impressive 3173 sqft of beautifully presented accommodation together with extensive outbuildings and delightful landscaped gardens. Nestled within this sought-after village, surrounded by open countryside, the property presents a rare opportunity to acquire a substantial and versatile family home with superb entertaining space both inside and out. The original cottage has been thoughtfully extended to create a harmonious blend of character and charming style, with exposed beams, brick detailing, and a spectacular open-plan family area with roof lantern and doors opening directly onto the garden terrace.

Externally, secure gates open to a large driveway providing access to multiple garages, a workshop, storage rooms and loft room above, offering excellent potential for hobbies, home working or annexe conversion (subject to consent).

Location - Baxterley is a small and peaceful North Warwickshire village surrounded by open countryside, yet conveniently positioned for nearby towns and commuter links. The village itself is home to the well-known Royal Oak pub overlooking the picturesque Baxterley Lake, while further everyday amenities can be found in neighbouring Atherstone, including supermarkets, shops, cafés and a mainline railway station. The surrounding area offers scenic walks and bridleways, golf at nearby The Belfry and Maxstoke Park, and a choice of highly regarded schools including Dordon Primary and The Polesworth School. Baxterley enjoys excellent access to the A5, M42 and M6, providing swift connections to Birmingham, Tamworth and Nuneaton, making it ideal for those seeking a rural lifestyle within easy reach of key Midlands centres.

Distances:
Atherstone - 3 miles
Tamworth - 7 miles
Nuneaton - 9 miles
Lichfield - 12 miles
Birmingham - 22 miles
Birmingham Airport - 17 miles

Accommodation - Ground Floor - The front door opens into an entrance porch and on into a welcoming entrance hall with the staircase rising ahead. To the left lies the sitting room to the front elevation, displaying exposed beams, an ornate fireplace and twin side windows that draw in the light and double opening doors leading through to the family room. A door from the hall leads into the snug at the heart of the home with twin doors also opening into the family room. A delightful addition, this generous, irregularly shaped living space crowned by a glazed roof lantern and full height garden-facing glazing, creates a superb everyday hub and entertaining area. The family room is open plan to the dining area, which flows naturally into the kitchen, a well-appointed space fitted with contemporary cabinetry beneath beamed ceilings, centred around a brick recess forming a feature 'range' niche. A connecting door leads directly from the dining area into the utility room, external side door and an internal door to the integral oversized double garage. Elsewhere is a cloakroom and separate WC and an inner passage that continues through to the games room, a generous vaulted room with feature fireplace and fitted bar, ideal for entertaining. Adjacent to this lies the study, a bright and characterful space set within a distinctive multi-faceted bay window, offering the perfect spot for home working.

First Floor - The staircase rises from the entrance hall to a generous first floor landing serving four bedrooms and a family shower room. Bedroom one is a spacious principal double room with character features and its own en suite shower room. Bedroom two sits to the far right of this home with twin rear-facing windows and useful large built in cupboard. Bedrooms three and four are both well-proportioned doubles with pleasant outlooks over the rear and finally a well-appointed family shower room with a corner enclosure and a distinctive porthole-style window completes the level.

Outside - Electrically operated gates open to a sweeping gravel driveway providing ample secure parking and access to the integral garage, a substantial detached garage, and a separate outbuilding complex incorporating a workshop, garaging, storage rooms and a loft room above, ideal for hobbies, home working or additional storage (subject to consents). To the rear, beautifully landscaped lawns and a broad paved terrace enjoy a private, sunny aspect connecting perfectly with the family room.

Viewing Arrangements - Strictly by prior appointment via the agents Howkins & Harrison - Tel:01827-718021 Option 1

Local Authority - North Warwickshire Borough Council - Tel:01827-715341

Council Tax - Band - G

Agents Note - Additional information about the property, including details of utility providers, is available upon request. Please contact the agent for further details.

Tenure & Possession - The property is freehold with vacant possession being given on completion

Fixtures And Fittings - Only those items in the nature of fixtures and fittings mentioned in these particulars are included in the sale. Other items are specifically excluded. None of the appliances have been tested by the agents and they are not certified or warranted in any way.

Services - None of the services have been tested. We are advised that mains water, and electricity are connected to the property. The central heating is oil fired, there is a septic tank for drainage. Broadband is connected to the property.

Floorplan - Howkins & Harrison prepare these plans for reference only. They are not to scale.

Additional Services - Do you have a house to sell? Howkins and Harrison offer a professional service to home owners throughout the Midlands region. Call us today for a Free Valuation and details of our services with no obligation whatsoever.

Important Information - Every care has been taken with the preparation of these Sales Particulars, but complete accuracy cannot be guaranteed. In all cases, buyers should verify matters for themselves. Where property alterations have been undertaken buyers should check that relevant permissions have been obtained. If there is any point, which is of particular importance let us know and we will verify it for you. These Particulars do not constitute a contract or part of a contract. All measurements are approximate. The Fixtures, Fittings, Services & Appliances have not been tested and therefore no guarantee can be given that they are in working order. Photographs are provided for general information and it cannot be inferred that any item shown is included in the sale. Plans are provided for general guidance and are not to scale.

Howkins & Harrison

Howkins & Harrison

12 Church Street
Atherstone
Warwickshire
CV9 1RN

+44 (0)1827 718021

Reference: 34293060

Request a viewing for this property

Simply fill out the form below or alternatively call us on 020 7839 0888

* Mandatory fields