Plot
£200,000
London Road, Shrewton

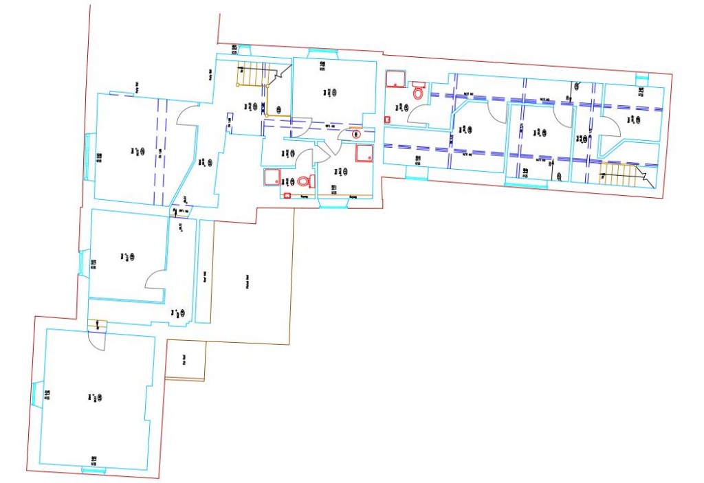
Floorplans For London Road, Shrewton Floorplans For London Road, Shrewton Floorplans For London Road, Shrewton

Description


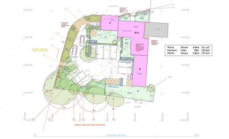
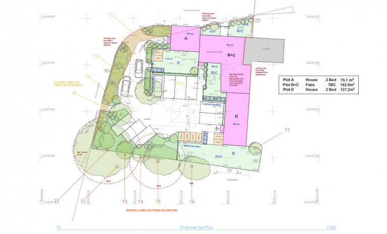
An exciting development opportunity which has received a positive pre-application response to convert into four residential dwellings.

Auction - For sale by Public Auction and via Livestream on Friday 12 December 2025 at 2pm at Digby Memorial Church Hall, Digby Road, Sherborne, Dorset DT9 3NL and via Livestream. Register to bid in the room, online, by telephone or by proxy via our website.

The Property - A former public house offering an exciting redevelopment opportunity following a positive pre-application response to convert the building into 4 dwellings. The pre-application is for change of use to residential, and conversion into two houses and two spacious flats, with parking and garden space. Please contact the office for copies of relevant documents.

Situation - Located in the heart of the popular village of Shrewton which offers a range of amenities including a convenience shop, public house, garage and church. The historic Stone Henge monument is on the doorstep, as is the rolling countryside of Salisbury Plain and the wonderful walks that are on offer. The village has excellent communications links, with the A303 2 miles away, Amesbury circa 8 miles and Salisbury circa 12 miles.

Agents Note - The property has had a positive response to a pre-application submission to Wiltshire Council - please call the office for further information.
A small area of the site lies on flood risk zones 2 & 3, whilst the property itself sits in flood risk zone 1. There are various planning applications in the area, please refer to Wiltshire Councils planning portal for further information. Current RV: £0.
A planning application was submitted in 2024 to demolish the existing building, and rebuild 5 dwellings, this application was withdrawn before a decision was finalised. Further information can be found on the Wiltshire planning portal with the reference: PL/2024/03466

What3words - ///prancing.wink.liberty

Services - Mains electric, water and drainage
As at 31/10/2025:
Ultrafast broadband is available in the postcode and there is mobile coverage in the area, please refer to Ofcom's website for more details.

Local Authority - Wiltshire Council

Solicitors - Laceys Solicitors
Bournemouth BH2 5QL
01202377839
J.Munro@laceyssolicitors.co.uk

Symonds and Sampson

Symonds & Sampson

Agriculture House
Market Place
Sturminster Newton
Dorset
DT10 1AR

+44 (0)1258 473766

Reference: 34291061

Request a viewing for this property

Simply fill out the form below or alternatively call us on 020 7839 0888

* Mandatory fields