Land
£5,000
Cutlers Place, Colehill, Wimborne

Floorplans For Cutlers Place, Colehill, Wimborne

Description


For sale by Auction: A single garage within a block of three, located at the end of a residential road in Colehill, Wimborne.

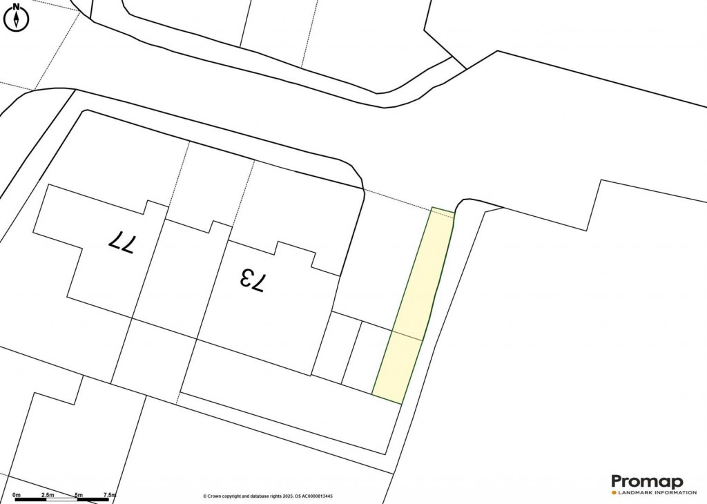
The Property - A single garage, forming part of a block of three, within a residential area in Colehill. The block is of concrete panel construction and the garage has an up and over door. There is a small area of land to the front of the garage, adjoining the access road and the site, including the garage measures approximately 38.3 sqm.

Situation - Colehill is located to the east of the Minster town of Wimborne, and benefits from excellent road links via the A31 (less than 1 mile). Local amenities include a Co-op, pharmacy and public house. Wimborne provides a greater selection of facilities including a supermarket, a range of shops, cafes and eateries as well as commercial amenities. The larger towns of Poole (8 miles), Bournemouth (9 miles), and Southampton (30 miles) are within easy reach.

What3words - ///looms.evolution.stumpy

Services - All mains services are available nearby. Buyers should make their own enquiries as to the availability and location.

Local Authority - Dorset Council

Agents Notes - The sale is subject to restrictive covenants. The seller will be reclaiming their seller's fees from the buyer. Please refer to the legal pack for more information.

Solicitors - Foot Anstey
Taunton TA1 2PX
01823625679
jemma.rawle@footanstey.com

Symonds and Sampson

Symonds & Sampson

5 West Street
Wimborne
Dorset
BH21 1JN

+44 (0)1202 843190

Reference: 34289189

Request a viewing for this property

Simply fill out the form below or alternatively call us on 020 7839 0888

* Mandatory fields