3 Bedroom Detached Bungalow
£900,000
Cambridge Road, Ely

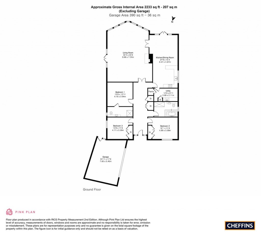
Floorplans For Cambridge Road, Ely
EPC Graph for Cambridge Road, Ely

Description


Situated in this highly sought after location, is this substantial detached bungalow located along a private road.

Accommodation comprises entrance hallway, impressive living room with vaulted ceiling and curved picture windows providing superb views across the garden to the Ely City Golf Course beyond, kitchen/dining room, utility room, three double bedrooms, one ensuite and a family bathroom. The property also benefits from extensive driveway parking with a double garage, side gated access leading to the rear garden with raised patio area and a delightful mature garden backing on to the Golf Course.

The bungalow is offered for sale with the benefit of no upward chain.

Entrance Hall - With door to front, airing cupboard, built-in storage cupboard, Karndean flooring with under floor heating, door leading through to:

Living Room - A superb room with feature floor-to-ceiling chimney breast with gas fireplace (not tested), vaulted wooden ceiling, curved bay picture windows overlooking the garden and Ely Golf Course beyond, side French doors, under floor heating.

Kitchen / Dining Room - With matching wall and base units, worktop space, integrated oven and grill, 4-ring induction hob with overhead stainless steel extractor fan, integrated 1 1/4 stainless steel sink with waste extractor, breakfast island, space for fridge/freezer, Karndean flooring with under floor heating. Dining area with double glazed French doors leading out to the raised patio.

Utility Room - With matching wall and base level storage units with worktop space, stainless steel sink, washing machine (negotiable), Karndean flooring, access to loft, door leading to the side, storage cupboard housing the fuse box.

Bedroom 1 - With fitted wardrobes, Karndean flooring, double glazed window to side, radiator. Door to:

Ensuite Wet Room - A walk-in wet room with hand-held shower head, worktop space with storage under, integrated sink with mixer tap, low level WC, 2 heated towel rails, vinyl flooring.

Bedroom 2 - With built-in wardrobes, double glazed window to front, radiator.

Bedroom 3 - With built-in wardrobes, double glazed window to the side, radiator. Door leading into the double garage.

Bathroom - With shower cubicle, side panelled bath with tiled splashback and step to, wall and base units with integrated sink having mixer tap, low level WC, laminate flooring, heated towel rail, radiator.

Outside - The front of the property is accessed via a private drive. There is a large paved driveway providing ample parking which leads to the double garage with electric up and over door, gas and electric meters with door and door into the garden.

Side gated access leads to the rear of the property where there is a large raised patio area overlooking Ely City Golf Course. The garden is predominantly laid to lawn and is enclosed by wooden fence panels and hedging with a variety of trees, greenhouse and 2 timber garden sheds.

Gated access from the garden leads into Ely City Golf Course,

Viewing Arrangements - Strictly by appointment with the Agents.

Cheffins

Cheffins

25 Market Place
Ely
Cambridgeshire
CB7 4NP

+44 (0)1353 654900

Reference: 34284860

Request a viewing for this property

Simply fill out the form below or alternatively call us on 020 7839 0888

* Mandatory fields