4 Bedroom Land
£350,000
Tawstock, Barnstaple

Floorplans For Tawstock, Barnstaple

Description


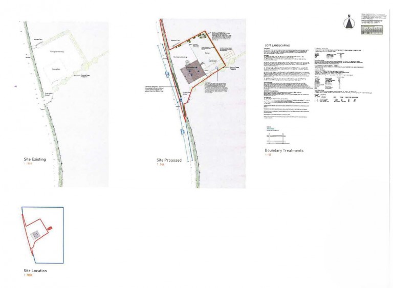
A large modern barn with consent for conversion into a 4 bedroom two storey dwelling on high ground with superb views in a sought after, timeless & tranquil village within easy access of Barnstaple. Set in 0.6 of an acre. Adjoining land potentially available by separate negotiation. Freehold.

Situation & Amenities - On high ground, enjoying superb views into the valley below across Bishops Tawton and towards Barnstaple. The site enjoys the best of both worlds - set in timeless and tranquil rural surroundings, yet within easy reach of the regional centre of Barnstaple. Located on the banks of the Rivers Taw and Yeo, Barnstaple houses the area's main business, commercial, leisure and shopping venues, as well as Pannier Market, live theatre and district hospital. Sporting and leisure pursuits are close at hand, including golf at Saunton, Ilfracombe, Landkey and Westward Ho! North Devon's rugged coastline including the popular resorts of Instow, Appledore, Croyde and Woolacombe are all within ? an hours' drive, as is Exmoor National Park. The Tarka Trail is within walking distance. The nearest international airports are at Bristol and Exeter. The area is well served by excellent state and private schools including Kingsley at Bideford and West Buckland school. The North Devon Link Road can be accessed nearby, leading on to Jct.27 of the M5 Motorway in about 45 minutes. Tiverton Parkway offers a fast service of trains to London Paddington in just over 2 hours.

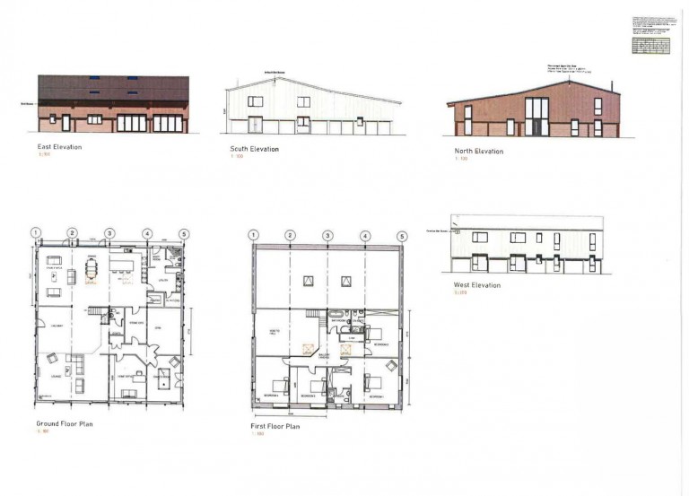
Description - This modern, wooden-framed barn was granted consent by North Devon Council on 20th March 2024, under Planning Reference 78049 for conversion of redundant rural building to dwelling and associated works (amended red line/site plan/hedgerow translocation document). The development to which this permission relates must be begun not later than the expiration of 3 years, beginning with the date on which the permission was granted. The development approved should be constructed in accordance with the following schedule: external finishing materials, elevations - timber cladding and timber dung boards as existing, roof - corrugated metal, doors & windows - aluminium and/or timber, fascia & bargeboards of timber construction - either stained or painted.
We understand that the proposed new dwelling would cover a floor area of approximately 343 sq m, which equated to 3692 sq ft. All plans and documents relating to this consent can be viewed on North Devon Council's Planning website using the Planning Reference quoted above for access.
The proposed accommodation would be arranged over two storeys and include: on the GROUND FLOOR - ENTRANCE HALL, CLOAKROOM, SITTING ROOM, open-plan FAMILY ROOM/DINING ROOM/KITCHEN, UTILITY ROOM/BOOT ROOM. Further GROUND FLOOR rooms are - GYM, separate HOME OFFICE and separate GAMES ROOM. *Special note - we suggest that the Ground Floor accommodation is potentially large enough to create a self-contained annexe, suitable for guests, relatives, etc, subject to any necessary change in the planning consent. On the FIRST FLOOR - GALLERIED LANDING, MASTER BEDROOM with DRESSING AREA and ENSUITE, 3 further BEDROOMS - one ENSUITE, FAMILY BATHROOM.
Externally, there is ample parking space and a generous GARDEN AREA. The Barn is bounded on three sides by agricultural land and on the 4th by the access lane. The Vendor owns the adjoining land and would consider selling additional acreage, subject to negotiation.

Services - We understand that mains electricity is available in the lane. The proposed foul drainage is to a packaged treatment plant. Central heating to a purchaser's preference. There is a borehole already on site for private water.

Directions - Leaving Barnstaple in the direction of Fremington, at the Stones roundabout continue straight across, up Sticklepath Hill and immediately after the 1st set of traffic lights turn left signed Lake and Tawstock. Follow the lane for approximately 1.2 miles through Lake village, over the bridge and the barn will be found on the left-hand side, virtually opposite Tawstock Tower.

Viewing Arrangements - Strictly by appointment please through the Sole Selling Agents Stags Barnstaple Office on (01271) 322833 or barnstaple@stags.co.uk

Special Note - THERE ARE CAMERAS ON SITE, THEREFORE PLEASE DO ARRANGE TO VIEW VIA THE AGENTS, AND DO NOT ACCESS THE SITE WITHOUT PERMISSION.

Stags

Stags

30 Boutport Street
Barnstaple
Devon
EX31 1RP

+44 (0)1271 322833

Reference: 34280659

Request a viewing for this property

Simply fill out the form below or alternatively call us on 020 7839 0888

* Mandatory fields