5 Bedroom Detached
£1,200,000
Main Road, Barleythorpe, Rutland

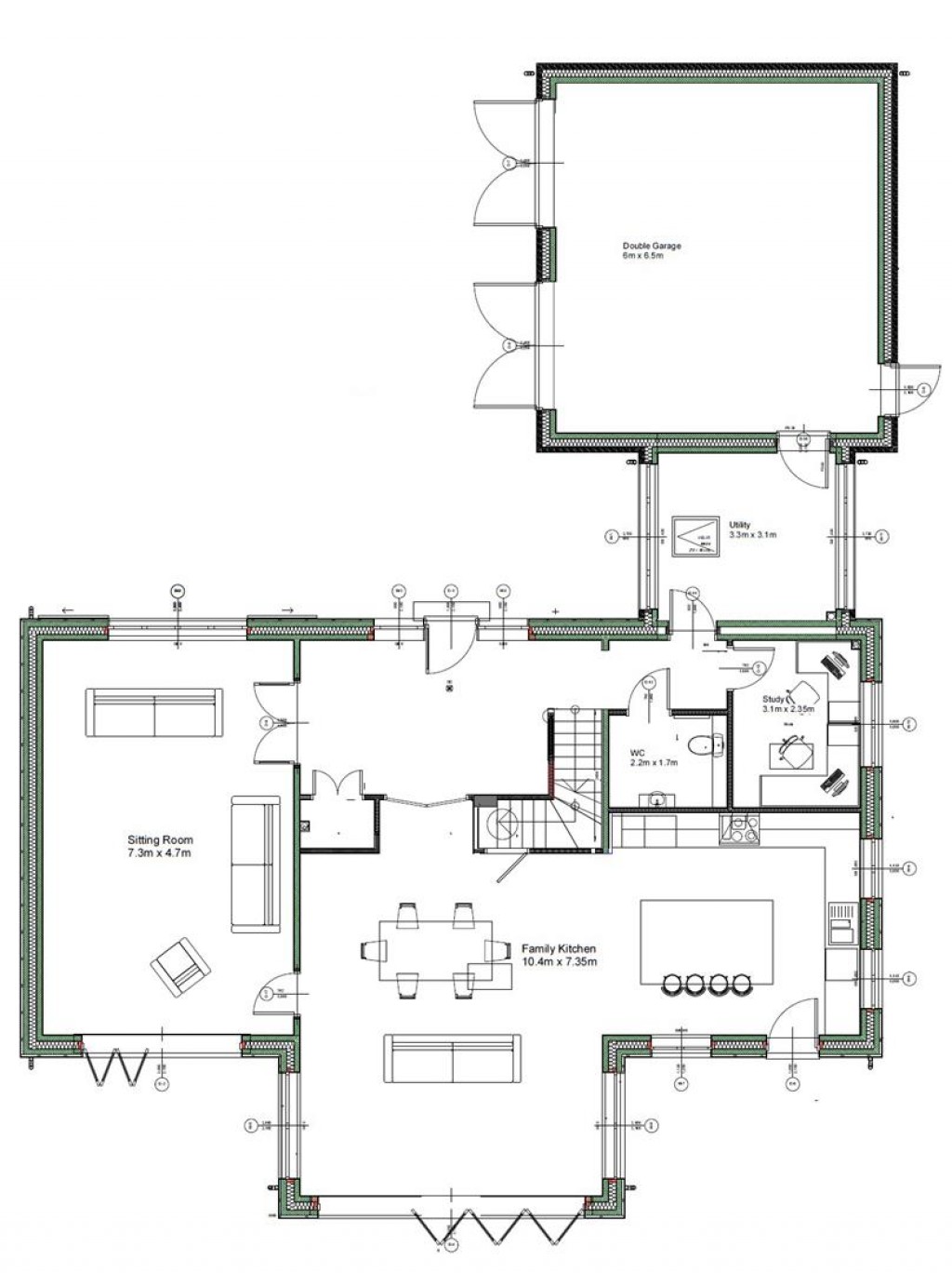
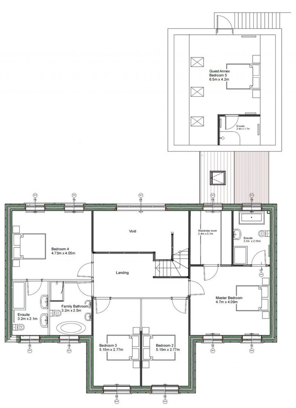
Floorplans For Main Road, Barleythorpe, Rutland Floorplans For Main Road, Barleythorpe, Rutland

Description


An elegant five-bedroom residence, constructed in brick with cladding and finished to a high specification, offering spacious open-plan living areas, private gardens, off-road parking, and garaging, set within a select development in the old Barleythorpe village.

Accommodation - The spacious ground floor opens into a welcoming entrance hall, leading to a generous open-plan living kitchen with a walk-in pantry. Designed for both everyday living and entertaining, this expansive space features bi-folding doors that open onto the garden, flooding the interior with natural light and creating a seamless connection between indoors and out. From the kitchen, a door leads to the main reception room, which also enjoys direct garden access through another set of bi-folding doors. Together, these areas form an exceptional, sociable living environment perfectly suited to modern family life. Practicality has been carefully considered, with a large utility/boot room providing access to the integral garage, a useful study ideal for home working, and a cloakroom completing the ground floor.

Upstairs, the first floor offers four generously proportioned double bedrooms. The primary bedroom suite is particularly impressive, extending to approximately 350 sq. ft., and includes a spacious bedroom area, a dressing room/walk-in wardrobe, and an ensuite bathroom. One further bedroom benefits from an ensuite shower room, while the remaining two bedrooms share a family bathroom.

This exceptional home strikes the perfect balance between luxury, functionality, and energy efficiency, thoughtfully designed to meet the demands of modern living while providing the warmth and character expected of a high-quality family home.

Outside - To the front of the property, a gate opens onto a large private driveway with ample off-road parking and direct access to the triple garage. The house sits on a generously sized plot within a private gated community of just six homes. Pedestrian access on both sides leads to the large rear garden.

Specification - Heating & Energy
Underfloor heating throughout the ground floor
Air Source Heat Pump for energy-efficient heating and hot water

Electrical & Networking
Category 6 data cabling throughout, providing high-speed connectivity
Electric garage doors with remote control operation
Communal electric gates at the entrance to the development

Interior Finishes
Bespoke kitchens by local designer, InTone Design of Oundle with Bosch appliances
Engineered Oak flooring to hallway, kitchen, and family room
High-quality carpet fitted throughout the remaining rooms
Oak-framed staircases
Solid wooden internal doors
Porcelanosa sanitary ware throughout, including wall-hung toilets
Premium Porcelanosa tiling in all bathrooms and WC's

Exterior & Landscaping
Cladding to all external walls with 25-year non-maintenance warranty
Aluminium bi-fold doors opening onto the garden
Fully fenced rear garden, laid to turf
Buyers will receive a free garden design consultation with our landscape designer - a Gold Medal Winner at the 2024 Chelsea Flower Show

Additional Features
10-Year Structural Warranty

Location - Barleythorpe is a growing village on the edge of Oakham in Rutland, blending historic charm with modern convenience. It features heritage buildings like Barleythorpe Hall and enjoys excellent access to amenities in nearby Oakham. The area offers outstanding schooling, including top-rated state and independent options such as Oakham and Uppingham Schools. Just a short drive away, Rutland Water provides opportunities for sailing, walking, cycling, and wildlife watching. With good transport links and a strong local community, Barleythorpe is ideal for families and commuters.

Tenure - Freehold

Andrew Grant

24 Catmos Street
Oakham
Rutland
LE15 6HW

+44 (0)1572 724437

Reference: 34278352

Request a viewing for this property

Simply fill out the form below or alternatively call us on 020 7839 0888

* Mandatory fields