Plot
£400,000
Middle Street, Thriplow, Royston

Description


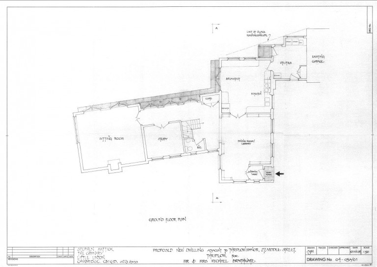
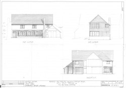
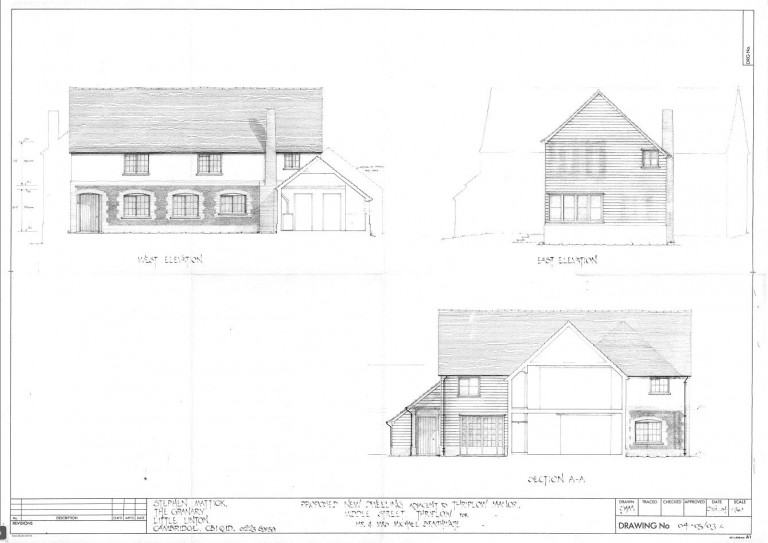
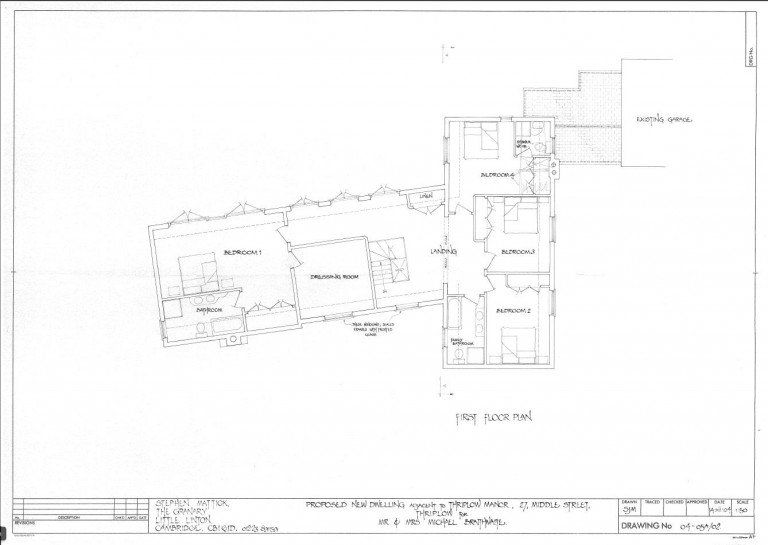
Parcel of land extending to about 0.4 acres, subject to survey, benefitting from a detailed planning consent for the erection of a detached dwelling with accommodation set over two floors extending to about 3500 sq ft with attached double garage within the grounds of this magnificent Grade II* listed manor house in the eagerly sought after and picturesque South Cambridgeshire Village of Thriplow.

Planning Consent - Planning consent granted for a Dwelling and Garage (Ref. S/1805/04/F) that has been implemented. CLUED confirming this dated 23/05/2025 with reference 25/00871/CLUED available on the planning portal.

Cheffins

Cheffins

Clifton House
1-2 Clifton Road
Cambridge
Cambridgeshire
CB1 7EA

+44 (0)1223 214214

Reference: 34273618

Request a viewing for this property

Simply fill out the form below or alternatively call us on 020 7839 0888

* Mandatory fields