Terraced
£160,000
Mepal Road, Sutton

Description


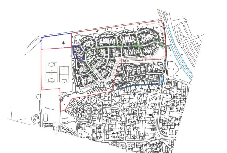
Fantastic opportunity to own one of just 9 Self-Build Plots ranging in size from 276 square meters to 407 square meters situated on the north western edge of the new development off Mepal Road, Sutton.
The Self-Build Plots are suitable for the construction of two storey detached houses ranging in size from 108.97 square meters (1,172 square feet) to 137.61 square meters (1,481 square feet)
The Self-Build Plot Purchaser will be responsible for obtaining Planning Permission for their proposed dwelling and may vary the size of the proposed dwelling with the Vendor's approval.

Location - The site is located on the northern edge of Sutton approximately 6 miles (9.5 kilometres) west of Ely and 5 miles (8.5 kilometres) south east of Chatteris. The site is well connected to the village centre with easy access to services and local facilities.

Sutton is a large village in the East Cambridgeshire District and benefits from a range of services including a Pre School, Primary School, GP Surgery, Pharmacy, Library and Post Office. The village also has a range of shops, food and drink establishments as well as recreational facilities.

Vehicular access to the A142 is provided via Ely Road thus enabling easy access to the strategic highway network, the A10 and A14. A local bus service runs between Ely and Chatteris providing a regular bus services.

The nearest railway station to the site is the station in Ely which provides rail connections to Cambridge and London.

Description - Nine Self-Build Plots ranging in size from 276 square metres to 407 square metres situated on the western edge of the new development off Mepal Road, Sutton.

The Self-Build Plots are suitable for the construction of two storey detached houses ranging in size from 108.97 square metres (1,172 square feet) to 137.61 square metres (1,481 square feet) although the Self-Build Plot Purchaser will be responsible for obtaining Planning Permission for their proposed dwelling and may vary the size of the proposed dwelling with the Vendor's approval.

Planning - The Purchaser of the Self-Build Plot will be responsible for obtaining Planning Permission for the Self-Build Unit. The principle of development of the Self-Build Unit on the Self-Build Plot is secured under the Section 106 Agreement pursuant to the wider development Outline Planning Permission ref: 24/00747/VARM.

The Purchaser will be required to prepare and submit a draft Planning Application for the proposed Self-Build dwelling house to the Vendor for their approval, such approval not to be unreasonably withheld.

The Purchaser will submit the Planning Application to the Local Planning Authority within 14 working days of receiving the Vendor's approval to the draft Planning Application. The Purchaser will use reasonable endeavours to secure a satisfactory Planning Permission as soon as reasonable possible. The Purchaser shall keep the Vendor regularly informed as to the progress of the Planning Application.

Design Brief And Specifications - The Plot Passport Plan shows the plot areas and approximate developable footprints and includes details on:

Building Zone - The house must be contained and should not exceed the 'building zone' marked on the plan, unless otherwise agreed. The footprint of the house does not need to fill the entire building zone.

Services/utility easements - a no building zone is shown to allow for provision of services and utility connection points and any required easements.

Set back distances required between the building elevations and the adoptable highway.

Access points with parking to conform with East Cambridgeshire District Council Parking Standards.

Details of the scale, external appearance and landscaping proposals are subject to approval by the Vendor and the Local Planning Authority. The Vendor does not wish to restrict innovation and individuality of design, but proposals will need to have due regard to the wider development.

Timescales - Construction of the Self-Build Unit is to be completed within 12 months of the start on site in order to minimise disruption to other neighbours, unless otherwise agreed by the Vendor. This will be secured contractually and is over and above any relevant timescales detailed in the Planning Permission.

Access - The Vendor will provide vehicular access and pedestrian access points in accordance with the road layout approved under Reserved Matters Approval ref: 24/00340/RMM. Each plot has a designated vehicular access point as shown on the Plot Passport Plan.

Services - Each plot will be provided with access to foul and surface water drainage and connections to potable water and telecommunications. Each plot will be provided with capacity and point of connection for electricity. Driveways to be constructed with permeable block paving to align with site-wide surface water strategy.

Management Company - There is no Management Company anticipated for the development. Public open space is proposed to be adopted by the local Council.

Community Infrastructure Levy - The Purchaser will be responsible for obtaining Self-Build Housing Relief from the Collecting Authority (East Cambridgeshire District Council). Parties are advised to seek their own advice on all matters relating to Community Infrastructure Levy (CIL).

The regulations state that the property must remain the self-builders principle residence for a minimum of 3 years following completion, otherwise the CIL may be reclaimed by the Collecting Authority.

Health And Safety Requirements - Each Plot Purchaser will be their own principal contractor and will be responsible for their own health and safety procedures. Should the Purchaser cause any damage to Estate Roads and Service Media the Purchaser will be responsible for repairing the damage. In addition, the Plot Purchaser and their contractors will need to abide by the Vendor's Construction and Environmental Management Plan.

Value Added Tax - No VAT will be chargeable on the sale price.

Tenure - The freehold of the site is offered for sale with vacant possession on completion.

Method Of Sale - The site is offered for sale by private treaty.

Viewings - Viewings are strictly by appointment with the Agents:

Cheffins, 25 Market Place, Ely, Cambridgeshire, CB7 4NP.

Tel: 01353 654900

Email mark.foreman@cheffins.co.uk
Email jonathan.grier@cheffins.co.uk
Email andrew.amey@cheffins.co.uk

Cheffins

Cheffins

25 Market Place
Ely
Cambridgeshire
CB7 4NP

+44 (0)1353 654900

Reference: 34264581

Request a viewing for this property

Simply fill out the form below or alternatively call us on 020 7839 0888

* Mandatory fields