3 Bedroom Terraced
£450,000
Beardley Farm, Kittisford, Wellington

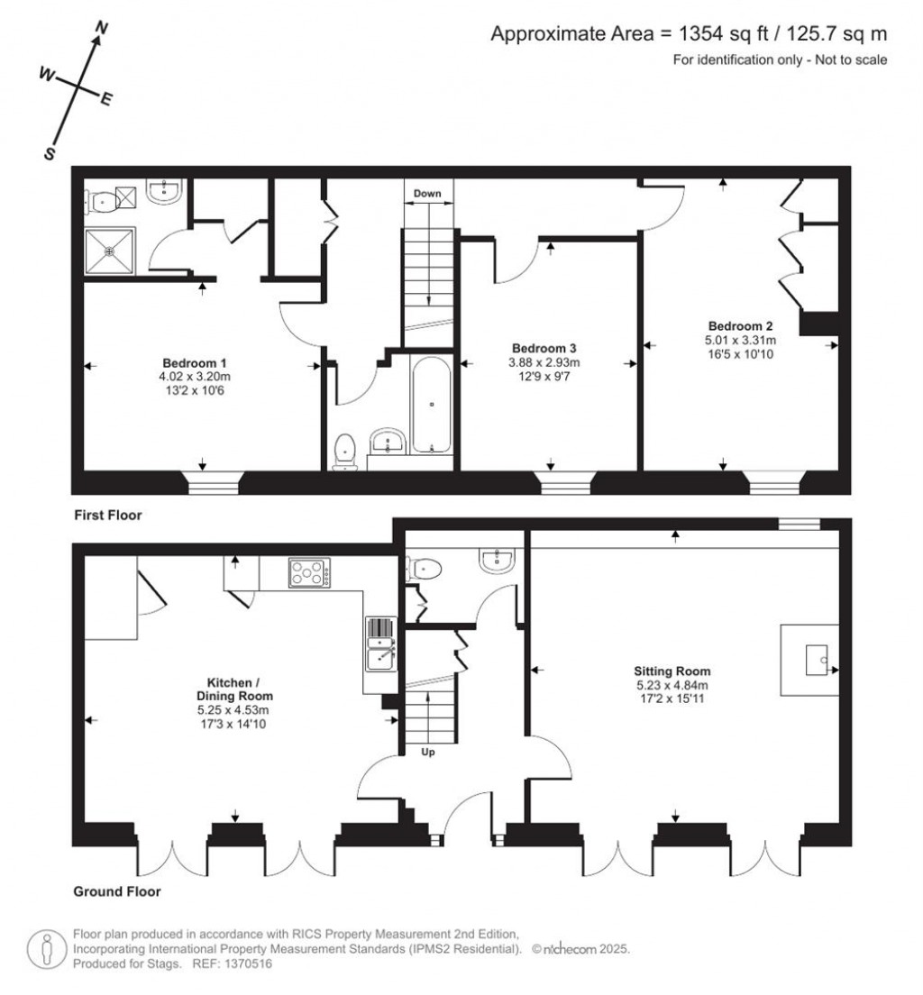
Floorplans For Beardley Farm, Kittisford, Wellington
EPC Graph for Beardley Farm, Kittisford, Wellington

Description


An attractive barn conversion offering well-presented accommodation including a sitting room, kitchen/dining room, principal bedroom with en-suite shower room, two further bedrooms and a family bathroom. Detached Private Garden, Parking, No onward chain, Freehold, Council Tax E, EPC E.

Situation - The Shippen is positioned in a fine rural location in the small hamlet of Kittisford. The village of Appley lies two miles to the south which has a primary school, the Globe Inn Public House, village shop and post office.
The town of Wellington is within seven miles and offers an extended range of shops, supermarkets and schools up to A Level age and on the outskirts of the town is access to the M5 motorway at Junction 26. The County Town of Taunton is approximately twelve miles to the east with rail services to London Paddington.

Description - An attractive barn conversion offering well-presented accommodation including a sitting room, kitchen/dining room, principal bedroom with en-suite shower room, two further bedrooms and a family bathroom. Outside is garden and parking the property is offered for sale with no onward chain.

Accommodation - The front door opens into an entrance hallway with stairs rising to the first floor and a useful understairs cloakroom. The spacious sitting room features two beautifully arched French doors, which flood the room with natural light and add an elegant touch, complemented by a wood-burning stove. The kitchen/dining room also enjoys twin arched French doors leading outside. The kitchen is fitted with a range of matching wall and base units with work surfaces over, incorporating a sink unit, integrated dishwasher, fridge/freezer and double oven.

The first floor boasts attractive vaulted ceilings with exposed beams and wood panel doors throughout. From the landing, access is provided to the principal bedroom, which benefits from a built-in wardrobe, front aspect window and en-suite shower room. Bedroom two also features built-in wardrobes and a front aspect window, while bedroom three enjoys a similar outlook. The family bathroom completes the accommodation on this floor and comprises a WC, wash hand basin and bath.

Outside - To the front of the property, there is a spacious driveway shared with two neighbours, providing one parking space and a patio area directly adjoining the house. The private, detached garden is located a short distance from the property and is enclosed by mature hedging. It is mainly laid to lawn and enjoys stunning views of the surrounding countryside.

Services - Mains electric and water. Private drainage. Mobile coverage is good outdoor (Ofcom). Broadband availability is standard (Ofcom). Service charge within the three barns of £50 per month which covers annual cleaning and maintenance of private drainage as well as the electric for drive lighting.

Viewings - Strictly by appointment with the vendor's selling agents, Stags, Wellington Office.

Directions - From the Wellington office proceed in a northerly direction out onto the Milverton Road, passing through Tonedale on the B3167. As the road rises turn next left sign posted Runnington. Continue on this road for approx ? mile passing the fruit farm and turning to Runnington village. Continue over the triangle on the western edge of the village of Langford Budville and proceed up the hill to Langford common. At the next junction continue straight across. Proceed on this road for approximately 1.5 miles passing through Wellisford and over the river Tone. On reaching a T junction turn right down Cockland Hill signposted to Stawley, again crossing the river Tone. Proceed for a further 1 mile, turning right at the next junction, down the hill and after 0.5 mile the entrance can be found on the left hand side. If you are following a Sat Nav to TA21 0RZ you will reach Kittisford Barton and 'The Cottage Beyond'. Continue past in the direction of Bathealton and take the next right hand turn where the property can be found after a short while on your left hand side

Stags

Stags

7 High Street
Wellington
Somerset
TA21 8QT

+44 (0)1823 662822

Reference: 34264254

Request a viewing for this property

Simply fill out the form below or alternatively call us on 020 7839 0888

* Mandatory fields