Terraced
£170,000
Fordham Road, Ely, Soham

Description


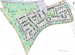
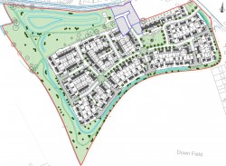
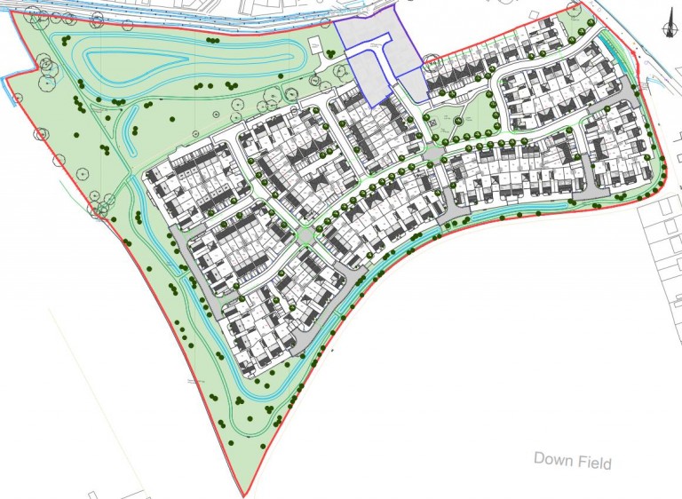
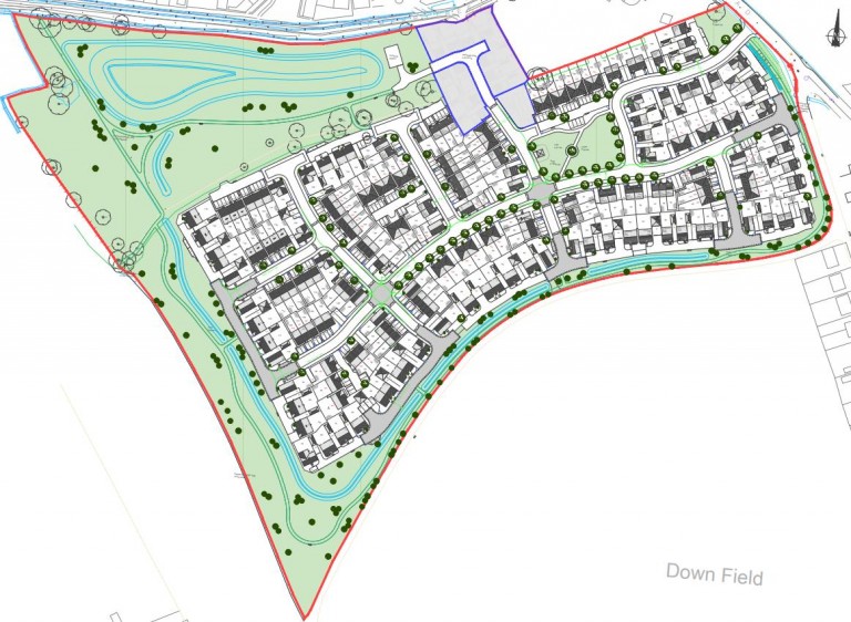
Fantastic opportunity to own one of just eleven Self-Build Plots ranging in size from 207 square metres to 511 square metres situated on the northern edge of the new development off Fordham Road, Soham.
The Self-Build Plots are suitable for the construction of two storey detached houses ranging in size from 80.36 square meters (864 square feet) to 120.46 square meters (1,217 square feet)
The Self-Build Plot Purchaser will be responsible for obtaining Planning Permission for their proposed dwelling and may vary the size of the proposed dwelling with the Vendor's approval.

Location - The site is located on the south eastern edge of Soham approximately 7 miles (12 kilometres) south east of Ely and 6 miles (10 kilometres) north west of Newmarket. The site is well connected to the town centre with easy access to services and local facilities.

Soham is designated as a market town in the East Cambridgeshire Local Plan (2015) and benefits from a comprehensive range of services including Primary and Secondary Schools, Medical Centre, a High Street with food and drink establishments, a range of professional services, Asda, Co-op, Post Office, Pharmacy, Library, recreation ground and children's play areas.

Vehicular access to the A142 is provided via Fordham Road thus enabling easy access to the strategic highway network, the A10 and A14. A local bus service runs between Cambridge, Newmarket and Ely providing hourly bus services.

The nearest railway station to the site is the new station in Soham which was completed in December 2021 and provides rail connections to Ely and Bury St Edmunds with onward connections to Cambridge and London. The new station is located approximately 1.2 miles (2 kilometres) to the north of the site within walking and cycling distance.

Description - Eleven Self-Build Plots ranging in size from 207 square metres to 511 square metres situated on the northern edge of the new development off Fordham Road, Soham.

The Self-Build Plots are suitable for the construction of two storey detached houses ranging in size from 80.36 square metres (864 square feet) to 120.46 square metres (1,217 square feet) although the Self-Build Plot Purchaser will be responsible for obtaining Planning Permission for their proposed dwelling and may vary the size of the proposed dwelling with the Vendor's approval.

Planning - The Purchaser of the Self-Build Plot will be responsible for obtaining Planning Permission for the Self-Build Unit. The principle of development of the Self-Build Unit on the Self-Build Plot is secured under the Section 106 Agreement pursuant to the wider development Outline Planning Permission ref: 21/00291/OUM.

The Purchaser will be required to prepare and submit a draft Planning Application for the proposed Self-Build dwelling house to the Vendor for their approval, such approval not to be unreasonably withheld.

The Purchaser will submit the Planning Application to the Local Planning Authority within 14 working days of receiving the Vendor's approval to the draft Planning Application. The Purchaser will use reasonable endeavours to secure a satisfactory Planning Permission as soon as reasonable possible. The Purchaser shall keep the Vendor regularly informed as to the progress of the Planning Application.

Design Brief And Specifications - The Plot Passport Plan shows the plot areas and approximate developable footprints and includes details on:

Building Zone - The house must be contained and should not exceed the 'building zone' marked on the plan, unless otherwise agreed. The footprint of the house does not need to fill the entire building zone.

Services/utility easements - a no building zone is shown to allow for provision of services and utility connection points and any required easements.

Set back distances required between the building elevations and the adoptable highway.

Access points with parking to conform with East Cambridgeshire District Council Parking Standards.

Details of the scale, external appearance and landscaping proposals are subject to approval by the Vendor and the Local Planning Authority. The Vendor does not wish to restrict innovation and individuality of design, but proposals will need to have due regard to the wider development.

Timescales - Construction of the Self-Build Unit is to be completed within 12 months of the start on site in order to minimise disruption to other neighbours, unless otherwise agreed by the Vendor. This will be secured contractually and is over and above any relevant timescales detailed in the Planning Permission.

Access - The Vendor will provide vehicular access and pedestrian access points in accordance with the road layout approved under Reserved Matters Approval ref: 24/00306/RMM. Each plot has a designated vehicular access point as shown on the Plot Passport Plan.

Services - Each plot will be provided with access to foul and surface water drainage and connections to potable water and telecommunications. Each plot will be provided with capacity and point of connection for electricity. Driveways to be constructed with permeable block paving to align with site-wide surface water strategy.

Management Company - Completion of the transfer of the Self-Build Plot shall constitute an application by the Purchaser for membership of the Management Company. Anticipated Management Service Charge of approximately £230 per annum.

Community Infrastructure Levy - The Purchaser will be responsible for obtaining Self-Build Housing Relief from the Collecting Authority (East Cambridgeshire District Council). Parties are advised to seek their own advice on all matters relating to Community Infrastructure Levy (CIL).

The regulations state that the property must remain the self-builders principle residence for a minimum of 3 years following completion, otherwise the CIL may be reclaimed by the Collecting Authority.

Health And Safety Requirements - Each Plot Purchaser will be their own principal contractor and will be responsible for their own health and safety procedures. Should the Purchaser cause any damage to Estate Roads and Service Media the Purchaser will be responsible for repairing the damage. In addition, the Plot Purchaser and their contractors will need to abide by the Vendor's Construction and Environmental Management Plan.

Value Added Tax - No VAT will be chargeable on the sale price.

Tenure - The freehold of the site is offered for sale with vacant possession on completion.

Method Of Sale - The site is offered for sale by private treaty.

Viewings - Viewings are strictly by appointment with the Agents:

Cheffins, 25 Market Place, Ely, Cambridgeshire, CB7 4NP.

Tel: 01353 654900

Email mark.foreman@cheffins.co.uk
Email jonathan.grier@cheffins.co.uk
Email andrew.amey@cheffins.co.uk

Cheffins

Cheffins

25 Market Place
Ely
Cambridgeshire
CB7 4NP

+44 (0)1353 654900

Reference: 34264046

Request a viewing for this property

Simply fill out the form below or alternatively call us on 020 7839 0888

* Mandatory fields