4 Bedroom Detached
£1,100,000
Station Road, Ibstock

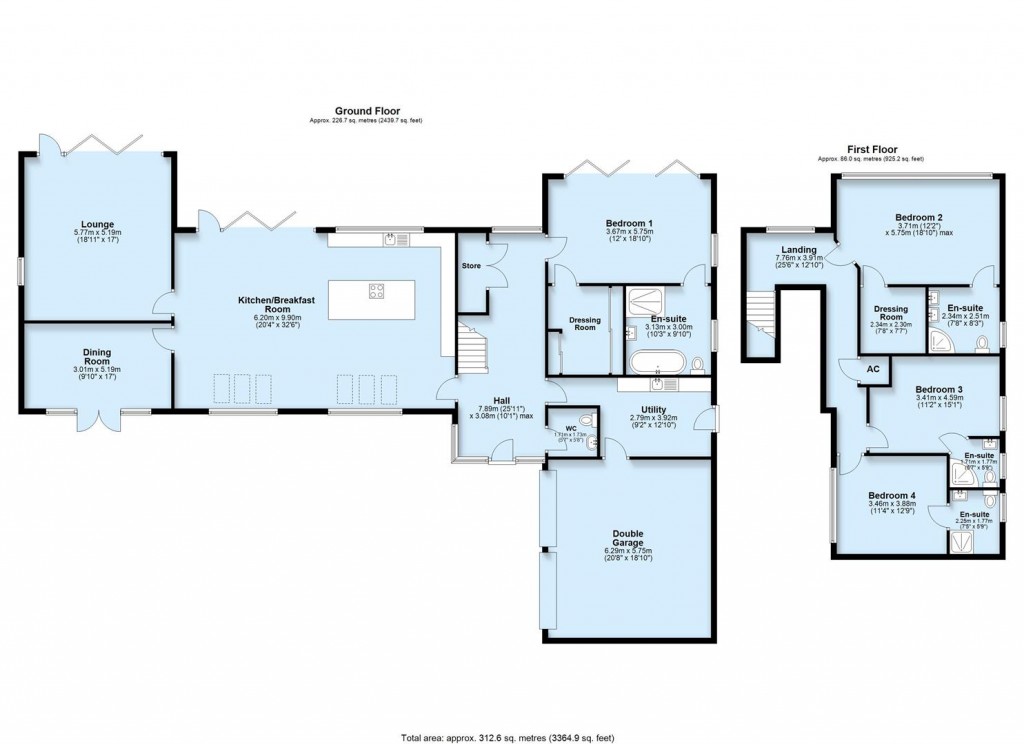
Floorplans For Station Road, Ibstock
EPC Graph for Station Road, Ibstock

Description


A truly striking and bespoke contemporary home, individually designed and built to exacting standards, offering over 3,300 sqft of luxurious accommodation. In brief comprising: an impressive entrance hall, spectacular open-plan kitchen/breakfast room with living area, a separate dining room and an elegant lounge with bi-fold doors. The ground floor also includes a generous double bedroom with dressing room and en-suite, utility room, cloakroom WC and internal access to the double garage. Upstairs there are three further double bedrooms, each with its own en-suite, together with a dressing room and spacious landing. Externally, the property stands within approximately half an acre of beautifully landscaped gardens, providing multiple entertaining terraces, a pergola seating area and summerhouse, all backing onto open countryside.

Location - Ibstock is a thriving village in North West Leicestershire, situated around three miles south-west of Coalville and twelve miles west of Leicester. Once known for its historic brickmaking heritage, the village has grown into a well-connected residential community with an excellent range of local amenities including shops, cafés, public houses, a post office and healthcare facilities. Schooling is well provided for with Ibstock Junior School and Ibstock Community College, along with leisure facilities at the village sports complex. The nearby A447 offers swift road links towards Hinckley, Coalville and the A42 for easy access to Birmingham, Derby and Nottingham, while regular bus services connect to surrounding towns. Rail connections are available from Loughborough, Leicester and Hinckley.

Travel Distances - Coalville - 3 miles
Ashby-de-la-Zouch - 6 miles
Leicester - 12 miles
East Midlands Airport - 15 miles
Birmingham Airport - 26 miles
Loughborough Railway Station - 10 miles
Hinckley Railway Station - 9 miles

Agents Comments - Enjoying an enviable position within Ibstock, this home presents as a one-off, architect-designed property of outstanding contemporary style, with impressive proportions and a design that embraces light, space and seamless indoor-outdoor living.

Accommodation Details - Ground Floor - The front door opens into a bright and welcoming entrance hall, beautifully tiled in polished porcelain and filled with natural light from full-height windows to the front and rear. A striking staircase with oak handrail and glass balustrade rises to the first floor. Off to the left lies the superb kitchen/breakfast room, designed as the heart of the home. This open-plan space features a large central island with breakfast bar seating, extensive fitted units with integrated appliances, skylight windows and wide bi-folding doors opening directly onto the garden terrace. Beyond the kitchen, a dining room provides a more formal setting with French doors to the front elevation and a separate lounge, a spectacular vaulted room with full-height glazing, feature media wall and bi-fold doors offering wonderful views over the garden and countryside beyond. Returning to the hallway, a side corridor leads to a useful store, a utility room with external access, and a cloakroom WC. There is also internal access to the double garage. To the right of the hall lies a generous ground floor bedroom suite, ideal for guests or multigenerational living. This room benefits from a dressing room, a private en-suite shower room and bi-folding doors opening directly onto the garden terrace.

First Floor - The first-floor landing enjoys a galleried view over the hallway and a large picture window framing the rear aspect. Off the landing lies a practical airing cupboard. Three further double bedrooms are arranged across this level, each beautifully presented and featuring its own en-suite bathroom. Bedroom two also incorporates a dressing room, while the generous proportions and elevated position of all rooms create a bright and airy feel throughout.

Outside, Gardens And Grounds - Outside, the home sits proudly behind a wide sweeping gravel driveway, providing extensive off-road parking and access to the double garage. The rear gardens, extending to around half an acre, are thoughtfully landscaped with an expanse of level lawn, paved sun terrace and several distinct seating areas. A decked pergola terrace provides an ideal spot for dining and relaxation, complemented by a summerhouse and mature planting that frames the space beautifully. The gardens enjoy an excellent degree of privacy, open rural views, and a tranquil setting perfect for outdoor living.

Viewing Arrangements - Strictly by prior appointment via the agents Howkins & Harrison Tel:01530-410930 Option 1

Local Authority - North West Leicestershire District Council - Tel:01530-454545

Council Tax - Band - G

Agents Note - Additional information about the property, including details of utility providers, is available upon request. Please contact the agent for further details.

Tenure & Possession - The property is freehold with vacant possession being given on completion

Council Tax - Band -

Services - None of the services have been tested. We are advised that mains water, gas and electricity are connected to the property. The central heating is gas fired and there is a septic tank for drainage. There is underfloor heating throughout the ground floor and high speed broadband is connected to the property.

Floorplan - Howkins & Harrison prepare these plans for reference only. They are not to scale.

Additional Services - Do you have a house to sell? Howkins and Harrison offer a professional service to home owners throughout the Midlands region. Call us today for a Free Valuation and details of our services with no obligation whatsoever.

Important Information - Every care has been taken with the preparation of these Sales Particulars, but complete accuracy cannot be guaranteed. In all cases, buyers should verify matters for themselves. Where property alterations have been undertaken buyers should check that relevant permissions have been obtained. If there is any point, which is of particular importance let us know and we will verify it for you. These Particulars do not constitute a contract or part of a contract. All measurements are approximate. The Fixtures, Fittings, Services & Appliances have not been tested and therefore no guarantee can be given that they are in working order. Photographs are provided for general information and it cannot be inferred that any item shown is included in the sale. Plans are provided for general guidance and are not to scale.

Howkins & Harrison

Howkins & Harrison

58 Market Street
Ashby De La Zouch
LE65 1AN

+44 (0)1530 410930

Reference: 34262862

Request a viewing for this property

Simply fill out the form below or alternatively call us on 020 7839 0888

* Mandatory fields