3 Bedroom Barn Conversion
£1,900 PCM
Dashwood Court, Aston Rowant, Watlington

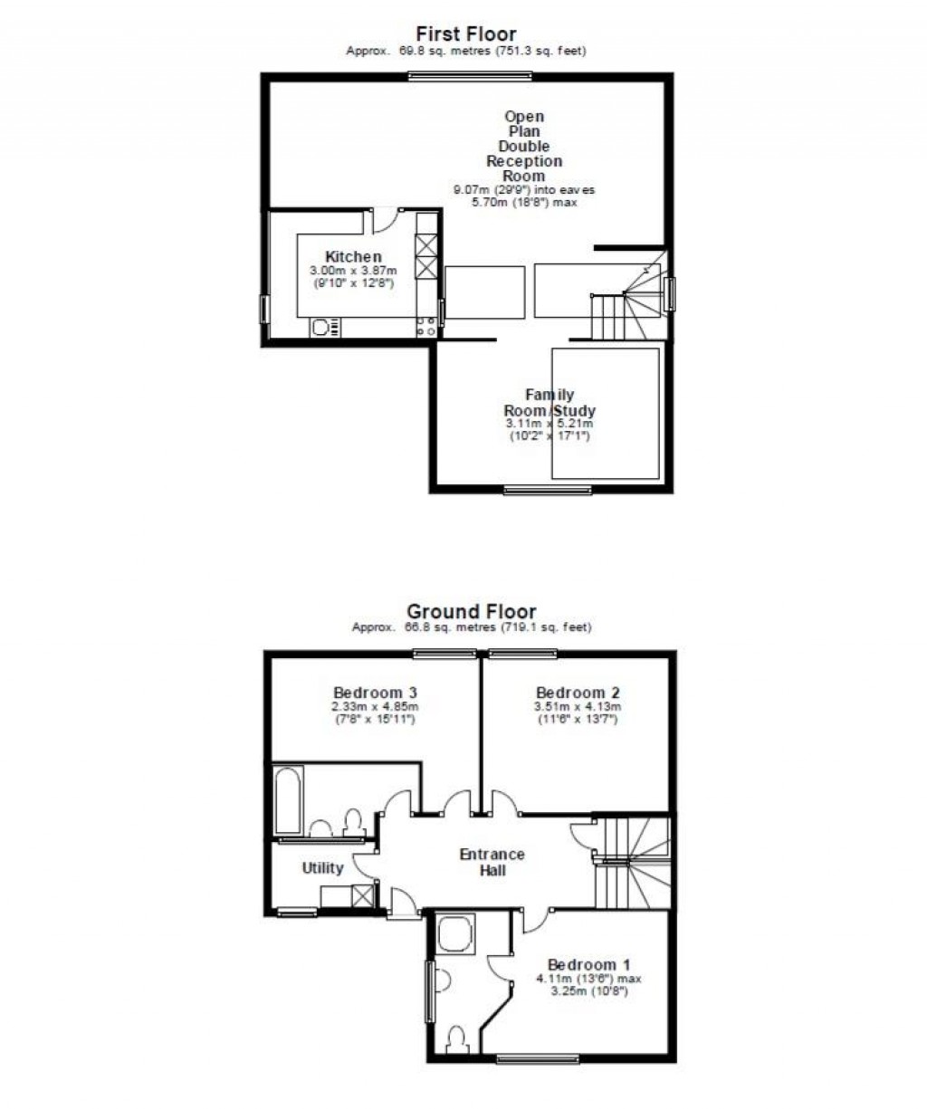
Floorplans For Dashwood Court, Aston Rowant, Watlington
EPC Graph for Dashwood Court, Aston Rowant, Watlington

Description


An outstanding and superbly fitted mews style house with substantial open plan reception areas and vaulted ceilings occupying a quiet position off the village green.

7, Dashwood Court - Dashwood Court was created some 26 years ago with the conversion of an attractive Victorian stable block. Although the interiors of the properties that form the development are essentially contemporary in style, the buildings are very much Victorian influenced. On the first floor is a spacious open plan reception room with wood boarded floor throughout and high vaulted ceiling with exposed roof timbers. A large arched window overlooks the village green and an extended glazed roof section provides additional natural lighting. The family room/study has a southwest facing glazed section and an arched window overlooking the courtyard.

The comprehensively fitted kitchen/breakfast room with a pale terracotta tile floor has solid wood wall and floor cabinets and solid granite worktops. In addition to the fitted breakfast bar with cupboards and a wine rack below there is a four ring halogen hob, eye level double oven, grill, microwave and refrigerator.

The three double bedrooms and family bathroom are on the ground floor, with the principal bedroom having an en suite shower room. There is also a utility room, with washing machine and freezer.

Outside - The mews is approached by a wide gravel driveway with grass borders that leads into the outer courtyard where covered parking is provided. There is an outside communal water tap, power point and concealed oil tanks. An attractive flagged walkway leads into the communal inner courtyard featuring large shrub-filled raised planters and brick paviour walkways. There is external lighting throughout. A private timber deck extends from the front of the property with inset uplighters.

There are 2 covered parking bays in a twin open-fronted garage and there is also visitors parking in the outer courtyard

Aston Rowant - Aston Rowant is an attractive small village situated at the foot of the Chiltern escarpment. It is set around a charming village green with some delightful period property. The majority of the village is set off the principal traffic route enjoying a quiet and peaceful environment with motor traffic almost entirely restricted to access only. There is a 12th Century church and the renowned Aston Park Stud whose paddocks are visible in the approach to the village. The village is well known for the quality of its primary school which has an 'outstanding' Ofsted rating and the first class cricket green. Both the towns of Watlington and Chinnor are within 4 miles of the village with more comprehensive facilities in the nearby market town of Thame. Aston Rowant is only a mile or so from junction 6 of the M40 providing easy access to London, and the Midlands and there is also a connection to the 'Oxford Tube' bus service that operates a daily service between London and Oxford.

Services - Mains Services: Water / Drainage / Electricity
Heating: Oil fired central heating
Broadband: Superfast broadband available
Local Authority: South Oxfordshire District Council
Council Tax Band: F
EPC: D

Availability - Available immediately
Unfurnished
Not suitable for smokers/pets

Deposit amount based on asking price at 5 weeks rental= £2,192.00

Client Money Protection - Client Money Protection:
We are members of the Money Shield Client Money Protection Scheme.
Membership Number: 74683560
Redress Scheme: We are members of The Property Ombudsman Redress Scheme.

Robinson Sherston

Robinson Sherston

The Old Forge, 16 Bell Street
Henley-on-Thames
Surrey
RG9 2BG

+44 (0)1491 411911

Reference: 34245512

Request a viewing for this property

Simply fill out the form below or alternatively call us on 020 7839 0888

* Mandatory fields