2 Bedroom Terraced
£275,000
Station Road, Newton Poppleford, Sidmouth

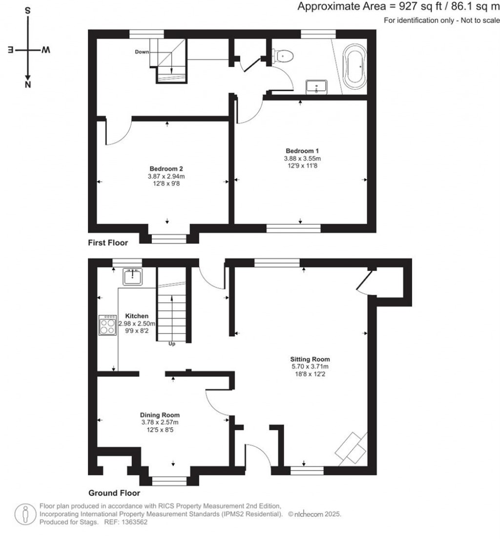
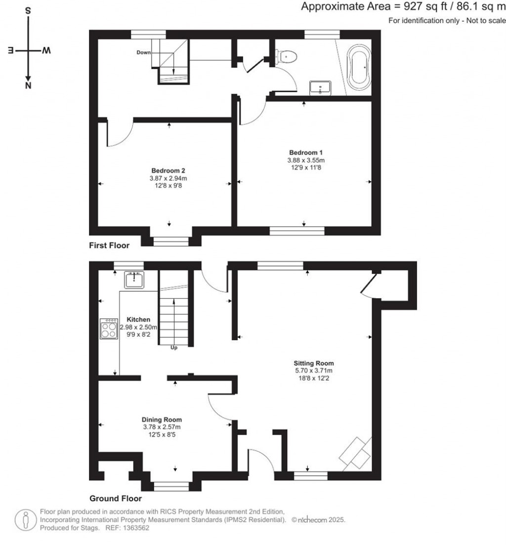
Floorplans For Station Road, Newton Poppleford, Sidmouth Floorplans For Station Road, Newton Poppleford, Sidmouth

Description


Characterful two-bedroom thatched cottage with substantial barn/workshop and impressive, well-established gardens.

Situation - Newton Poppleford offers a good range of day-to-day amenities including a Post Office, pub, primary school, hairdresser, and historic parish church. The village is served by regular bus routes providing access to Sidmouth, Budleigh Salterton, Exmouth and Exeter.

The nearby Regency town of Sidmouth is known for its beaches, coastal walks, and annual folk festival. As part of the Jurassic Coast UNESCO World Heritage Site, the town also offers a range of shops, including a Waitrose, and both state and independent schooling.

To the west, Junction 30 of the M5 provides easy access to Exeter and beyond. Exeter offers a full range of facilities including national rail links to London (Waterloo and Paddington) and flights from Exeter International Airport.

Description - This delightful thatched cottage blends period charm with modern comfort. The main living room is generously sized, featuring exposed beams and a wood-burning stove that adds warmth and character. At the centre of the home is a spacious country-style dining room, ideal for family meals and entertaining.

The recently refitted kitchen is finished to a high standard, with modern units, integrated appliances, and a smart, functional layout. Upstairs, there are two well-proportioned bedrooms along with the bathroom.

Outside - The property sits within generous, well-tended gardens that enjoy views towards the surrounding countryside. Mostly laid to lawn, the gardens feature, established borders, and a variety of seating areas that make the most of the setting. A key feature is the large detached barn/garage, providing excellent storage, workshop space, or potential for future conversion, subject to the necessary planning consents.

Services - All main services connected. Gas central heating.
Standard, superfast and ultrafast broadband available. Mobile signal likely outside with all major networks (Ofcom, 2025).

Residential Lettings - If you are considering investing in a Buy To Let or letting another property and require advice on current rents, yields or general lettings information to ensure you comply, please contact a member of our lettings team on 01404 42553.

Directions - What 3 words ///handicaps.sobered.tripods

Stags

Stags

Bank House
66 High Street
Honiton
Devon
EX14 1PS

+44 (0)1404 45885

Reference: 34241927

Request a viewing for this property

Simply fill out the form below or alternatively call us on 020 7839 0888

* Mandatory fields