Plot
£120,000
Main Road, Shutlanger, NN12

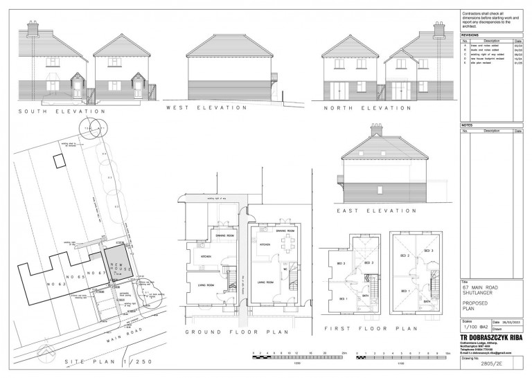
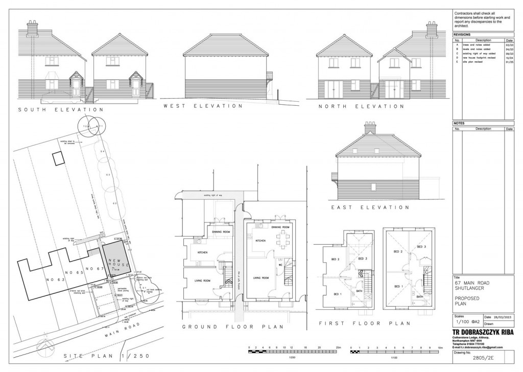
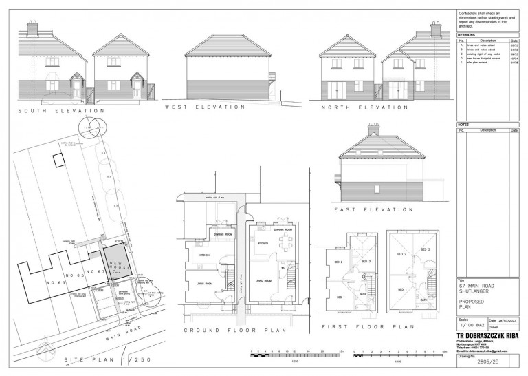
Floorplans For Main Road, Shutlanger, NN12

Description


A rarely available single building plot, granted Full Planning Permission by West Northamptonshire Council, under reference 2025/0737/FULL, for a three bedroom house, complete with a long, established garden and driveway parking, situated on the edge of the sought-after village of Shutlanger.

Shutlanger - The desirable village of Shutlanger is situated about nine miles south of Northampton with easy access to the A5 to Towcester and Milton Keynes and the A508 Northampton to Stony Stratford road, next to Stoke Bruerne. Road communications are good with junction 15 of the M1 some five miles to the north. There is a rail service from Northampton and Milton Keynes to London (Euston).

In the village there is a public house, with a primary school in the neighbouring village of Stoke Bruerne through which the Grand Union Canal runs and where there is the Waterways Museum and Canal Side public houses and restaurants. Educational facilities are well served in the area with secondary education available in the village of Roade which has a school bus.

Sporting activities in the area include rugby, hockey, tennis, netball and cricket at the nearby Towcestrians Sports Club, golf at Silverstone and Whittlebury Hall, sailing at Draycote Water, Pitsford and Hollowell Reservoirs, and of course the world famous motor racing at Silverstone.

Features - Granted Full Planning Permission on the 4th of September 2025, under reference 2025/0737/FULL, for a two storey, three bedroom house, complete with a long, established garden and driveway parking. We understand this development is liable for Community Infrastructure Levy, (CIL), the charging rate set out by West Northamptonshire Council is £288.56 per sq mt, however it may be possible to gain a self-build exemption, with the proviso that the owner lives in the completed property for a minimum of three years. Any prospective purchaser should check this information with the Council and their own legal advisors before commitment to purchase.

Local Authority - West Northamptonshire Council
The Forum, Moat Lane
Towcester, NN12 6AD

Council Tax Band - Band - To be determined on completion of build

Viewing Arrangements - Strictly by prior appointment via the selling agents, Howkins and Harrison. Tel:01327-353575.

Services - The following services are available adjacent to the plot; gas, electricity, water and drainage. None of the above services have been tested and purchasers should note that it is their specific responsibility to make their own enquiries of the appropriate authorities as to the location, adequacy and availability of mains services.

Fixtures And Fittings - Only those items in the nature of fixtures and fittings mentioned in these particulars are included in the sale. Other items are specifically excluded. None of the appliances have been tested by the agents and they are not certified or warrantied in any way.

Floorplan & Land App - Howkins and Harrison provide these plans for reference only - they are not to scale.

Important Notice - Every care has been taken with the preparation of these Sales Particulars, but complete accuracy cannot be guaranteed. In all cases, buyers should verify matters for themselves. Where property alterations have been undertaken buyers should check that relevant permissions have been obtained. If there is any point, which is of particular importance let us know and we will verify it for you. These Particulars do not constitute a contract or part of a contract. All measurements are approximate. The Fixtures, Fittings, Services & Appliances have not been tested and therefore no guarantee can be given that they are in working order. Photographs are provided for general information and it cannot be inferred that any item shown is included in the sale. Plans are provided for general guidance and are not to scale.

Howkins & Harrison

Howkins & Harrison

98A Watling St
Towcester
Northamptonshire
NN12 6BT

+44 (0)1327 353575

Reference: 34235461

Request a viewing for this property

Simply fill out the form below or alternatively call us on 020 7839 0888

* Mandatory fields