Plot
£85,000
Leys Road, Pattishall, NN12

Floorplans For Leys Road, Pattishall, NN12

Description


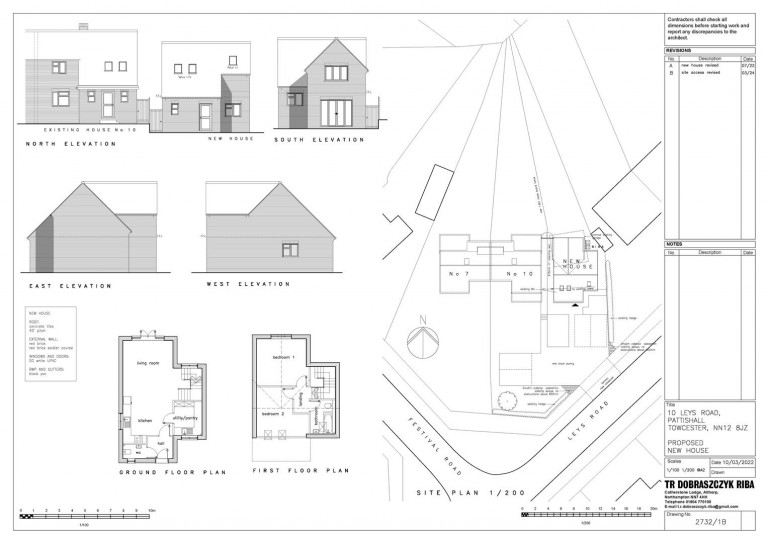
A rarely available single building plot, granted Full Planning Permission by West Northamptonshire Council, under reference 2024/1214/FULL, for a two-bedroom detached house, complete with a garden and driveway parking, situated within the popular village of Pattishall.

Pattishall - Situated in the pretty South Northamptonshire countryside, the parish village of Pattishall boasts a church, parish hall, primary school with pre-school and nursery, farm shop, a large playing field with football, cricket and tennis facilities with play equipment, two further play areas, pub/restaurant, and a variety of groups and societies. 'Pattishall in the Park' is an annual music festival. A fish & chip van, mobile library and mobile butcher visit the village on a weekly basis.

There is good access to the main arterial roads including the A5, M1 motorway at junction 15a, the M40 and A43 with train stations at Milton Keynes and Northampton offering services to London Euston with journey times of around 35 minutes and 1 hour respectively.

Local amenities can be found at either Greens Norton, Silverstone or Towcester, all having doctors' surgeries with a number of dentists in Towcester.

Sporting activities in the area include rugby, hockey, tennis, netball and cricket at the nearby Towcestrians Sports Club, golf at Silverstone and Whittlebury Hall, sailing at Draycote Water, Pitsford and Hollowell Reservoirs, and of course the world famous motor racing at Silverstone.

Features - Granted Full Planning Permission on the 25th of April 2024, under reference 2024/1214/FULL, for a two storey, two bedroom house, with a garden and driveway parking. We understand this development is liable for Community Infrastructure Levy, (CIL), however it may be possible to gain a self-build exemption, with the proviso that the owner lives in the completed property for a minimum of three years. Any prospective purchaser should check this information with the Council and their own legal advisors before commitment to purchase.

Local Authority - West Northamptonshire Council
The Forum, Moat Lane
Towcester, NN12 6AD

Council Tax Band - Band - To be determined once the build is complete

Viewing Arrangements - Strictly by prior appointment via the selling agents, Howkins and Harrison. Tel:01327-353575.

Fixtures And Fittings - Only those items in the nature of fixtures and fittings mentioned in these particulars are included in the sale. Other items are specifically excluded. None of the appliances have been tested by the agents and they are not certified or warrantied in any way.

Services - The following services are available adjacent to the plot; gas, electricity, water and drainage. None of the above services have been tested and purchasers should note that it is their specific responsibility to make their own enquiries of the appropriate authorities as to the location, adequacy and availability of mains services.

Floorplan & Land App - Howkins and Harrison provide these plans for reference only - they are not to scale.

Important Notice - Every care has been taken with the preparation of these Sales Particulars, but complete accuracy cannot be guaranteed. In all cases, buyers should verify matters for themselves. Where property alterations have been undertaken buyers should check that relevant permissions have been obtained. If there is any point, which is of particular importance let us know and we will verify it for you. These Particulars do not constitute a contract or part of a contract. All measurements are approximate. The Fixtures, Fittings, Services & Appliances have not been tested and therefore no guarantee can be given that they are in working order. Photographs are provided for general information and it cannot be inferred that any item shown is included in the sale. Plans are provided for general guidance and are not to scale.

Howkins & Harrison

Howkins & Harrison

98A Watling St
Towcester
Northamptonshire
NN12 6BT

+44 (0)1327 353575

Reference: 34235428

Request a viewing for this property

Simply fill out the form below or alternatively call us on 020 7839 0888

* Mandatory fields