2 Bedroom End of Terrace
£250,000
Applebee Way, Lyme Regis

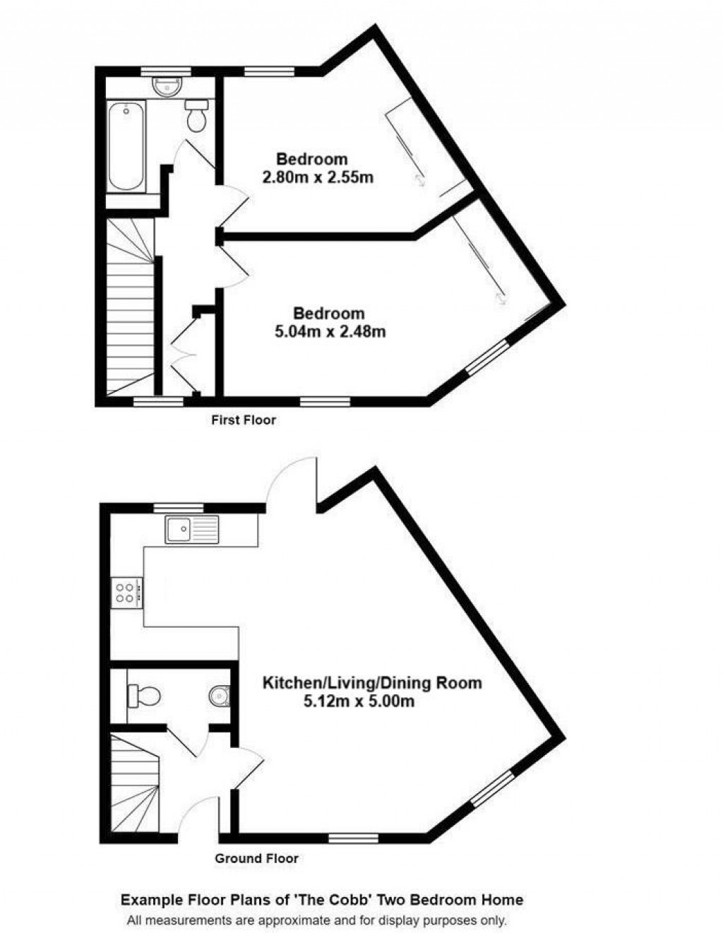
Floorplans For Applebee Way, Lyme Regis
EPC Graph for Applebee Way, Lyme Regis

Description


An immaculate two bedroom house situated in the Monmouth Park development close to the centre of the popular coastal town of Lyme Regis.

The Property - A two bedroom house on the Monmouth Park development, built to a high specification with two bedrooms, a family bathroom, open plan living accommodation and the benefit of two parking spaces.

The front door opens into a spacious hallway with a downstairs cloakroom and understairs cupboard. The open plan living space is L-shaped, with the sitting and dining area spanning the depth of the house, with double doors onto the rear garden. The bespoke kitchen is fitted with a range of wall and base units with Silestone worktops, and integrated appliances include an electric oven and hob, fridge/freezer, dishwasher and washing machine. The downstairs of the property benefits from under floor heating throughout.

Upstairs there are two bedrooms, both benefitting from built-in mirrored wardrobes. The family bathroom is fitted with a contemporary white suite comprising of a bath with shower over, wc and sink with chrome taps, a heated towel rail and large format porcelain tiles.

Outside - To the rear is a paved courtyard style garden, with steps down to the parking area.

Services - Mains gas, electricity, water and drainage. Gas fired central heating.
Broadband - Ultrafast broadband is available.
Mobile phone coverage - Network coverage is good both indoors and out.
Dorset Council - 01305 251010.
Council Tax Band: B.

Situation - Monmouth Park is a stunning collection of traditionally designed homes built to a superior standard with spacious accommodation in the popular coastal town of Lyme Regis. A short drive or a fifteen-minute walk will take you into the centre of Lyme Regis, a picturesque town noted for its attractive period buildings, the famous centuries-old Cobb and harbour. In the town is an excellent selection of facilities including many independent shops and a number of restaurants and hotels, together with various museums. Moments from the high street is the charming award-winning sandy beach which is ideal for families. The harbour is popular with anglers and those keen on deep sea fishing trips, and the sailing and power boat clubs are also nearby. The market town of Axminster, approximately 6 miles distant, provides a good range of day to day amenities, as well as a vibrant market every Thursday and a mainline train service to London Waterloo.

Agents Note - We understand that there is a service charge of £196.53 payable per annum for the maintenance of the private roads and communal area.

Symonds and Sampson

Symonds & Sampson

Trinity Square
Axminster
Devon
EX13 5AW

+44 (0)1297 33122

Reference: 34234410

Request a viewing for this property

Simply fill out the form below or alternatively call us on 020 7839 0888

* Mandatory fields