2 Bedroom Bungalow
£495,000
Eype Beach Holiday Park, Eype, Bridport

Floorplans For Eype Beach Holiday Park, Eype, Bridport

Description


A new luxury holiday lodge occupying a prime clifftop position with fantastic sea views along the Jurassic Coast. EPC: Exempt.

Welcome to Thorncombe Heights, a prestigious new development of Luxury Holiday Lodges for sale at Eype Beach Holiday Park, perched high on the Dorset cliffs. Overlooking mile after mile of World Heritage Jurassic Coastline, this exclusive opportunity provides a holiday lifestyle of adventure, and timeless coastal beauty. Part of the esteemed West Dorset Leisure Holidays, a family-run business with over 50 years of expertise, Thorncombe Heights offers you a rare opportunity to own a premium Lodge in one of the most sought-after locations on the Dorset Coastline.

Thorncombe Heights introduces exclusive luxury, with each Lodge boasting modern, high-end amenities, offering a sophisticated home-from-home experience with panoramic views across Lyme Bay. Picture waking up to the gentle sound of the sea, enjoying your morning coffee on the vast wrap-around decking, and throughout the winter months the sun both rises and sets out over the sea, which you can enjoy from the wraparound decking.

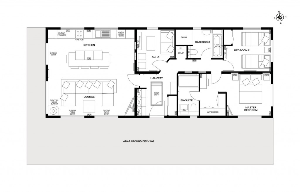
The Lodge - This Lodge situated on Pitch 1, is a spectacular 50 x 20ft bespoke model built by Timber Venture, located in Devon. The large open-plan living/dining/kitchen area is flooded with natural light from the floor-to-ceiling windows and sliding patio doors. Make the most of the incredible view from the large lounge-style sofa area, with comfortable seating designed for relaxation, watch the 42" smart tv or cosy up round the electric fireplace. In the kitchen you'll find marble worktops and fully-integrated high end appliances, including double oven, 4 ring gas hob, full size dishwasher, microwave and in-built coffee machine. There's also a full size fridge freezer and integrated wine chiller. The central island provides a sociable place to eat, drink, chat and prep food.

The master bedroom comes with a king-size bed, and more floor-to-ceiling windows to appreciate the sea view from. It's also got its own walk-in-wardrobe and dressing room area, plus an en-suite shower-room. The spacious twin bedroom comes with zip link beds, providing the flexibility to easily convert this room to a double. There is also a third room, currently used as a snug area, that could instead be used as a third bedroom or office space. The family bathroom boasts an incredible jet bathtub and two-person infra-red sauna, giving you a multitude of ways to relax.

The entranceway is bright and airy, providing plenty of storage opportunities and a washer/dryer. Outside, the view from the large wraparound decking speaks for itself. South East facing, you'll be able to enjoy your breakfast or morning coffee watching the sun rise over West Bay and the Isle of Portland. You'll also be able to enjoy the sun throughout the afternoon and early evening. Included will also be an outdoor storage box perfect for a bbq, beach gear and decking furniture.

The expected handover date for the new owners of this lodge is Spring 2026.

Nearby Facilities - Sister park, Highlands End, is located on the opposite side of the valley and is just a 15-20 minute walk from Thorncombe Heights. The park has facilities including Martin's Bar & Restaurant, Highlands End Leisure Club with indoor heated swimming pool, sauna and steam, Dorset Foot Golf, a SPAR convenience store, children's play areas, soft play, nature trail and off-road mobility scooter for hire. These facilities are all available to holiday home owners at Thorncombe Heights, with exclusive discounts at these facilities, as well as many local businesses and attractions in the local area.

Eype Beach & The Coast Path - The lodge is dog friendly with up to 3 welcome. Eype Beach, just a few hundred metres from Thorncombe heights, is an unspoiled shingle beach that's dog friendly all-year-round and great for activities like fishing, paddleboarding and picnics. The South West Coast Path runs right past the development and you can walk west to the peak of Thorncombe Beacon and the bluebells of Eype Downs or east to West Bay and Burton Bradstock. This is a truly idyllic setting for relaxation and recreation.

The Village Of Eype - The journey to Thorncombe Heights takes you along the winding lanes down through the valley and the charming village of Eype. Pronounced "Eep," it's name means "steep place", which as you will soon find is reflected in the Thorncombe Heights development, located on the cliffside with views over Eype Beach and beyond. The secluded shingle beach and 18th and 19th Century cottages exude a timeless charm, featuring St Peter's Church, a Victorian gem, which doubles as the Eype Centre for the Arts, hosting exhibitions and events. The New Inn, a dog-friendly pub, serves local fare and is a Palmer's Brewery pub, the oldest thatched brewery in the UK and located a couple of miles away in the market town of Bridport.

Tenure - 35 year lease, commencing XXX.
Pitch Fee: £7,999 for 2026. This is reviewed annually for the following year.

You can only use the holiday home for holiday and recreational purposes. You must not use the holiday home as your only or main residential home.
You are entitled to use the holiday home during a 10.5 month annual season.
Hiring out of the holiday home is not permitted. Friends & family may use the holiday home, but must be registered guests.

Stags

Stags

29 South Street
Bridport
Dorset
DT6 4NR

+44 (0)1308 428000

Reference: 34231673

Request a viewing for this property

Simply fill out the form below or alternatively call us on 020 7839 0888

* Mandatory fields