2 Bedroom Detached
£575,000
Mortehoe

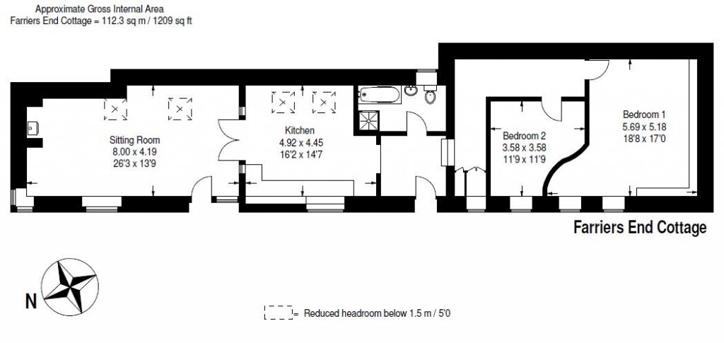
Floorplans For Mortehoe
EPC Graph for Mortehoe

Description


An attractive detached barn conversion in a fine position between Mortehoe and Lee Bay with views to the sea from the garden. Exposed beams, hardwood floors and a brick fireplace. Split level accommodation with two bedrooms, a shower room, kitchen / dining room and spacious living room. Outside there is private parking, a paddock and a stone terrace with views to the coast. 0.42 acres. EPC: Band E. FREEHOLD.

Situation - Situated in an elevated position overlooking the Atlantic Ocean on the rugged North Devon coast, Farriers End lies between Mortehoe and Lee.
 
Lee is one of the area's few remaining unspoilt coastal locations and is a pretty village in an Area of Outstanding Natural Beauty within a quiet rocky inlet on the North Devon Coast. There is a footpath to Lee from nearby to Farriers End.
 
The coastal town of Woolacombe, renowned worldwide for its sandy beach, lies approximately 2.5 miles to the west and offers a small range of shops. The nearby town of Ilfracombe has the Landmark Theatre, a doctors surgery as well as banks, shops and supermarkets.
 
The market town of Barnstaple, about 14 miles away, holds a weekly pannier market, and provides an extended range of shops including numerous major retailers and supermarkets, as well as leisure and commercial facilities.
 
The sandy beaches of Saunton, Croyde and Putsborough are within easy reach of the property and the Exmoor National Park and coast provides wide opportunity for walking and riding.
 
Schooling is available in Ilfracombe, Braunton and Barnstaple as well as the well-regarded West Buckland School for which there is a bus service within three miles of the property.

Description - Farriers End is an attractive detached house which was converted from a traditional stone barn in 2008 and has a lot of characterful features including exposed beams, oak floors, stained glass windows and a large brick fireplace. The construction is mostly stone with brick quoins around the windows and a tiled roof.

The accommodation is on a split level and on the ground floor includes a living room with a multi-fuel stove, a kitchen with hand-made kitchen units, granite work surfaces and a dining area. There is also a bath / shower room. On the upper floor there are two double bedrooms.

Outside there is a secluded patio area with low level stone walls, positioned to take advantage of the sea views to the north-west. In addition there is a large grass paddock. In all the property extends to 0.42 acres.

Services - Mains electricity, mains water, private drainage (shared with five other properties), oil-fired central heating (recently installed boiler). Based on information from Ofcom mobile phone coverage is available with EE, O2, Three & Vodafone. Ofcom predicted broadband availability is standard (0.5 Mbps to 3 Mbps).

Local Authority - North Devon District Council. Telephone: 01271 327711 (www.northdevon.gov.uk).

Council Tax Band C.

Viewing - Viewing is strictly by prior appointment with Stags. Please call 01271 322833 or email: barnstaple@stags.co.uk to arrange an appointment.

Directions - From Mullacott Cross on the A361 to the north of Braunton and south of Ilfracombe, proceed west on the B3343 towards Woolacombe and Mortehoe.

Continue along this road for approximately 3 miles, and after the sharp right hand bend, take the next turning on the right onto Mortehoe Station Road signed towards Mortehoe.

Follow this road for approximately half a mile and upon reaching Borough Cross turn right into Warcombe Lane. Continue this road for about 0.5 miles and Farriers End will be found on the right.

What3words - ///front.dazzling.putts

Disclaimer - These particulars are a guide only and should not be relied upon for any purpose.

Stags

Stags

30 Boutport Street
Barnstaple
Devon
EX31 1RP

+44 (0)1271 322833

Reference: 34227608

Request a viewing for this property

Simply fill out the form below or alternatively call us on 020 7839 0888

* Mandatory fields