4 Bedroom Detached
£425,000
Reeves Lane, Wing, Oakham, Rutland

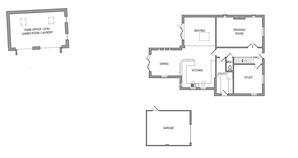
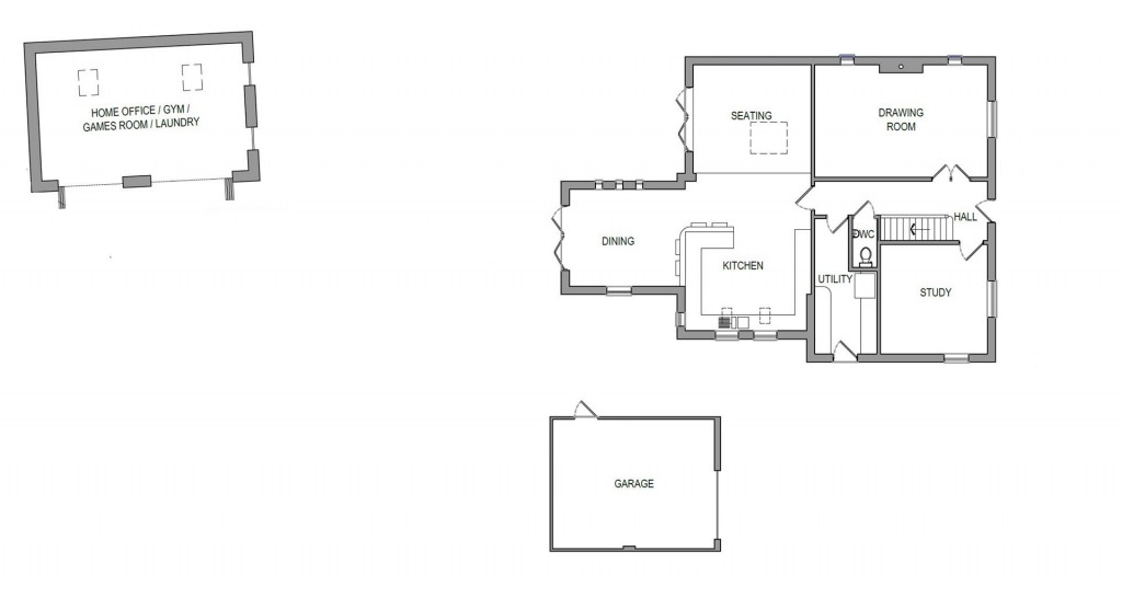
Floorplans For Reeves Lane, Wing, Oakham, Rutland Floorplans For Reeves Lane, Wing, Oakham, Rutland

Description


Set on a generous quarter-acre plot, this site currently holds a two-bedroom bungalow and comes with full planning permission for a four-bedroom family home. The proposed design includes off-road parking, garaging, and a spacious west-facing garden. Plans also feature a detached, purpose-built home office/gym, offering flexible space for modern living.

Planning Reference - 2025-0392-FUL

Location - Wing is a much sought-after Rutland village based south of Rutland Water, four miles from Oakham and three miles from Uppingham. Reeves Lane itself is an incredibly quiet road with no through traffic. The village has a very active community and has a popular farm shop comprising a restaurant/tearoom and provides a comprehensive range of local farm produce, fine wine and everyday essentials. There is a bus service to all local market towns, great road links to Leicester, Stamford and Peterborough and the area is particularly well served by plenty of popular schooling in both the state and private sectors.

Services & Council Tax - The property is currently offered to the market with all mains services connected and gas LPG.

Rutland County Council - Tax Band D

Tenure - Freehold

Kitchen - 4.50 x 4.46 (14'9" x 14'7") -

Dining - 4.30 x 3.60 (14'1" x 11'9") -

Seating - 4.38 x 4.03 (14'4" x 13'2") -

Drawing Room - 6.40 x 4.19 (20'11" x 13'8") -

Study - 4.06 x 3.96 (13'3" x 12'11") -

Utility - 5.01 x 2.30 (16'5" x 7'6") -

Bedroom 1 - 4.80 x 4.20 (15'8" x 13'9") -

Bedroom 2 - 4.19 x 3.13 (13'8" x 10'3") -

Bedroom 3 - 4.19 x 2.53 (13'8" x 8'3") -

Bedroom 4 - 4.06 x 2.74 (13'3" x 8'11") -

Family Bathroom - 2.94 x 2.12 (9'7" x 6'11") -

Ensuite - 3.62 x 1.26 (11'10" x 4'1") -

Home Office/Gym - 7.68 x 4.75 (25'2" x 15'7") -

Garage - 6.00 x 4.80 (19'8" x 15'8") -

Andrew Grant

24 Catmos Street
Oakham
Rutland
LE15 6HW

+44 (0)1572 724437

Reference: 34225431

Request a viewing for this property

Simply fill out the form below or alternatively call us on 020 7839 0888

* Mandatory fields