Description
A semi-detached 2 bedroom period cottage close to the centre of Newmarket and within walking distance of the town centre. The property offers well proportioned accommodation and has period features including an open fireplace with wood burning stove. NO CHAIN.
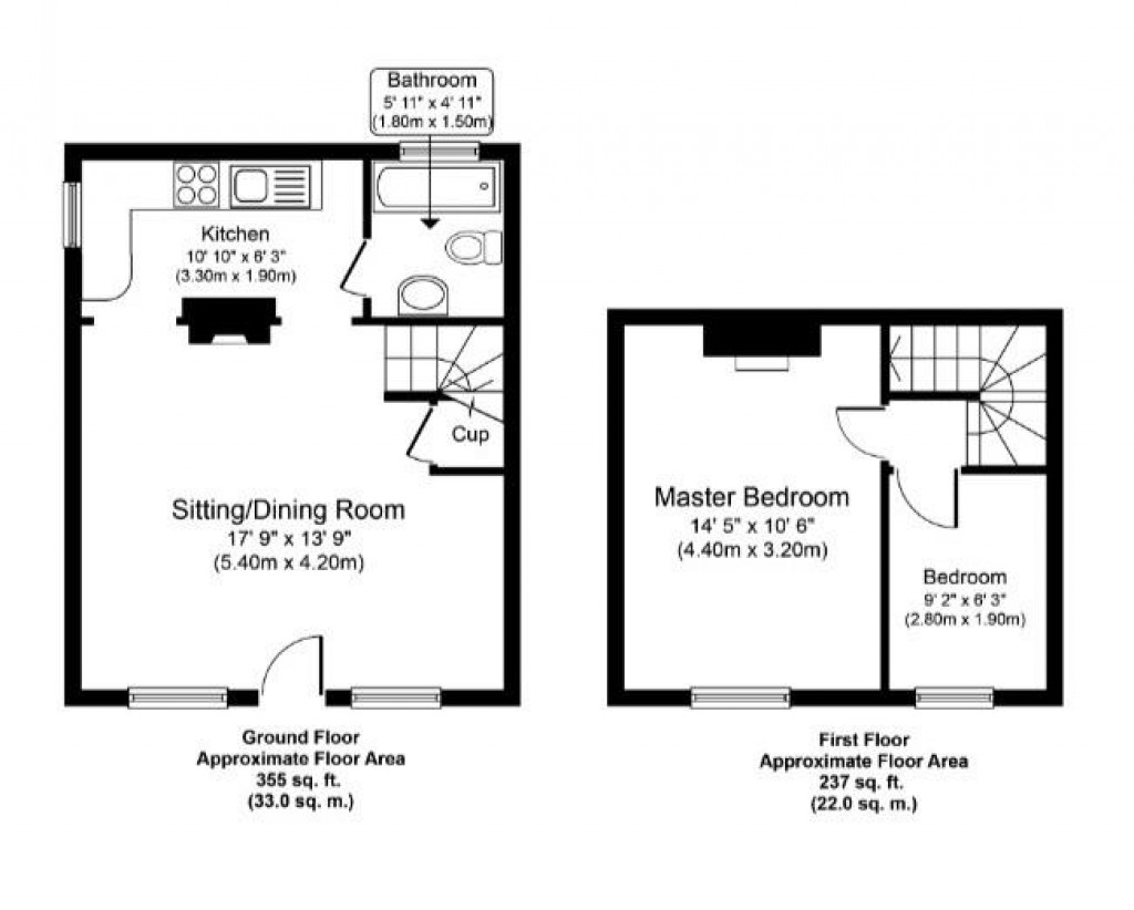
Sitting/Dining Room - with entrance door, 2 sash windows to the front, built-in storage cupboard, mock beams to walls and ceiling, stairs to first floor, open fireplace with brick surround and wood burning stove.
Kitchen - with a range of base and wall mounted units with work surfaces over, butler sink with mixer tap, electric hob and oven, wall mounted gas boiler.
Bathroom - with a low level WC, wall mounted hand wash basin, panelled bath with shower over, tiled surround, heated towel rail.
First Floor -
Landing -
Bedroom 1 - with wooden floor boards, access to loft space.
Bedroom 2 -
Sales Agents Notes - For more information on this property, please refer to the Material Information Brochure on our website.