4 Bedroom Detached
£350,000
Whitestone, Exeter

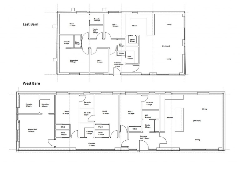
Floorplans For Whitestone, Exeter

Description


A stunning site with planning consent for the development of two properties occupying an elevated position only 5 miles from Exeter, with additional land available subject to separate negotiation.

Situation - Devon View enjoys a delightful and elevated setting to the west of Exeter, just beyond the village of Whitestone, on the edge of the glorious Devon countryside. Its position offers the perfect balance of peaceful rural surroundings while being only five miles from Exeter city centre. Exeter, the regional capital of the South West, is a thriving hub, offering excellent business facilities alongside an abundance of restaurants, cafés and wine bars. The city also boasts a wide range of leisure and cultural amenities, together with extensive shopping facilities. The development is ideally placed for communications. The M5 at Exeter provides swift links north towards Bristol and London, as well as south via the A38 to Plymouth and the A30 into Cornwall. Rail connections are equally convenient, with regular services from Exeter to London Paddington in just over two hours. For those travelling further afield, Exeter International Airport offers both domestic and international flights.

Description - A rare opportunity to purchase two agricultural barns with prior approval under Part 3 Class Q for change of use to two larger dwellinghouses. Both plots (East Barn and West Barn) occupy an elevated and rural position just outside the popular village of Whitestone and only 5 miles from the centre of Exeter. The proposed developments comprise of two 4 bedroom, single storey dwellings with a combined living space of over 3,500 sqft. The two plots are surrounded by land amounting to 0.44 acres. There is additional land available subject to separate negotiation. Please speak to the Agent for futher information.

The plots are ideal for both developers or self-builders seeking a secluded yet accessible location close to Exeter.

Planning Permission - Further information on the two developments can be found on the Teignbridge planning portal:
East Barn: Approx GIA = 1612.33 Sqft. Reference 25/00612/NPA
West Barn: Approx GIA = 1912.66 Sqft. Reference 25/00613/NPA

Cil & Habitats Contribution - The Community Infrastructure Levy (CIL) payments are as follows:

East Barn - £49,010.79
West Barn - £58,139.57
There is an exemption from CIL payments for self-builders.

There is a Habitat Mitigation Regulation Contribution per dwelling of £335.

Conditions - A full list of conditions can be found on the Teignbridge District Council planning site.

Services - Purchasers must satisfy themselves as to the ability to make adequate connections for mains services that may be required. However, we understand that the site has mains electricity and water services located nearby on the road. A sewage treatment plant (STP) will need to be installed as part of the development.

Viewings - By appointment only. Please contact agent for further information.

Directions - What3words - ///badminton.providing.protect

Stags

Stags

21 Southernhay West
Exeter
Devon
EX1 1PR

+44 (0)1392 255202

Reference: 34213246

Request a viewing for this property

Simply fill out the form below or alternatively call us on 020 7839 0888

* Mandatory fields