4 Bedroom Town House
£365,000
Colwyn Road, Northampton, NN1

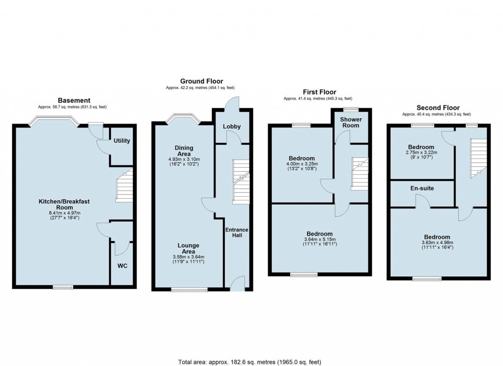
Floorplans For Colwyn Road, Northampton, NN1
EPC Graph for Colwyn Road, Northampton, NN1

Description


A fine Victorian four storey town house with a wealth of character features blended with modern day convenience which according to the date stone, Blake cottage dates back to 1873 and backs onto the historic Racecourse Park.

Location - The property is situated close to the Kettering Road and within a short distance of the town centre and Wellingborough Road which is well equipped with all day to day shopping facilities, banks, building societies, bars and restaurants. Northampton mainline train station operates to London Euston and Birmingham New Street.

Ground Floor - Accommodation at Blake cottage is entered through a period style composite front door into the hall where the stairs rise to the first floor accommodation and descend to an impressive basement kitchen/breakfast room which gives access to a useful rear porch/boot room. The sitting room features two period fireplaces with mantel surrounds and part exposed floorboards, other period features include two fine ornate original ceiling roses and cornicing. An impressive kitchen/dining room has a range of modern stylish cabinets and butchers block wooden working surfaces incorporating a deep sink. Appliances include a hob, double oven and dishwasher, there is also an understairs cupboard, door giving access to the rear garden and an open fireplace. Just off the kitchen is a utility room with plumbing for a washing machine and a separate cloakroom with wash hand basin and WC.

First Floor - The first floor consists of two bedrooms both with period fireplaces and a shower room.

Outside - The rear garden can be accessed via the rear porch/boot room or basement kitchen, the garden is not overlooked and backs directly onto the Racecourse park, there is a paved patio and mainly lawned gardens enclosed by boundary walls and established planting.

Viewing Arrangements - Strictly by prior appointment via the agents Howkins & Harrison. Tel: 01604-823456

Local Authority - West Northamptonshire Council - Tel: 0300-1267000

Council Tax - Council Tax Band - C

Fixtures And Fittings - Only those items in the nature of fixtures and fittings mentioned in these particulars are included in the sale. Other items are specifically excluded. None of the appliances have been tested by the agents and they are not certified or warranted in any way.

Services - None of the available services have been tested and purchasers should note that it is their specific responsibility to make their own enquiries of the appropriate authorities as to the location, adequacy and availability of mains water, electricity, gas and drainage services.

Floorplan - Howkins & Harrison provide these plans for reference only - they are not to scale.

Important Notice - Every care has been taken with the preparation of these Sales Particulars, but complete accuracy cannot be guaranteed. In all cases, buyers should verify matters for themselves. Where property alterations have been undertaken buyers should check that relevant permissions have been obtained. If there is any point, which is of particular importance let us know and we will verify it for you. These Particulars do not constitute a contract or part of a contract. All measurements are approximate. The Fixtures, Fittings, Services & Appliances have not been tested and therefore no guarantee can be given that they are in working order. Photographs are provided for general information and it cannot be inferred that any item shown is included in the sale. Plans are provided for general guidance and are not to scale.

Howkins & Harrison

Howkins & Harrison

14 Bridge Street
Northampton
Northamptonshire
NN1 1NW

+44 (0)1604 823456

Reference: 34211738

Request a viewing for this property

Simply fill out the form below or alternatively call us on 020 7839 0888

* Mandatory fields