4 Bedroom End of Terrace
£900,000
Castle Street, Saffron Walden

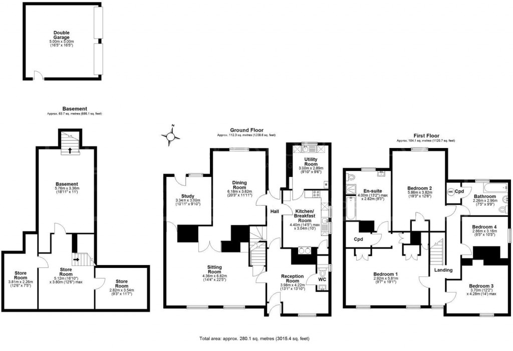
Floorplans For Castle Street, Saffron Walden

Description


A handsome, Grade II Listed former public house set in arguably one of the town's most picturesque streets. The property enjoys extensive accommodation incorporating a large basement/cellar, detached double garage and a good sized garden.

History - The Bell House, formerly The Five Bells Inn, has a history rooted in its 16th-century origins, though its current form showcases significant 17th, 18th and 19th-century alterations and additions, including timber framing, rendering, and later brick and flint work. The building features elements like casement windows and wooden panelling from the 18th century, reflecting its evolutionary construction as a former inn and house. It ceased trading as a public house in the 1960s.

Ground Floor -

Entrance Hall - Timber entrance door with window above and further glazed door leading to:

Reception Hall - A welcoming, atmospheric room with exposed timbers, fireplace with exposed brickwork and secondary glazed window to the front aspect.

Cloakroom - Comprising low level WC, wash basin and obscure glazed window.

Reception Room - A pair of secondary glazed windows to the front aspect enjoying views over the street scene and providing a good degree of natural light. Fireplace with exposed brickwork and adjoining display cabinet, understairs storage cupboard and a pair of glazed doors leading to the Dining Room. Opening to:

Study - A versatile, multi-purpose room with secondary glazed window to the rear aspect overlooking the courtyard and an adjoining door (currently not in use).

Dining Room - A spacious reception room with a secondary glazed window to the rear aspect overlooking the courtyard and garden beyond, parquet flooring and fireplace with exposed brickwork. Door to:

Inner Hallway - Door leading to the rear garden via a covered space. Staircase rising to the first floor and door to:

Kitchen/Breakfast Room - Comprising a range of base and eye level units, two oven Aga, sink unit, free-standing dishwasher, washing machine and cooker, built-in pantry cupboard and a pair of secondary glazed windows to the side aspect. Solid timber flooring and glazed door to:

Utility Room - Fitted with a range of base and eye level units with worktop space, sink unit, free-standing washing machine and former fireplace with exposed brickwork.

Basement/Cellar - An extensive space, currently divided into various rooms used for storage and work area. The basement provides an opportunity for full or part-conversion to additional accommodation, subject to needs and relevant approval.

First Floor -

Landing - Secondary glazed window to the front aspect and exposed timbers.

Bedroom 1 - A spacious bedroom with a pair of secondary glazed windows to the front aspect, exposed timbers, fitted wardrobes, deep built-in cupboard, walk-in wardrobe and door to:

En Suite - Comprising panelled bath, separate shower enclosure, low level WC, vanity wash basin, heated towel rail and secondary glazed window to the rear aspect.

Bedroom - Secondary glazed window to the rear aspect and fitted wardrobe.

Bedroom 3 - Secondary glazed window to the front aspect, exposed timbers and fireplace with exposed brickwork (not in use).

Bedroom 4 - Secondary glazed window to the side aspect and exposed timbers.

Bathroom - Comprising panelled bath, low level WC, wash basin and deep built-in airing cupboard housing the pressurised hot water cylinder. Secondary glazed window to the rear aspect.

Outside - The property is set in arguably one of the town's most picturesque and sought-after streets, often featuring in photographs in the national press. The lane to the side of the property leads to a rear paved courtyard with a sliding gate providing pedestrian and vehicular access to the double garage. Beyond the courtyard are wrought iron railings and gate leading to the garden which is laid to lawn with an abundance of mature shrubs and planting.

Detached Double Garage - Accessed via a pair of up and over doors, power and lighting connected. The garage offers huge scope for conversion to a garden office/studio, dependent upon needs and relevant approval. A door to the side leads to the courtyard.

Viewings - By appointment through the Agents.

Cheffins

Cheffins

Hill Street
Saffron Walden
Essex
CB10 1JD

+44 (0)1799 523656

Reference: 34207623

Request a viewing for this property

Simply fill out the form below or alternatively call us on 020 7839 0888

* Mandatory fields