6 Bedroom Detached
£1,150,000
Whitefield, Wiveliscombe, Taunton

Floorplans For Whitefield, Wiveliscombe, Taunton Floorplans For Whitefield, Wiveliscombe, Taunton Floorplans For Whitefield, Wiveliscombe, Taunton

Description


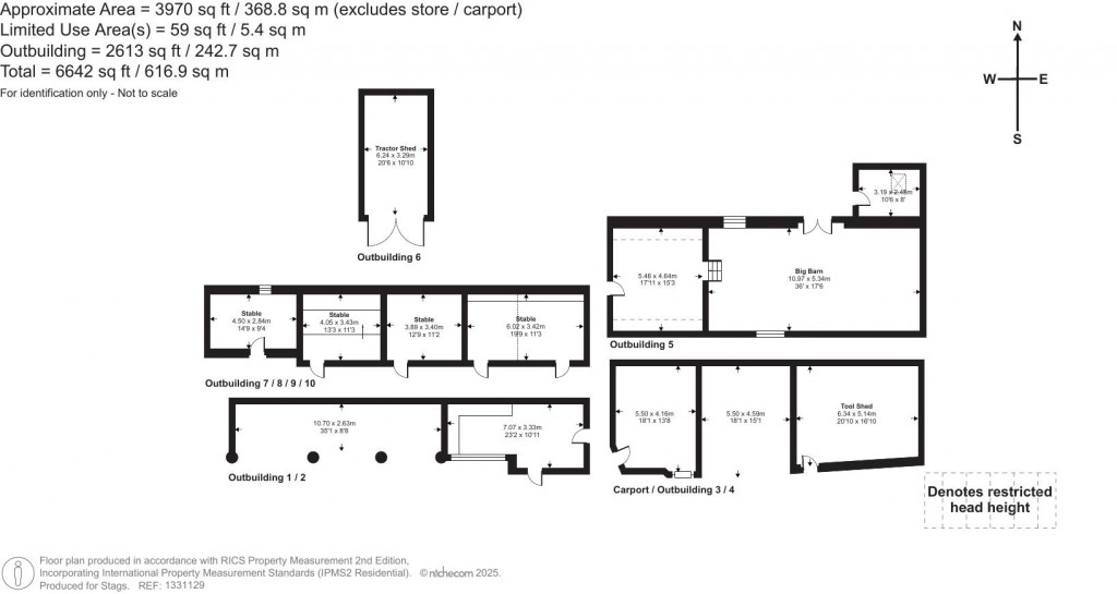
A characterful Grade II farmhouse situated in an elevated position with far reaching views outbuilding and stable, paddocks set in 10.88 acres. Outbuildings, Orchard, 5/6 bedrooms, Potential for development, No onward chain, Freehold, Council Tax Band E. EPC Exempt.

Situation - Wiveliscombe is known for its friendly community with the benefit of a weekly farmers market and active church. The town offers a good range of facilities including a supermarket, public houses, vets, library, medical centre, post office and primary and secondary schools together with a community centre. There are excellent sporting facilities including a recreational ground with its heated open air swimming pool, football, rugby and tennis clubs. For a wider selection the County Town of Taunton is within 12.4 miles with its main line rail link to London Paddington and access to the M5 motorway. The smaller town of Wellington is within 8.9 miles where further shopping, recreational and scholastic facilities can be found together with additional access to the motorway.

Description - A characterful Grade II farmhouse situated in an elevated position with far reaching views comprising a reception hall, drawing room, sitting room, dining room, study, kitchen, utility, loo and pantry. 5/6 Bedrooms and 2 bathrooms and a shower room on the first floor. Outside are mature gardens, orchards and productive vegetable garden and paddocks set in 10.88 Acres. Range of stone outbuildings including a substantial barn which offers potential to develop subject to the necessary planning consents, with an adjoining lower two storey building with the original large cider press. Adjacent to the kitchen garden is the stable block and tractor barn with hard standing. The Linhay found to the west of the property is full of character with original stone pillars. Offered for sale with no onward chain.

Accommodation - Entrance porch leading into the entrance hall with stairs rising to the first floor. Drawing room with minster fireplace, which is a lovely light room with windows overlooking the garden to the front. Sitting room with minster fireplace and inset wood burner with two window seats, dining room with inglenook fireplace and exposed beams. Kitchen/Breakfast Room with a range of wall and base units with worksurfaces over, inset sink, electric hob, spaces for appliances, four door Aga and space for table and chairs, walk in pantry, loo, study, useful utility with units and sink, plumbing and space for washing machine and stable door to courtyard. Separate outside room with floor mounted boiler.

To the first floor, there is a spacious landing leads to all rooms. Five/Six bedrooms all with lovely aspects, one currently used as an office, two bathrooms, shower room and separate loo. As well as a store room.

Outside - The property is approached via a drive with a circular turning area. To the south-facing front is an area of lawn with a range of mature shrubs and bushes, access to the orchard and paddocks and Linhay. To the side of the property is a barn which offers enormous potential to develop further, subject to the necessary consent. Mainly used for storage but does incorporate a covered parking area and store below. Beyond this is the kitchen garden with vegetable beds, stable block, outbuildings and tractor barn. Across the road is a paddock that extends 6.27 acres. In total the plot is 10.88 Acres.

Services - Mains electricity and private water. Private drainage septic tank. Oil fired boiler and AGA. Mobile coverage good outdoors, variable in home with O2 and Vodafone. Variable outdoors with EE and Three (Ofcom). This property benefits from ultrafast broadband (Ofcom).

Viewings - Strictly by appointment with the vendor's selling agents, Stags, Wellington Office.

Directions - From Wellington head towards Wiveliscombe. Proceed out of the town on North Street and bear left at Langley Cross. Take the first right hand lane to Whitefield and Raleighs Cross and follow up the hill for approx half a mile to a stone wall bear right and turn left into Whitefield Farmhouse at the sharp bend. What3words /// trumped.splat.blink

Stags

Stags

7 High Street
Wellington
Somerset
TA21 8QT

+44 (0)1823 662822

Reference: 34207390

Request a viewing for this property

Simply fill out the form below or alternatively call us on 020 7839 0888

* Mandatory fields