3 Bedroom Bungalow
£875,000
Churchstanton, Taunton

Floorplans For Churchstanton, Taunton Floorplans For Churchstanton, Taunton
EPC Graph for Churchstanton, Taunton

Description


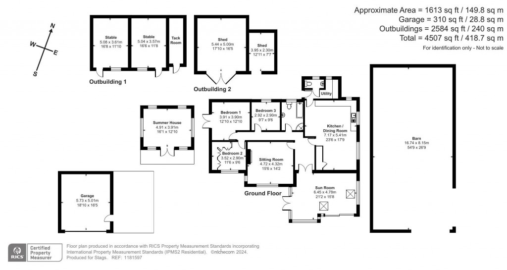
Planning permission to redevelop. A residential small holding occupying a wonderful south facing position on The Blackdown Hills. Paddocks & 10.6 Acres in total. Planning permission to redevelop. Garage & Car Port. Barn/Storage Sheds/Stables. Sitting Room & Sun Room. Kitchen/Dining Area. Council Tax Band E. EPC Band D. Freehold. Three Bedrooms & Bathroom.

Situation - Kesel occupies a delightful position set within The Blackdown Hills, enjoying splendid south facing views across the upper reaches of the Culm Valley. Whilst the setting is rural the property is by no means isolated and enjoys relatively easy access to the surrounding districts. Hemyock is situated 2.5 miles to the West and provides a useful range of day to day facilities. Junction 26 of the M5 motorway can be reached within 8 miles and the larger centres of Wellington and Taunton are within convenient reach and provided a number of excellent communication links, educational and sporting facilities. There are popular primary schools in the nearby village of Churchstanton and Hemyock and the property falls within the catchment area of the well regarded secondary school of Uffculme.

Description - Kesel comprises of a spacious detached south facing bungalow with commanding views over the valley and beyond. The property comprises a substantial kitchen dining room, sun room, sitting room, cloakroom and utility with W.C and wash hand basin. The property has three good sized bedrooms, the master bedroom having doors to the side and family bathroom. Outside is a detached garage and carport, stables, outbuildings and paddocks.
The current owner have also got various planning permissions in place (ref 10/24/0005 or 10/22/0017 Somerset council) to redevelop the existing dwelling to deliver a high quality, bespoke design property, providing up to 4-bedroom, 2 Reception rooms and 3 bathroom.

Accommodation - The front door opens into the entrance hall which is currently being used as us utility/boot room with access to cloakroom. Door gives access to the spacious kitchen/diner with a range of matching wall and base units, island, oven with extractor over, space for dishwasher, 1 1/2 bowl sink unit and door to inner hall. Sun Room a light room with windows to the south and east providing magnificent picture post card views of the green hill's opposite. To add, there are easterly views through the valley and over your land.

The main hallway provides access to the sitting room. A solid wood floor, wood burner and window also to the south. 3 bedrooms are further up the hall, two of which are good size double bedrooms with one have the benefit of fitted wardrobe. One of these rooms is the master bedroom, which has amazing double French doors leading out onto the garden. The last bedroom with views over the front garden and finally there is a family bathroom.

Outside - As you drive down the driveway the property is positioned in front of you passing the car port & garage along the way, with plenty of parking. There are extensive gardens, which are well maintained and comprise areas of lawn interspersed with flower shrub borders. There are also a range of farm buildings, stable block and a summer house next to the pond. All the buildings providing easy access to the highly productive pasture land, which leads down to a stream and faces south. The land is divided into conveniently sized enclosures and extends to 10.6 acres.

Viewings - Strictly by appointment with the vendor's selling agents, Stags, Wellington Office.

Services & Agents Note - Mains electricity and water. Oil heating Septic tank - cesspit and oil fired central heating. This property has the benefit of standard broadband(Ofcom). Mobile coverage limited inside with EE & 02 (Ofcom).
Some CGIs have been used to illustrate the external property images.

Directions - From junction 26 of the M5 proceed off the roundabout in a southerly direction towards Blackmoor and Ruggin and turn right immediately, sign posted Ford Street. After approximately 1 mile at the T junction turn left towards Ford Street and Hemyock. Continue through the hamlet of Ford Street climbing up onto the Blackdown Hills and at the crossroads at the top of the hill turn left. Continue along this road for approximately 2 miles and then turn right. Proceed along the road for two miles and turn left at the signpost to Churchstanton. Continue for approximately 400m and take the first right onto a concrete driveway immediately after the thatched cottage and Kesel can be found after a short distance on the right hand side.

Stags

Stags

7 High Street
Wellington
Somerset
TA21 8QT

+44 (0)1823 662822

Reference: 34206293

Request a viewing for this property

Simply fill out the form below or alternatively call us on 020 7839 0888

* Mandatory fields