2 Bedroom Apartment
£250,000
Market Place, Chipping Norton

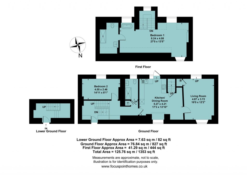
Floorplans For Market Place, Chipping Norton
EPC Graph for Market Place, Chipping Norton

Description


A deceptively spacious and modern apartment located in the town centre benefitting from two double bedrooms, an ensuite to the master bedroom and a large roof terrace

Situation - The bustling historic wool town of Chipping Norton is situated on the edge of the Cotswold Hills between the University City of Oxford, Spa town of Cheltenham & Shakespeare's Stratford upon Avon. It has an eclectic range of shopping, social and business facilities including an excellent local theatre, "boutique cinema", sports centre with indoor pool, lido and a recently constructed Community Hospital + Health Centre. A Station on the Paddington to Worcester rail line can be found at nearby Kingham in addition to a regular bus service from Chipping Norton to Oxford.

A floorplan has been prepared to show the dimensions and layout of the property as detailed below. Some of the main features are as follows:

* Enter via the front door where there are steps down to a small utility area, space for coats and shoes, an exposed sandstone feature wall, stairs lead up the accommodation.

* Hallway with doors to bedroom two, shower room and the kitchen/dining room.

* Bedroom two is a double with space for free standing furniture and window to the rear.

* Recently modernised shower room comprising a walk-in double shower cubicle, WC, vanity wash hand basin, heated towel rail, double glazed window overlooking the roof terrace.

* Kitchen/dining room fitted with a range of base and eye level units, integrated double oven, integrated dishwasher, four ring electric hob and extractor over, space for fridge freezer, inset sink, built-in shelving, exposed beam, exposed stone wall, window seat with window to front, door to the living room, doorway to the stairs to second floor.

* Very spacious living room with understairs storage, a window overlooking the roof terrace and a window overlooking The Market Place to the front.

* Large master bedroom with exposed beams, free standing bath, windows to front and rear, doorway to the ensuite (which was remodelled within the last 24 months) which comprises a large walk-in shower, WC and vanity wash hand basin, tiled floor.

* Outside there is a roof terrace which has artificial grass, a built-in storage cupboard which has space and plumbing for a washing machine and a water softener.

* It should be noted that the front of the building is Grade II Listed. More information is available upon request.

Services - All mains services are connected. The boiler is located in the storage cupboard in the living room.

Local Authority - West Oxfordshire District Council. Council tax band A.

Viewing - Strictly by prior arrangement with the Sole Agents Anker & Partners.

Energy Rating: D - A copy of the full Energy Performance Certificate is available on request.

Tenure - The property is leasehold. The 999 year lease commenced on 16/11/1999.

Anti Money Laundering Regulations - In accordance with current legal requirements, all prospective purchasers are required to undergo an Anti-Money Laundering (AML) check. An administration fee of £30 plus VAT per applicant will apply. This fee is payable after an offer has been accepted and must be settled before a memorandum of sale can be issued.

Anker & Partners

Anker & Partners

31-32 High Street
Banbury
Oxfordshire
OX16 5ER

+44 (0)1295 271414

Reference: 34205850

Request a viewing for this property

Simply fill out the form below or alternatively call us on 020 7839 0888

* Mandatory fields