3 Bedroom Detached
£710,000
Lower Park Road, Braunton

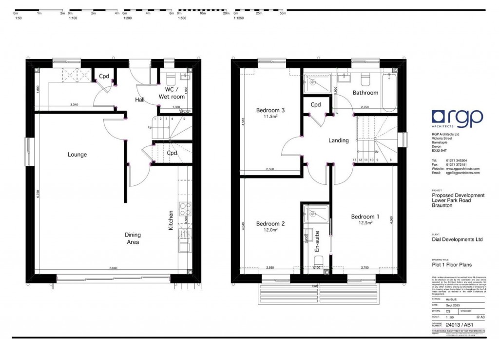
Floorplans For Lower Park Road, Braunton

Description


Construction well advanced- One of a small select development of just 3 three bedroom detached new homes in a sought after residential road, within easy access of village amenities, open countryside, Saunton Golf Club and Saunton beach etc. Council Tax Band & EPC TBC. Freehold. Reservations being taken.. Prices from £695,000 - £725,000

Situation & Amenities - On the semi-rural outskirts of the village, fronting a sought-after residential road, backing onto a large scenic, fenced-off pond (in separate ownership) and with views from the first floor over Braunton village towards the estuary and coast. At the same time, the property is within a healthy walking distance of Braunton village, which offers a good range of shopping facilities and amenities, providing for day-to-day needs, as well as a Tesco supermarket and both primary and secondary schools. The village is also ideally placed for easy access to the sandy surfing beaches at Croyde, Putsborough, Saunton (also a Championship Golf Course) and Woolacombe, which are approximately 5 miles to the West. Barnstaple the regional centre of North Devon is approximately 6 miles to the South East and houses the area's main business, commercial, leisure and shopping venues. The town is also well known for its exclusive range of outlets, including all of the high street favourites, as well as a diverse selection of local stores. Other notable facilities include the Pannier Market, live theatre and North Devon District Hospital on the periphery of the town. Fishing and boating can be enjoyed on the Rivers Taw and Torridge. Exmoor is within easy reach to the North East and there is access at Barnstaple to the North Devon Link Road, which leads through to Jct.27 of the M5, whilst Barnstaple Railway Station provides a link to the national railway system, as well as to Exeter. London Paddington can be reached via Tiverton Parkway in just over 2 hours. There are a number of well-regarded private schools in the area, including Kingsley at Bideford, West Buckland and Blundell's at Tiverton. The nearest international airports are at Bristol and Exeter.

Description - Introducing a brand-new development of just three exclusive detached eco homes, set in a desirable semi-rural location with south facing outlook. These stunning properties are thoughtfully designed to combine contemporary style with sustainable living. Each property offers a spacious, light-filled layout finished to an exceptional standard, creating a truly modern and luxurious home.

Built with energy efficiency and sustainability at their core, each home features striking elevations of stone and render beneath a traditional slate roof. Inside, the layouts are light filled and versatile, designed to suit both busy family life and relaxed entertaining.
The ground floor is centred around a spacious open-plan kitchen, dining, and lounge area - a truly versatile space for entertaining or relaxing with family. The sleek kitchen is fitted with high-specification appliances and finished with large-format tiled flooring and underfloor heating throughout. Expansive sliding doors open directly onto a raised sun deck, creating a seamless flow to the garden and providing the perfect setting for al fresco dining and enjoying the garden views. A practical utility room and a stylish wet room/WC complete the ground floor.

Upstairs, the first floor offers a bright landing and airing cupboard, a luxurious master bedroom with its own en-suite shower room, plus two further double bedrooms served by a beautifully appointed family bathroom.

.Semi-rural setting with excellent access to local amenities
.Built using ICF (Insulated Concrete Form) for excellent energy efficiency.
.Solar Panels and EV chargers.
.10-Year Build Zone warranty for peace of mind
.Spacious open plan kitchen/dining/living space with NEFF high-spec appliances
.Large-format tiled flooring with underfloor heating throughout the ground floor
.Elegant bathrooms finished to a high standard
.Large single garages with power and water (6m x 2.7m)
.Landscaped, turfed gardens
.Generous parking area with ample space for multiple vehicles or even a motor home
.Direct access to scenic countryside walks right from the doorstep - ideal for dog owners and outdoor lovers

Services - Mains electricity, gas and water. Individual private drainage systems. Individual waste treatment plant. Heating gas-fired with underfloor heating to the ground floor.

Viewings - Strictly by appointment only please through the agents Stags - (01271) 322833 or barnstaple@stags.co.uk.

Agent'S Note - Some images in this brochure are computer generated. The landscaping and other aspects may differ.

Directions - W3W//////remotest.qualify.agents

On leaving the traffic lights at the centre of the village of Braunton, proceed in the direction of Barnstaple and then turn immediately left into Heanton Street. At the end of Heanton Street bear left at the minor roundabout, and bear right onto Lower Park Road. Continue for approximately ? mile, where the entrance to the site will be found on the right, just before reaching open countryside. Alternatively, leaving Barnstaple through Pilton and Bradiford, climb the hill towards Prixford and bear first left signed 'Ashford & Heanton'. Follow this lane through open countryside to Braunton, and the development is on the left-hand side as you leave open countryside.

Special Note - Please be aware that some images have been generated using AI to show how a typical room may be furnished.

Stags

Stags

30 Boutport Street
Barnstaple
Devon
EX31 1RP

+44 (0)1271 322833

Reference: 34204322

Request a viewing for this property

Simply fill out the form below or alternatively call us on 020 7839 0888

* Mandatory fields