Description
A private ringfenced residential farm enjoying fine views across the Yarty Valley. Grade II listed Thatched Farmhouse for renovation. A range of modern and traditional farm buildings with grassland and woodland. EPC Band G. Council Tax Band E. Freehold.
Introduction - Accessed via a long private drive, Haverlands Farm is an attractive residential farm extending to approximately 57.2 acres (23.14 hectares) in all and provides an opportunity to acquire a Grade II
Listed thatched farmhouse for renovation with a range of modern and traditional farm buildings with potential for alternative uses (subject to the necessary planning consents).
The farmhouse and buildings are positioned in the centre of the holding and are surrounded by a ringfenced run of productive farmland. The property is offered for sale as a whole or in up to two lots.
Situation - Haverlands Farm is well positioned just 2.5 miles east of the Village of Yarcombe, in the Blackdown Hills Area of Outstanding Natural Beauty. The property is situated in a commanding position enjoying panoramic views across the Yarty Valley and is surrounded by open countryside.
The nearby village of Yarcombe offers a village pub and church. The town of Chard is located 4.2 miles to the east and benefits from a wider range of amenities including two supermarkets, pubs and eateries, a leisure centre and hospital. The A303 is within easy reach providing direct access to Exeter (25 miles) and the market town of Honiton.
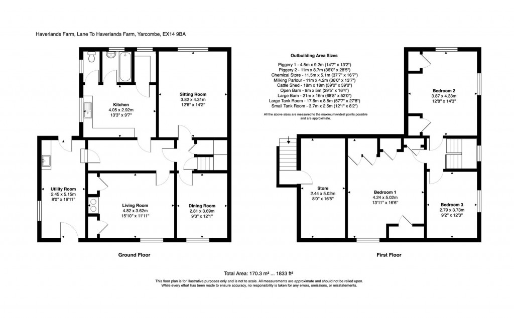
Lot 1: Farmhouse, Modern And Traditional Buildings - The Farmhouse
Haverlands Farmhouse is believed to date back to the 16th Century and is of stone construction under a thatched roof. The accommodation briefly comprises a front door through to a utility area, kitchen with fitted units, downstairs WC, dining room and two reception rooms with original stone floors.
A stairway leads to the first-floor landing with three double bedrooms with fitted wardrobes. Adjoining the farmhouse are two useful outbuildings.
An elevated, walled vegetable garden with greenhouse lies opposite the farmhouse.
Farm Buildings
Grain Store - Timber framed construction with concrete rendered elevations under a tin sheet roof. (17.6m x 8.5m)
Stone Barns - General purpose building of stone construction under a sheeted roof. Former milling equipment remains and is included in the sale. (9m x 5m)
Piggery - Two former piggery buildings of block construction under a sheeted roof. (4.5m x 9.2m / 11m x 8.7m)
Storage Building - General purpose storage building of
concrete construction under a sheeted roof.
Chemical Store - Block based tunnel design with sheeted cladding and roof. (11.5m x 5.1m)
Vehicle / Hay Store - Timber framed with metal cladding and roof. (21m x 16m)
Livestock building - Cattle shed of timber framed construction with central walkway. Flat sheeted roof with sliding metal doors. Cattle handling yard area to the front.
(18m x 18m)
Former Milking Parlour - Concrete elevations under a sheeted roof. Some redundant dairying equipment remains and is included in the sale. (11m x 4.2m)
The Land
The land within lot 1 extends to approximately 26.62 acres (10.77 hectares) of mostly permanent pasture. There is an area of woodland extending to 1.72 acres offering sporting and amenity potential. The land is generally gently sloping with some steeper areas and is divided across seven different enclosures mainly enclosed by mature hedgerows and post and wire fencing. There are a number of gateways providing access internally.
Lot 2: Land Off Chard Road Extending To 28.46 Acre - The land extends to about 28.46 acres (11.60 ha) of productive, gently sloping land suitable for mowing and grazing and cropping.
The land is presented across five good sized enclosures, well suited for modern farming practices. An independent access is available from Chard Road via a farm track.
The land is classified as being principally grade 3. According to Soilscape (England) the soils may be described as slight acid loamy and clayey soils and freely draining slightly acid loamy soils, mainly suited to grass production and autumn sown crops.
Services - Lot 1:
Central Heating - Oil fired and night storage.
Electricity - Mains.
Water: private supply via well to the farmhouse and gravity fed system to the land and farm
buildings.
Private drainage system, type, health and compliance with General Binding Riles is unknown.
Buyers to make own inspection.
Telephone/ Broadband coverage is standard (Ofcom).
Mobile coverage/Signal - Mobile coverage available with EE, Three, Vodafone and O2. (Ofcom)
Lot 2:
Private water supply provided by a neighbouring property. Further details available from the selling agent.
Tenure - Freehold with vacant possession available on completion on the Farmhouse, farm buildings and field parcel numbers 4490, 5189 & 6396.
The remaining land and livestock building is subject to a Farm Business Tenancy expiring 31st October 2026. Part of the farm yard is currently unregistered as are field numbers 9594, 7794 & 8009. Further details are available from the selling agent.
Access - Lot 1: Direct access from the public highway.
Lot 2: Direct access from the public highway.
Rights Of Way - There are no public rights of way crossing the property.
Local Authority - East Devon District Council
Land Management Schemes - The land is subject to a Mid-Tier Countryside Stewardship Scheme, expiring 31st December 2027. The incoming purchaser(s) will be obligated to take on the Countryside Stewardship Agreement
Designations - The property is located with the Blackdown Hills Area of Outstanding Natural Beauty.
Sporting And Mineral Rights - The sporting and mineral rights insofar as they are owned are included with the freehold.
Fixtures And Fittings - All fixtures and fittings, unless specifically referred to within these particulars, are expressly excluded from the sale of the freehold.
Wayleaves And Right Of Ways - The property is sold subject to and with the benefit of any wayleave agreements in respect of any electricity or telephone poles, wires, stays, cables etc., or water or drainage pipes etc., either passing upon, over or under it.
The property is also sold subject to and with the benefit of any public or private rights of way or bridleways etc. No public rights of way cross the property.
Restrictive Covenant - Part of the land is subject to restrictive covenants contained in a Transfer dated 7 July 1999. These covenants include restrictions on land use for agricultural and woodland purposes only, restrictions on buildings and obligations not to cause nuisance or annoyance. Further details are available from the selling agent.
Plans And Boundary Fences - A plan, which is not to scale and is not to be relied upon, is attached to these particulars. Purchasers must satisfy themselves by inspection or otherwise as to its accuracy.
Directions - From Honiton, head northeast on the A30 for approximately 4.8 miles, then turn right onto the A303. Follow the road through Yarcombe for approximately 3.1 miles. At the end of the road, turn right onto Chard Road and the property is located on the right-handside over the cattle grid after approximately 0.2 miles.
What3word:
Lot 1 - ///firewall.brief.waving (farmyard)
Lot 2 - ///claw.saddens.kick (access track)
Warning - Farms can be dangerous places. Please take care when viewing the property, particularly in the vicinity of the farm buildings.
Disclaimer - IMPORTANT: Stags gives notice that: 1. These particulars are a general guide to the description of the property and are not to be relied upon for any purpose. 2. These particulars do not constitute part of an offer or contract. 3. We have not carried out a structural survey and the services, appliances and fittings have not been tested or assessed. Purchasers must satisfy themselves. 4. All photographs, measurements, floorplans and distances referred to are given as a guide only. 5. It should not be assumed that the property has all necessary planning, building regulation or other consents. 6. Whilst we have tried to describe the property as accurately as possible, if there is anything you have particular concerns over or sensitivities to, or would like further information about, please ask prior to arranging a viewing.