Commercial Property
£300,000
Cowley, Exeter

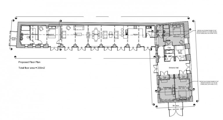
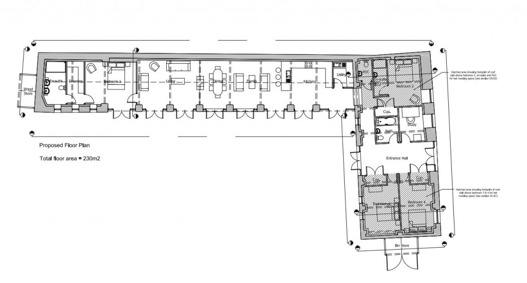
Floorplans For Cowley, Exeter Floorplans For Cowley, Exeter

Description


A courtyard of barns with planning consent to develop a spacious family home with a detached outbuilding, set in approx. 0.5 acres, just outside Exeter.

Situation - Cowley is to the north of Exeter on the edge of the beautiful mid Devon countryside, perfectly positioned to take advantage of the rural surroundings, whilst being just three miles from the city centre. Exeter, the regional capital of the South West, boasts great business facilities together with restaurants, cafés and wine bars. The city is well-served with a good range of leisure and cultural amenities, including substantial shopping facilities.

Communication links are good, with the M5 accessible at Exeter providing links to the A38 to Plymouth, or the A30 to Cornwall to the south, and Bristol and London to the north and east. There are regular rail services to central London from Exeter in just over 2 hours. Exeter International Airport provides a number of domestic and international flights.

Description - A rare opportunity to acquire a courtyard of barns with full planning consent for conversion into a spacious single-storey family home, set in approx. 0.5 acres near Cowley, just outside Exeter.

On offer is nearly 2,500 sqft of developable living space, to include open-plan reception areas and four bedrooms, with views over the central courtyard. A detached 1,650 sqft outbuilding offers scope to further extend the residential accommodation (subject to gaining consent).

In addition to the impressive central courtyard, the plot includes a large private garden with far-reaching views and ample parking. Ideal for developers or self-builders seeking a secluded yet accessible location close to Exeter.

Planning Consent - The property comprises former Granary and Linhay barns arranged around a courtyard together with a former Shippon barn. Consent has been granted for conversion of the Granary and Linhay barns to provide a single residential dwelling of approx 2500 sqft. The Shippon barn of approx. 1650 sqft is ideal for storage space and may be suitable to further extend the residential accommodation subject to obtaining the relevant approvals. The planning approval for conversion of these buildings was obtained as part of a wider consent which included demolition of various other former barns. This work having been carried out it is considered that the consent has been partially implemented and is therefore now extant.

Barn conversion: 230sqm
Existing outbuilding: 156sqm

Cil Payment & Habitats Contribution - Pre commencement conditions associated with landscaping and construction traffic management have been discharged by the vendor along with the CIL and Habitats Contribution payments.

Conditions - A full list of conditions can be found on the East Devon District Council planning site.
A covenant will be in place to keep the Granary, Shippon and Linhay buildings together as a single residential unit.

Rights Of Way - There is a pedestrian right of way over on the eastern edge of the boundary for a neighbouring property. Please ask the Agent for further information.

Services - Purchasers must satisfy themselves as to the ability to make adequate connections for mains services that may be required. However we understand that the site has the benefit of mains electricity and drainage connections with other mains services located nearby on the main road. The vendor will retain a right to make service connections across the site.

Directions - What3words - profile.panoramic.such

Stags

Stags

21 Southernhay West
Exeter
Devon
EX1 1PR

+44 (0)1392 255202

Reference: 34198389

Request a viewing for this property

Simply fill out the form below or alternatively call us on 020 7839 0888

* Mandatory fields