5 Bedroom Detached
£460,000
Prices Avenue, Wellington

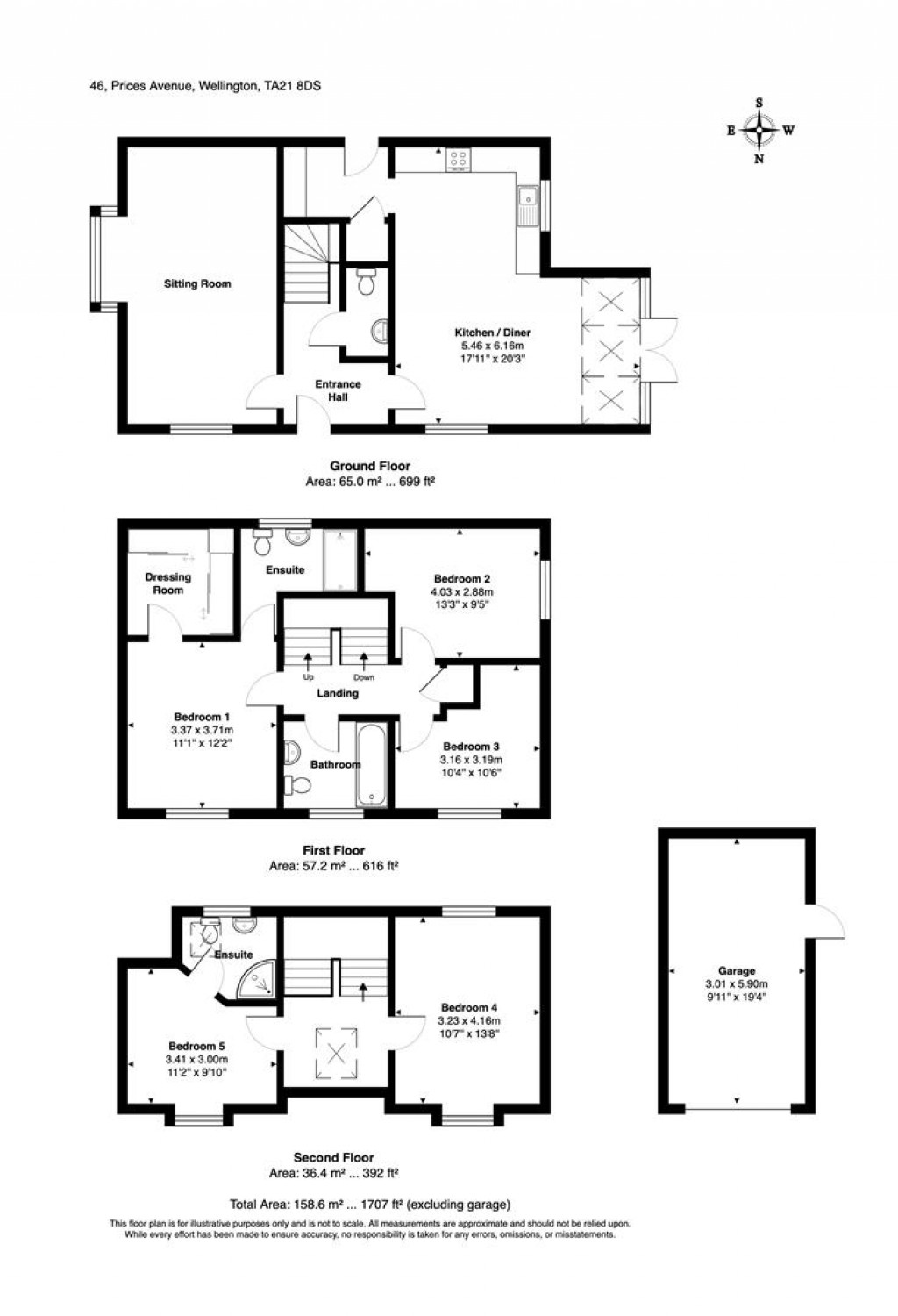
Floorplans For Prices Avenue, Wellington
EPC Graph for Prices Avenue, Wellington

Description


An attractive five bedroom detached property arranged over three storeys on the Longforth Farm Development on the outskirts of Wellington. Bathroom & two en suites, sitting room, kitchen/dining room, established garden, garage, Freehold, Council Tax E, EPC B.

Situation - The property is set within a popular development, conveniently positioned approximately half a mile from Wellington town centre, which offers an excellent selection of shopping, leisure and educational facilities. The M5 motorway is easily accessible, located just 2.3 miles away, while the County Town of Taunton lies within 6.3 miles, providing a wider range of amenities together with a mainline rail service to London Paddington.

Description - An attractive five bedroom detached property arranged over three storeys on the Longforth Farm Development on the outskirts of Wellington. Comprising of kitchen/diner, living room, utility, cloakroom, main bedroom with dressing room and en-suite, further two bedrooms and family bathroom. Outside are established gardens and garage.

Accomodation - Entrance hallway with stairs rising to all levels, leads through to the main reception areas. The sitting room enjoys a delightful dual aspect, enhanced by a feature bay window to the front. The kitchen/diner is fitted with a comprehensive range of contemporary units complemented by contrasting worktops and integrated appliances, including an eye-level double oven, ceramic hob with extractor, and provision for a fridge freezer and dishwasher. The generous dining area is perfect for entertaining, while a snug-style seating area beneath a glazed roof floods the space with natural light. A utility room provides additional appliance space, practical storage, and rear access to the driveway, which in turn leads to the garage. A convenient cloakroom completes the ground floor.

The first floor comprises three bedrooms, with the master suite featuring a dressing room and private ensuite. The remaining two bedrooms are served by the family bathroom. From the landing, stairs lead up to the second floor, which offers two spacious double bedrooms, including one with its own ensuite. A Velux window brightens the landing, creating a welcoming space that could be used as a study area.

Outside - Outside, the property occupies a desirable corner plot, with the front garden attractively planted with mature shrubs. To the rear, a private driveway provides parking for two vehicles and leads to a single garage. The rear garden is mainly laid to lawn, complemented by a patio area, a pergola, and well-established shrub borders.

Services - Mains services. Good outdoor mobile coverage with EE, O2, Three and Vodafone (Ofcom). This property has the benefit of ultrafast broadband (Ofcom). There is a annual service charge-£220.

Viewings - Strictly by appointment with the vendor's selling agents, Stags, Wellington Office.

Directions - From the Wellington office, head along High Street towards the B3187. At the roundabout, take the first exit onto Lillebonne Way. Turn right onto Prices Avenue, then take the next right followed by the first left. The property will be located on your left-hand side.

Stags

Stags

7 High Street
Wellington
Somerset
TA21 8QT

+44 (0)1823 662822

Reference: 34195924

Request a viewing for this property

Simply fill out the form below or alternatively call us on 020 7839 0888

* Mandatory fields