3 Bedroom Semi-Detached
£275,000
Cottey Brook, Tiverton

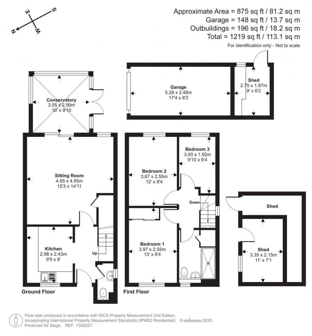
Floorplans For Cottey Brook, Tiverton
EPC Graph for Cottey Brook, Tiverton

Description


A well-presented three-bedroom semi-detached home with garden and garage, set in a tucked-away position offered to the market with no onward chain. Large Sitting Room. No Onward Chain. Conservatory. Good Sized Garden. Garage and Off-Street Parking. Conveniently Located. Sought After Area. Council Tax Band C. EPC Band D. Freehold.

Description - 27 Cottey Brook is a well-presented three-bedroom, semi-detached home, set in a popular residential area on the edge of Tiverton. The accommodation is well laid out, featuring a kitchen to the front and a spacious sitting room with sliding doors through to a bright conservatory. A ground floor cloakroom lies to the front of the property. Upstairs are three bedrooms, including two doubles, together with a family bathroom. Outside, the property enjoys a good-sized garden with a brook running along the lower boundary, while a detached garage provides useful storage and workshop space. The town centre, schools, shops and leisure facilities are all close by, with the A361 providing excellent access to the M5 and beyond.

Services - Mains electricity, water and drainage. Gas Central Heating
Ofcom predicted broadband services - Standard, Superfast & Ultrafast available.
Ofcom predicted mobile coverage for voice and data: Internal (variable) - EE and Three. External - EE, Three, O2 and Vodafone.
Local Authority: Mid Devon District Council.

Directions - From Junction 27 of the M5, proceeding west-bound along take the A361 towards Barnstaple and Tiverton. Upon reaching Bolham Roundabout, take the first exit signposted Tiverton (A3126) and proceed straight over the following roundabout. At the Mid-Devon Leisure centre roundabout, take the third exit and continue straight over the Morrisons/ Hospital roundabout. Bear left at the next mini-roundabout and after approximately 175 yards turn right on to Melbourne Street. Upon reaching Wellbrook Street, turn right and just after the Fire Station turn left into Cottey Brook. Continue for 175 yards, bear left off the main street. Following this round, where the property can be found at the end on the left-hand side.

Stags

Stags

19 Bampton Street
Tiverton
Devon
EX16 6AA

+44 (0)1884 235705

Reference: 34195559

Request a viewing for this property

Simply fill out the form below or alternatively call us on 020 7839 0888

* Mandatory fields