3 Bedroom Terraced
£285,000
Queens Road, Banbury

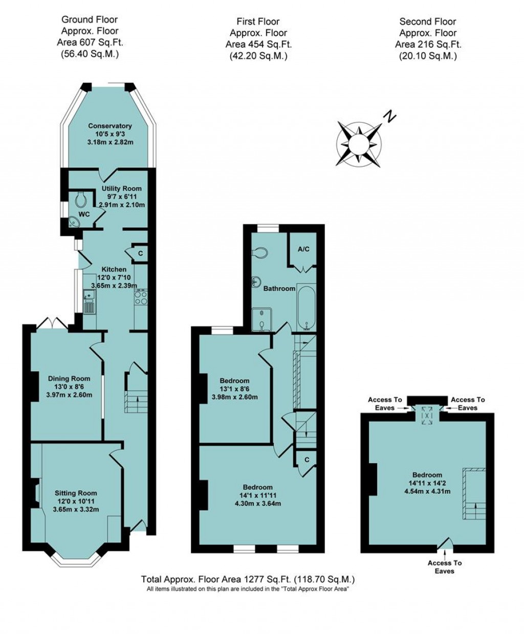
Floorplans For Queens Road, Banbury
EPC Graph for Queens Road, Banbury

Description


A charming three storey Victorian terraced townhouse in a desirable road close to People's Park only a short walk from the town centre

Situation - BANBURY is conveniently located only two miles from Junction 11 of the M40, putting Oxford (23 miles), Birmingham (43 miles), London (78 miles) and of course the rest of the motorway network within easy reach. There are regular trains from Banbury to London Marylebone (55 mins) and Birmingham Snow Hill (55 mins). Birmingham International airport is 42 miles away for UK, European and New York flights. Some very attractive countryside surrounds and many places of historical interest are within easy reach.

A floorplan has been prepared to show the dimensions and layout of the property as detailed below. Some of the main features are as follows:

* A brick built three storey Victorian townhouse with a number of original features.

* There is a larger than average rear garden which has been landscaped by the vendors which was inspired by the gardens at Hidcote Manor.

* Hall with useful recess currently used as a study area, understairs cupboard.

* There are two ground floor reception rooms including a sitting room with exposed wood floor, bay window, cast iron Victorian fireplace and built-in cupboard and the dining room which has exposed wood floor, disused fireplace with exposed brick lintel, French doors opening to the rear garden and there is a conservatory with uPVC double glazed windows and sliding patio doors opening to the rear garden, radiator, light and power connected.

* The kitchen has a range of white units and is well lit with window and door to the side. There is a built-in oven, gas hob and hood over, plumbing for dishwasher and washing machine, space for fridge/freezer, built-in cupboard, ceramic tiled floor, door and window to side, access to a rear lobby/utility with plumbing for washing machine and space for tumble dryer, freezer etc, ceramic tiled floor and door to the ground floor cloakroom which has white suite, window, radiator. Glazed door to conservatory.

* Conservatory with windows and patio doors opening to the rear garden, wall light point.

* Three good bedrooms over two floors including a large double bedroom on the first floor with two windows to the front and door to built-in cupboard. A second large single/small double with exposed floorboards and window to the rear. On the second floor there is a large double attic bedroom with exposed wood floorboards, window and door to undereaves storage.

* The first floor bathroom is larger than average and fitted with a four piece white suite comprising panelled bath with mixer taps and shower attachment, separate shower cubicle, wash hand basin and WC, built-in airing cupboard with wall mounted gas fired combination boiler, window.

* The well stocked landscaped garden is generous in size and has been designed with different areas including a patio, steps down to a sunken garden with small pond and raised beds. Beyond that a path leads to an area of flower beds and borders beyond which is a timber shed and raised planters, Apple Tree. Pedestrian rear access.

Services - All mains services are connected. The wall mounted gas fired combination boiler is located in the bathroom.

Local Authority - Cherwell District Council. Council tax band C.

Viewing - Strictly by prior arrangement with the Sole Agents Anker & Partners.

Energy Rating: D - A copy of the full Energy Performance Certificate is available on request.

Anker & Partners

Anker & Partners

31-32 High Street
Banbury
Oxfordshire
OX16 5ER

+44 (0)1295 271414

Reference: 34194433

Request a viewing for this property

Simply fill out the form below or alternatively call us on 020 7839 0888

* Mandatory fields