5 Bedroom Detached
£1,100,000
Staplegrove, Taunton

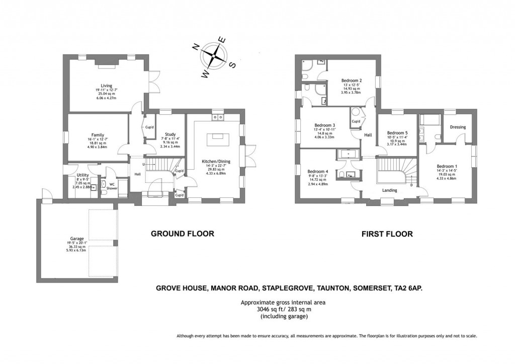
Floorplans For Staplegrove, Taunton

Description


An exceptional, detached, newly built property with Georgian influences - situated in an enviable position next to the church in Staplegrove village the property will be finished by mid October. Council Tax band TBC, EPC rating TBC, Freehold

Description - An exceptional detached property - Georgian and Victorian influences throughout, newly built with the emphasis on high end finishes and impressive attention to detail - situated in an enviable position next to the church in Staplegrove village.

The house offers spacious accommodation arranged over two floors and boasts air source heat pump and underfloor heating to both floors.

The ground floor features an entrance hall, open plan kitchen/dining room with doors opening out onto the garden. There are three further reception rooms - a family room, study, and large double aspect lounge, a shower room with wc and a utility room.

On the first floor are five bedrooms in total; the master bedroom with en-suite and dressing room, a further two bedrooms with en-suite shower rooms and a family bathroom.

Externally there is a driveway and parking leading to a newly built attached double garage. The gardens extend to the side and rear of the house.

Agent's Note - Please note that the photographs shown contain some computer generated images due to the unfinished nature of the project.

Stags

Stags

5 Hammet Street
Taunton
Somerset
TA1 1RZ

+44 (0)1823 256625

Reference: 34186634

Request a viewing for this property

Simply fill out the form below or alternatively call us on 020 7839 0888

* Mandatory fields