3 Bedroom Semi-Detached
£325,000
Buttercup Way, Bridport

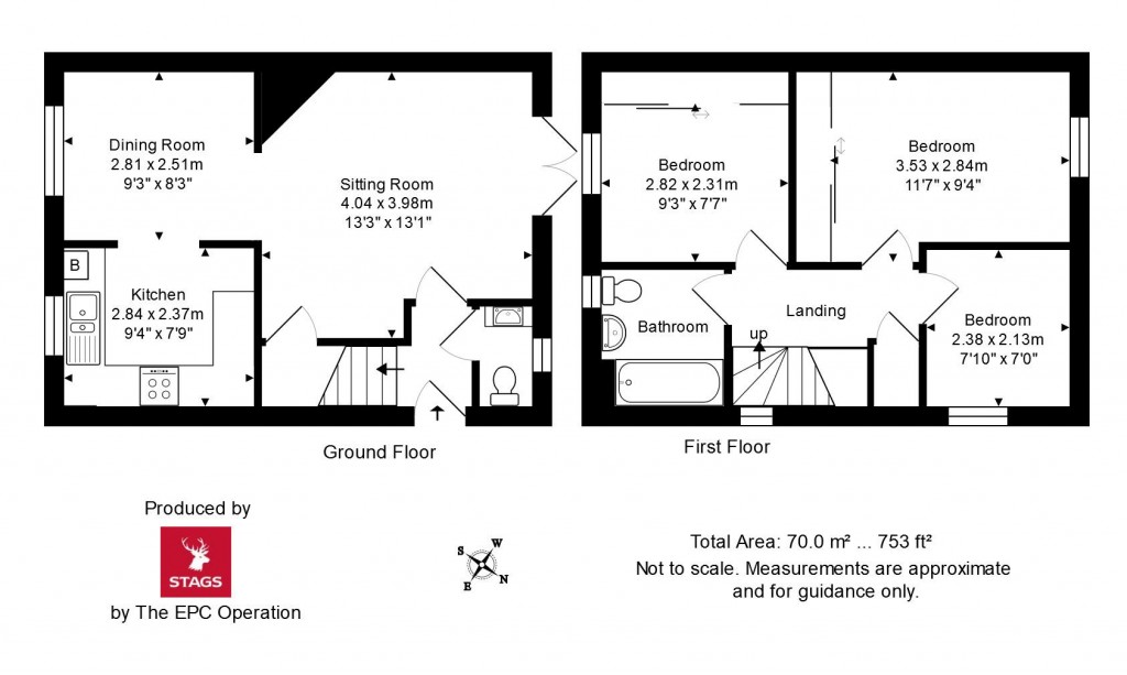
Floorplans For Buttercup Way, Bridport
EPC Graph for Buttercup Way, Bridport

Description


A beautifully presented 3 bedroom end-of-terrace home located on a popular development close to Bridport and West Bay. EPC: D

The Property - 39 Buttercup Way is a beautifully presented end of terrace family home which is located in an enviable, peaceful position within the popular Meadowlands development and therefore within very easy reach of both Bridport and West Bay. Under the current ownership since it was built in 2001, the property has been carefully maintained to a high standard with improvements to the fixtures and fittings carried out periodically. The result is a comfortable, contemporary home with much to offer a broad range of purchasers. Owing to its position within the development, the property enjoys distant views of the countryside to the west, and benefits from proximity to a footpath to Burton Road, providing an easier, shorter walking route to the town centre.

The front door opens into a welcoming entrance hall from which the recently redecorated cloakroom and the open-plan living accommodation can both be accessed. Arranged into a sitting area with a multi fuel stove, dining area and fitted kitchen with integrated oven and hob, the living room is a lovely setting for entertaining and everyday enjoyment alike with double doors opening directly to the garden. On the first floor there are three bedrooms, one of which is a generous double with built-in wardrobes. There is also a family bathroom which is fitted with an attractive, contemporary suite and is partly tiled.

Outside - The garden is a further asset to the property, with double doors opening from the living room. Landscaped to provide areas of lawn and sun deck with integrated LEDs, the garden is a wonderful place to spend time out of doors and, being enclosed by a fence with a gate to the rear parking area, is secure for children and dogs.

Beyond the rear pedestrian gate are two allocated parking spaces.

Situation - The property is located in a peaceful residential position within the Meadowlands development, which rates highly amongst Bridport's most desirable locations. Positioned between Bridport town centre and the popular resort of West Bay, a broad range of amenities are in close proximity including a convenience shop and a play park just a short walk from the property, as well as several shops, cafes and restaurants in West Bay, which forms part of the Jurassic Coast World Heritage Site. The former Victorian railway line, now an attractive foot/cycle path, offers a traffic-free route to West Bay facilitating lovely walking opportunities, particularly along the South West Coast Path. In Bridport, extensive street markets are held twice weekly and the town has an excellent range of shopping facilities including national and independent retailers, primary and secondary schools, recreational and social amenities and a popular leisure centre with a swimming pool. The County Town of Dorchester and Lyme Regis are both within easy reach by car and public transport, with a bus stop just outside the development.

Services - Mains water, drainage, electricity and gas. Gas fired central heating.

Viewings - Strictly by appointment with Stags Bridport office, telephone 01308 428000.

Directions - From Bridport town centre proceed along South Street and at the Crown Roundabout take the third exit towards West Bay. Continue along West Bay Road and turn left into Meadowlands. Follow the road around onto the left, onto Buttercup Way, bear left by the green then right to continue on Buttercup Way. The property can be found on the left by the junction with Bramble Drive.

Stags

Stags

29 South Street
Bridport
Dorset
DT6 4NR

+44 (0)1308 428000

Reference: 34186361

Request a viewing for this property

Simply fill out the form below or alternatively call us on 020 7839 0888

* Mandatory fields