6 Bedroom Detached
£175,000
Pitney, Langport

Floorplans For Pitney, Langport Floorplans For Pitney, Langport Floorplans For Pitney, Langport Floorplans For Pitney, Langport

Description


Planning permission granted for a detached, chalet style, house situated on a wonderful plot backing onto open fields in the popular village of Pitney. For sale by Informal Tender by 12 noon on the 30th October 2025 with a guide price of £175,000. Freehold

Situation - The property is located approximately four kilometres east of Langport and approximately eight kilometres of west of Somerton where commercial facilities are available. Pitney itself has a village hall, church and public house and bus services to the surrounding towns as well as Taunton and Yeovil.

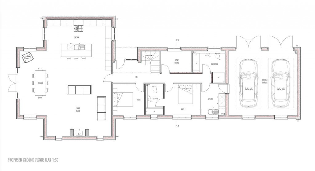
Description - This impressive building plot has permission granted for the erection of a detached two storey property. The proposed new development offers a truly unique opportunity to construct an exceptional and individual one and a half storey dwelling with substantial and flexible living accommodation, double garage, parking situated on an extraordinary plot on the outskirts of the village of Pitney.

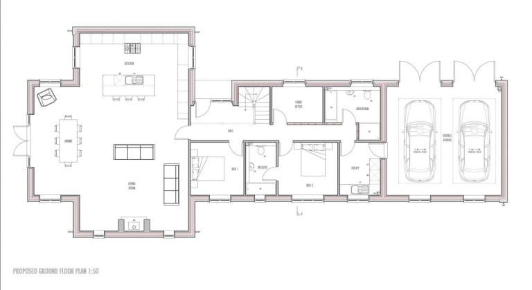
Accommodation - The proposed accommodation includes an entrance hallway with turning staircase to the first floor. A superb open plan living/kitchen/dining room with double doors opening out onto the garden. There is a home office, a separate utility room, two bedrooms, one with en-suite and a fitted bathroom suite.

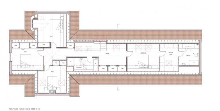
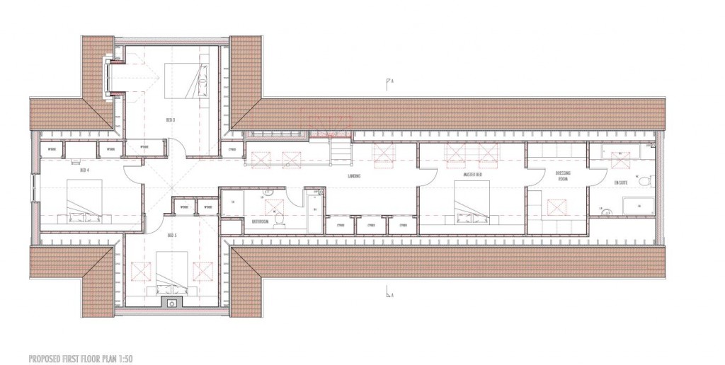
On the first floor is a master suite with dressing room and bathroom, three further bedrooms and a bathroom.

Outside - The property stands in a generous plot with a gated entrance providing access to the property. There is a small watercourse and hedgerow bordering the site.

Services - Mains water connected. Electricity and drainage not yet connected.

Informal Tender - For sale by Informal Tender by 12 noon on the 30th October 2025 with a guide price of £175,000

Agent's Note - There is a right of way to allow access to the field beyond along the existing track along the edge of the property from the entrance. A public footpath also runs along the southern boundary of the property along the same track.

The client's architects have informed us that the present foundations are only partially commensurate with the consented scheme; the parties decided during the process that they would look to construct a smaller house due to financial constraints. As a result, the foundations were reduced by circa 4.35m in length reducing the overall GIA of the house to 2,169 sq ft excluding the garage. Whilst the foundations have been signed off for Building Regulation purposes this reduction in size lacks planning approval. We understand that some alterations to the foundations would be required to make them suitable for the approved scheme.

Disclaimer - Any measurements referred to within the accompanying planning/drawings should be independently verified by the buyer.

Stags

Stags

5 Hammet Street
Taunton
Somerset
TA1 1RZ

+44 (0)1823 256625

Reference: 34182071

Request a viewing for this property

Simply fill out the form below or alternatively call us on 020 7839 0888

* Mandatory fields