3 Bedroom Apartment
£275,000
Kingsley Park Terrace, Northampton, NN2

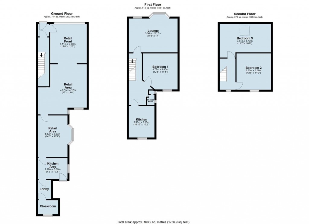
Floorplans For Kingsley Park Terrace, Northampton, NN2

Description


A unique opportunity to purchase a mixed use property (retail & residential) on the Kingsley Park Terrace front.

Details - The subject property comprises of retail ground floor area of around 520sq ft with independent access to the apartment above, the large glazed frontage serves two open plan retail areas which have formerly operated as a beauty salon and flooring contractors that have now fallen vacant. There is a further retail room to the rear, kitchen area and cloakroom.
The property is also being sold with a duplex apartment briefly comprising of, hall, lounge, kitchen, 3 bedrooms and shower room that is currently tenanted with a passing rent of £925pcm. Outside, there is a courtyard style rear garden with a garage and a paved frontage enclosed by picket fencing.

Rateable value: we understand this to be £7,500.

Viewing Arrangements - Strictly by prior appointment via the agents Howkins & Harrison. Tel: 01604-823456

Local Authority - West Northamptonshire Council - Tel: 0300-1267000

Council Tax - Council Tax Band - C

Fixtures And Fittings - Only those items in the nature of fixtures and fittings mentioned in these particulars are included in the sale. Other items are specifically excluded. None of the appliances have been tested by the agents and they are not certified or warranted in any way.

Services - None of the available services have been tested and purchasers should note that it is their specific responsibility to make their own enquiries of the appropriate authorities as to the location, adequacy and availability of mains water, electricity, gas and drainage services.

Floorplan - Howkins & Harrison provide these plans for reference only - they are not to scale.

Important Notice - Every care has been taken with the preparation of these Sales Particulars, but complete accuracy cannot be guaranteed. In all cases, buyers should verify matters for themselves. Where property alterations have been undertaken buyers should check that relevant permissions have been obtained. If there is any point, which is of particular importance let us know and we will verify it for you. These Particulars do not constitute a contract or part of a contract. All measurements are approximate. The Fixtures, Fittings, Services & Appliances have not been tested and therefore no guarantee can be given that they are in working order. Photographs are provided for general information and it cannot be inferred that any item shown is included in the sale. Plans are provided for general guidance and are not to scale.

Howkins & Harrison

Howkins & Harrison

14 Bridge Street
Northampton
Northamptonshire
NN1 1NW

+44 (0)1604 823456

Reference: 34180325

Request a viewing for this property

Simply fill out the form below or alternatively call us on 020 7839 0888

* Mandatory fields