4 Bedroom Land
£250,000
Shave Lane, Horton, Ilminster

Floorplans For Shave Lane, Horton, Ilminster

Description


A rare opportunity to acquire a residential development plot with detailed planning permission for a substantial detached dwelling situated in a superb semi-rural location. GUIDE PRICE £250,000-£300,000. Freehold

Situation - Horton, together with the village of Broadway, form a very attractive community with facilities which include the Post Office/stores, primary school, doctor's surgery, village halls, churches, two popular village inns/restaurants. The larger busy market town of Ilminster lies less than 3 miles to the east and provides a wide range of facilities with a variety of shops including supermarkets, a medical centre, various churches and schools to secondary level. To the South West lies the Blackdown Hills, designated an Area of Outstanding Natural Beauty, providing excellent opportunities for those with country interests. The A303 offers great connectivity and is only 1 mile away. Horton is well placed for the larger County Town of Taunton which is 10 miles, Chard is 5 miles, Crewkerne is 9 miles and Yeovil is 15 miles.

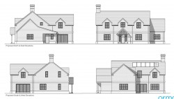
Description - The Walnut House site provides a wonderful opportunity to build an attractive, detached house, with substantial proportions, situated in a superb position, approached via a private driveway and surrounded on two sides by open fields.

Approved Accommodation - The approved accommodation includes an oak framed porch leading to an entrance hallway with turning staircase to the first floor, downstairs wc, door to study, and door through to an open plan living/kitchen/dining room. There is a separate utility and snug. On the first floor there are four double bedrooms, two with en-suite bathrooms, and a further family bathroom.

To the south of the main dwelling will be a detached double garage with exterior staircase leading to the first floor which provides an opportunity for further, flexible, accommodation with permission granted for a room above with shower room and wc.

Outside - The plot extends to approximately half an acre in all and, in addition to the substantial dwelling and garage, provides ample garden space for recreation and entertainment.

Services - Mains water, 3-phase electric cable, and mains drainage

Planning Permission - Planning reference 25/00265/FUL

Agent's Note - The phosphate credit scheme will be paid by the vendor.

Informal Tender - For sale by informal tender. Tenders closing on 28/10/2025 at 12 noon.

GUIDE PRICE £250,000-£300,000

Directions - From the centre of Horton take Pottery Road and after a short distance turn left into Shave Lane. Continue almost to the bottom of Shave Lane and the entrance to the site can be found on the left after Gees Cottage.

Stags

Stags

5 Hammet Street
Taunton
Somerset
TA1 1RZ

+44 (0)1823 256625

Reference: 34174128

Request a viewing for this property

Simply fill out the form below or alternatively call us on 020 7839 0888

* Mandatory fields