5 Bedroom Semi-Detached
£260,000
Shanklin, Isle of WIght

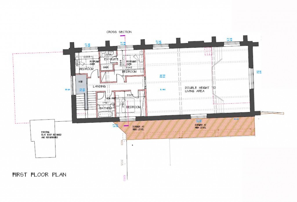
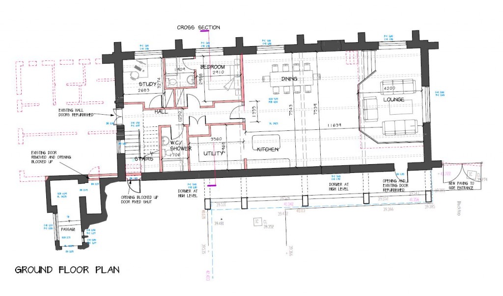
Floorplans For Shanklin, Isle of WIght Floorplans For Shanklin, Isle of WIght

Description


A unique opportunity to acquire a historic building with planning permission for conversion to a substantial domestic residence on the coast

This beautiful building occupies a prime position in Shanklin with a short walk to the old village and seafront as well as coastal paths and picturesque parkland. St Saviours Church is a superb and authentic church serving the local community and has obtained planning permission for conversion of the church hall into a residential dwelling. The proposed plans see the current hall with impressive, vaulted ceiling and adjacent amenity space converted into a 2 storey, 5 bedroom home of over 2,000 sq. ft of gross internal area. Retaining the original character and special features both internally and externally, including vaulted ceilings, stone window mullions and striking original stone elevations complimenting the church and neighbouring Old Vicarage. The dwelling will have the benefit of off-road parking to the rear and an enclosed garden space on the western elevation.

Location
Church Hall, St Saviours is situated on the edge of picturesque Shanklin Old Village and moments from the cliff steps leading down to Shanklin's beach and the amenities of Shanklin, including a range of shops, restaurants and theatre are a short walk away. A train service to Ryde provides access to passenger ferry services to Portsmouth, connecting with trains to London, the entire journey time taking two and a half hours. There are also plenty of beaches, bays and coves nearby and there are stunning walks upon the Luccombe and Wroxall Downs or along the coastal paths. The area has an excellent micro-climate and nearby Ventnor has botanical gardens, further award-winning restaurants and a fish market in its sandy bay.
Beach access is found via the cliff path a short walk from the property.

Planning (Listed Buildings and Conservation Areas) Permission
LPA Ref No: 24/00008/LBC
Listed Building Consent for conversion of church hall to form a single dwelling, demolition of north extension

The successful new owner of this conversion project will work alongside the diocese of Portsmouth and the Parochial Church Council (PCC) of St Saviours, to coordinate the development of the church hall, any structural materials and a joint appointment of a roofing contractor. Works will be agreed in advance with a schedule and timeframe for completion.

Tenure
The church hall dwelling is leasehold and offered with the benefit of a long 999 lease from the freeholder - The Diocese of Portsmouth. There is no ground rent payable and a modest approx. £100 service charge to be established for contributing towards insurance and ongoing maintenance of the communal access shared with the church and the privately owned Old Vicarage beyond.

Payments
A community contribution payment to the local council as set out in the section 106 planning approval. This payment is calculated at approx. £21,000 subject to final valuation of the property and payable by the developer upon occupation of the conversion.

Services
Mains electricity, water and drainage. Utilities are already connected, there is no mains gas to the property.

EPC Rating
G

Postcode
PO37 6AN

Viewings
All viewings will be strictly by prior arrangement with the sole selling agents Spence Willard.

Important Notice
1. Particulars: These particulars are not an offer or contract, nor part of one. You should not rely on statements by Spence Willard in the particulars or by word of mouth or in writing ("information") as being factually accurate about the property, its condition or its value. Neither Spence Willard nor any joint agent has any authority to make any representations about the property, and accordingly any information given is entirely without responsibility on the part of the agents, seller(s) or lessor(s). 2. Photos etc: The photographs show only certain parts of the property as they appeared at the time they were taken. Areas, measurements and distances given are approximate only. 3. Regulations etc: Any reference to alterations to, or use of, any part of the property does not mean that any necessary planning, building regulations or other consent has been obtained. A buyer or lessee must find out by inspection or in other ways that these matters have been properly dealt with and that all information is correct. 4. VAT: The VAT position relating to the property may change without notice.

Spence Willard

Spence Willard

Sherbourne Street
Bembridge
Isle of Wight
PO35 5SB

+44 (0)1983 873000

Reference: 34172422

Request a viewing for this property

Simply fill out the form below or alternatively call us on 020 7839 0888

* Mandatory fields