2 Bedroom Detached
£475,000
Torcross, Kingsbridge

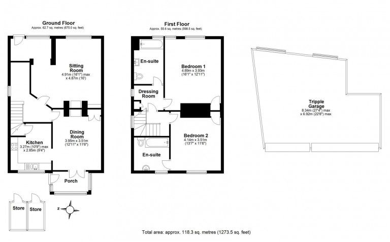
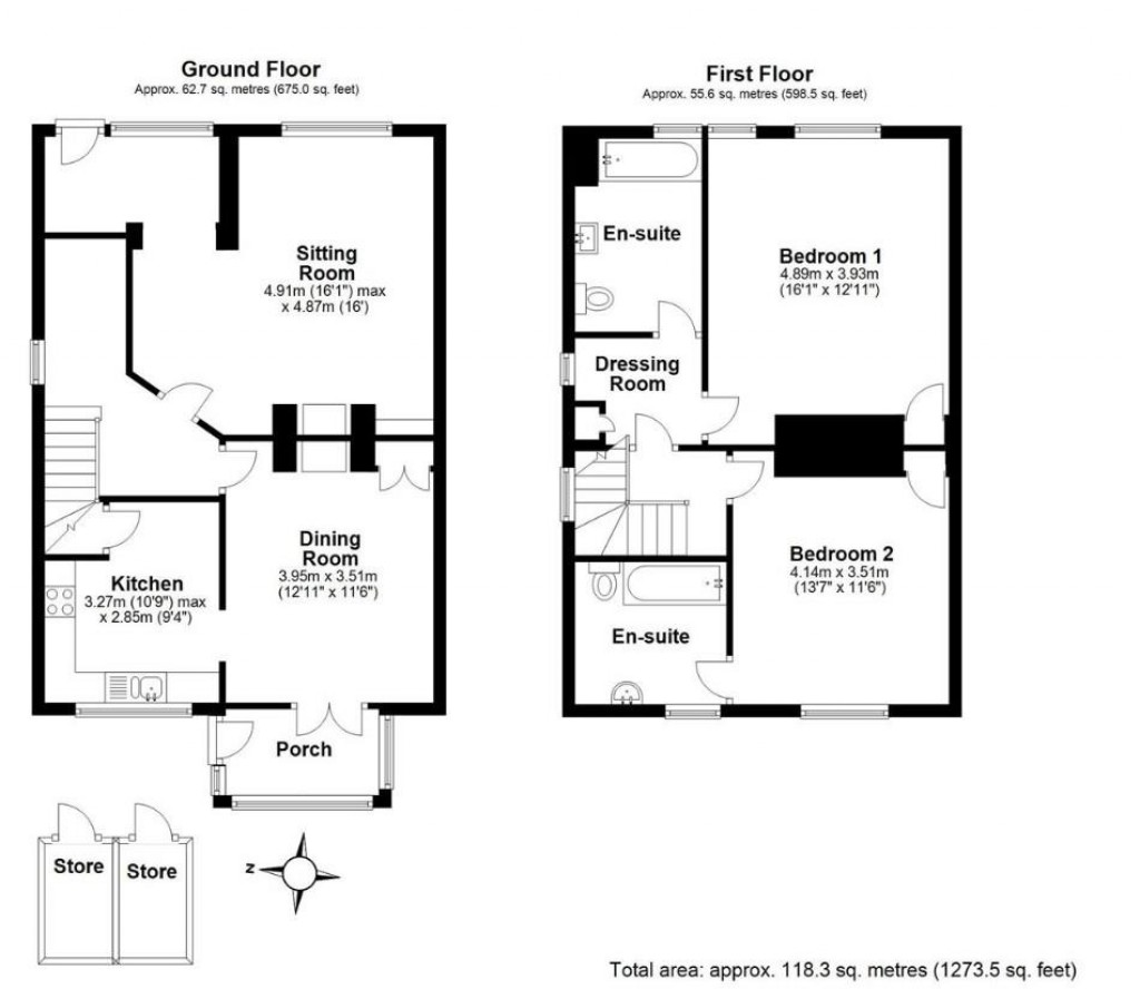
Floorplans For Torcross, Kingsbridge
EPC Graph for Torcross, Kingsbridge

Description


A detached, beach-side property with full planning to re-develop into a fabulous modern, contemporary dwelling, currently with two double bedrooms, (one with en-suite) and family bathroom with spectacular unobstructed sea views. Separate detached triple garage available by separate negotiation. Freehold. Council Tax Band C. EPC Rating E.

Situation - Torcross is a pretty coastal village, nestling between the southern end of Slapton Sands and the fresh water lake of Slapton Ley National Nature Reserve. Situated on the South West Coastal Path in an Area of Outstanding Natural Beauty, with much of the surrounding coastline being owned by the National Trust. The village has a well-known pub and a bar/restaurant and is within walking distance of a farm shop with a butchery, deli, plant centre, brewery and cafe restaurant. The village is almost equi-distant between Kingsbridge and Dartmouth, each of which has their own extensive and delightful range of services and amenities including a primary and secondary schools.

Description - A detached property with uninterrupted sea views towards Start Point and around to Dartmouth, with planning permission granted to create a stunning modern, contemporary home.

Accommodation - Originally built in 1906 The Nest is a very well presented detached property that boasts magnificent full sea views. Currently run as a successful holiday let. The property has full planning granted to create a stunning coastal contemporary home. The accommodation currently provides:

From the private paved terrace, door into a wonderful sitting room to the front overlooking the sea with typical period features including picture rails & pine stripped doors, wood burner. Inner hall with study area and access into the dining room located to the rear of the property, feature fireplace with inset cupboards, door to the porch and an adjoining kitchen with a range of painted wall and base units with spaces for appliances and built in larder. A glazed porch to the rear with access to the rear courtyard.

On the first floor the master bedroom is a generous room with far-reaching sea views, built in cupboard, whilst bedroom two overlooks the Ley, has a built in cupboard and an en-suite bathroom. The family bathroom is complete with a bath, with shower over, pedestal wash hand basin, WC.

Outside - The Nest can be accessed by foot from the main road through Torcross, a locked wooden gate leads into a west facing courtyard where there is a detached store housing the boiler, with plumbing for a washing machine.

To the front of the of the property is a large paved terrace, ideal for taking in the views and al fresco dining.

Planning Permissions - Planning permission has been granted for a contemporary home with reverse level living, balcony with stunning sea views. Ref: 0732/23/HHO

Agents Note - Please note that some of the images shown are CGI's. If you are in doubt which ones are computer generated images, please contact the office. They are included to show how the house could be altered in accordance with the approved planning permission.

Services - Mains water, electric and drainage with oil fired central heating. Superfast broadband is available at this location, various mobile networks are available at this location (OfCom).

Lot 2 - The nearby triple garage, with battery power and battery operated up and over doors is available by separate negotiation. The garage provides parking for three vehicles.

Tenure - Freehold.

Local Authority - South Hams District Council, Follaton House, Plymouth Road, Totnes, Devon, TQ9 5NE.

Directions - From our office follow the A379 out of Kingsbridge all the way to Torcross where The Nest will be found on the front sea front.

Viewing Arrangements - Strictly by appointment please through our Kingsbridge branch. The property is currently a holiday let and normally viewings are available during the change over day (Saturday), contact us to find out more.

Stags

Stags

83 Fore Street
Kingsbridge
Devon
TQ7 1AB

+44 (0)1548 853131

Reference: 34170566

Request a viewing for this property

Simply fill out the form below or alternatively call us on 020 7839 0888

* Mandatory fields