Land
£450,000
Blackawton, Totnes

Floorplans For Blackawton, Totnes

Description


A rare opportunity to create a bespoke home in a beautiful rural setting on the outskirts of Blackawton, with planning permission for a detached dwelling set within meadow and orchard grounds. EPC Band: Exempt: Building plot.

Situation - The Old Dairy enjoys a rural setting on the outskirts of Blackawton, a highly desirable South Hams village surrounded by unspoilt countryside yet within easy reach of Totnes, Dartmouth and the South Devon coastline.

The village itself offers a thriving community with a well-regarded primary school, local shop, pub, church and village hall. Secondary schooling is available in Dartmouth and Kingsbridge, with a grammar school in Torquay.

The nearby town of Dartmouth provides a wide range of shopping, cultural and leisure facilities as well as a marina, while Totnes offers a mainline railway station with services to London Paddington in under three hours. The area is well known for its stunning beaches, sailing waters, golf courses and woodland walks, all of which make this location particularly attractive.

Description - Formerly part of a traditional farmstead, The Old Dairy presents an exciting opportunity to build a high-quality home in a superb rural position. Extending to approximately 2.87 acres of meadow and orchard with woodland and a meandering stream, the site provides an idyllic environment with scope for landscaped gardens, parking and amenity space.

The approved design, created by BBH Architects, combines contemporary living with countryside surroundings, with features such as bi-fold doors opening to take full advantage of the views.

Outside - The Old Dairy extends to approximately 2.86 acres, combining meadow, orchard and areas of light woodland with a stream running through the land. The setting is peaceful and unspoilt, with a mix of open ground and more sheltered corners that provide variety and interest throughout the seasons. It offers ample scope for gardens, amenity space and enjoying the natural surroundings.

Directly outside the proposed dwelling, plans include a terrace designed to take advantage of the outlook, creating an ideal spot for alfresco dining and entertaining.

Access is via a shared lane, giving the property a tucked-away feel while still being within easy reach of the village. The outlook across the valley and surrounding countryside makes the location particularly appealing for those seeking a rural lifestyle.

Planning - Planning permission has been granted by South Hams District Council under reference 1941/24/VAR for the demolition of the former dairy building and erection of a detached dwelling.

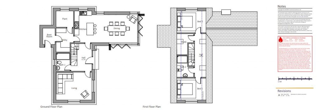
The approved scheme provides for a property of approximately 1,350 sq.ft. with two bedrooms, study, open-plan kitchen/dining room, utility, living room, bathroom, shower room and WC. Works have commenced on site, including footings, representing a material start to the development that has been signed off by building control.

Full planning information, including the decision notice and architect's drawings, is available on the South Hams District Council website or from the agents upon request.

Services - Mains electricity connected. Water via private borehole. Heating options include air source or ground source heat pumps, with the latter having been planned for installation in the field across the stream to provide hot water and heating. Grants may be available to support renewable systems. Purchasers should make their own enquiries regarding service connections.

Directions - From Totnes, take the A381 towards Kingsbridge and Dartmouth, passing through Harbertonford and Halwell. At Totnes Cross, turn left onto the A3122 signposted Dartmouth. After approximately two miles at Forces Cross, turn right signed Blackawton. Continue for 1.1 miles and at the T-junction turn right into the village. Drive through the village, passing the George Inn and village shop on the left and the church on the right. Continue on the road signed Millcombe and out of the village. The Old Dairy will be found on the left after Lilac Cottage.

What3words: ///wreck.surprise.transmits

Disclaimer - The computer-generated images (CGIs) featured in this brochure are for illustrative purposes only and are intended to provide a general indication of the final appearance of the property. They may not represent exact finishes, materials, or specifications. Details are subject to change and should not be relied upon as accurate representations of the completed development.

Prospective purchasers are advised to consult with our sales team to verify all features, boundaries and specifications.

Stags

Stags

The Granary
Totnes
Devon
TQ9 5GN

+44 (0)1803 865454

Reference: 34169516

Request a viewing for this property

Simply fill out the form below or alternatively call us on 020 7839 0888

* Mandatory fields