3 Bedroom Terraced
£175,000
Chittlehampton

Floorplans For Chittlehampton Floorplans For Chittlehampton Floorplans For Chittlehampton Floorplans For Chittlehampton
EPC Graph for Chittlehampton

Description


A fascinating Grade II listed period cottage for complete renovation set in one of the most popular villages in North Devon. Planning consent for complete re-modelling to provide hall, living room, open plan kitchen/dining room, larder, utility, cloakroom and three bedrooms (all en-suite). Enclosed rear walled garden. Council Tax Band C, EPC Band G. Freehold.

Situation - This fascinating Grade II listed property is set on the eastern side of the historic village Square of Chittlehampton. The village is one of the most sought after in the area and has a fine church, which dominates the Square and has the second tallest church tower in Devon. There is also a Post Office/general stores and very popular public house, The Bell Inn.
The market town of South Molton is five miles to the east and is able to meet most everyday requirements with a health centre, bank, Post Office, good range of shops, a supermarket, garage, restaurant and pubs. A wider range of facilities and commercial venues are available in the regional centre of Barnstaple, about eight miles to the north-west. Both Exmoor National Park to the north east, Dartmoor National Park to the south and the renowned North Devon coastline are all within easy reach by car.

Description - Ardlui is a fascinating property believed to date from the mid 16th Century as an open hall house with subsequent alterations over the following centuries. There are many fine features typical of its age including smoke blackened thatch, winder staircase and an interesting gallery in the rear wing of the cottage.

The property forms a significant part of the village, both in its character and appearance in the context of the village Square and the history of Chittlehampton itself.

Planning Permission And Listed Building Consent - Both planning permission and listed building consent (Ref: 73180 and 73181) were granted on 18th October 2021 to undertake significant alterations, remodelling and improvements to the cottage.
Planning permission has also been granted for conversion of the garage and shippon into ancillary accommodation (Ref 66029) Full detailed plans and associated documents are available on the Local Authority's planning portal at planning.northdevon.gov.uk.

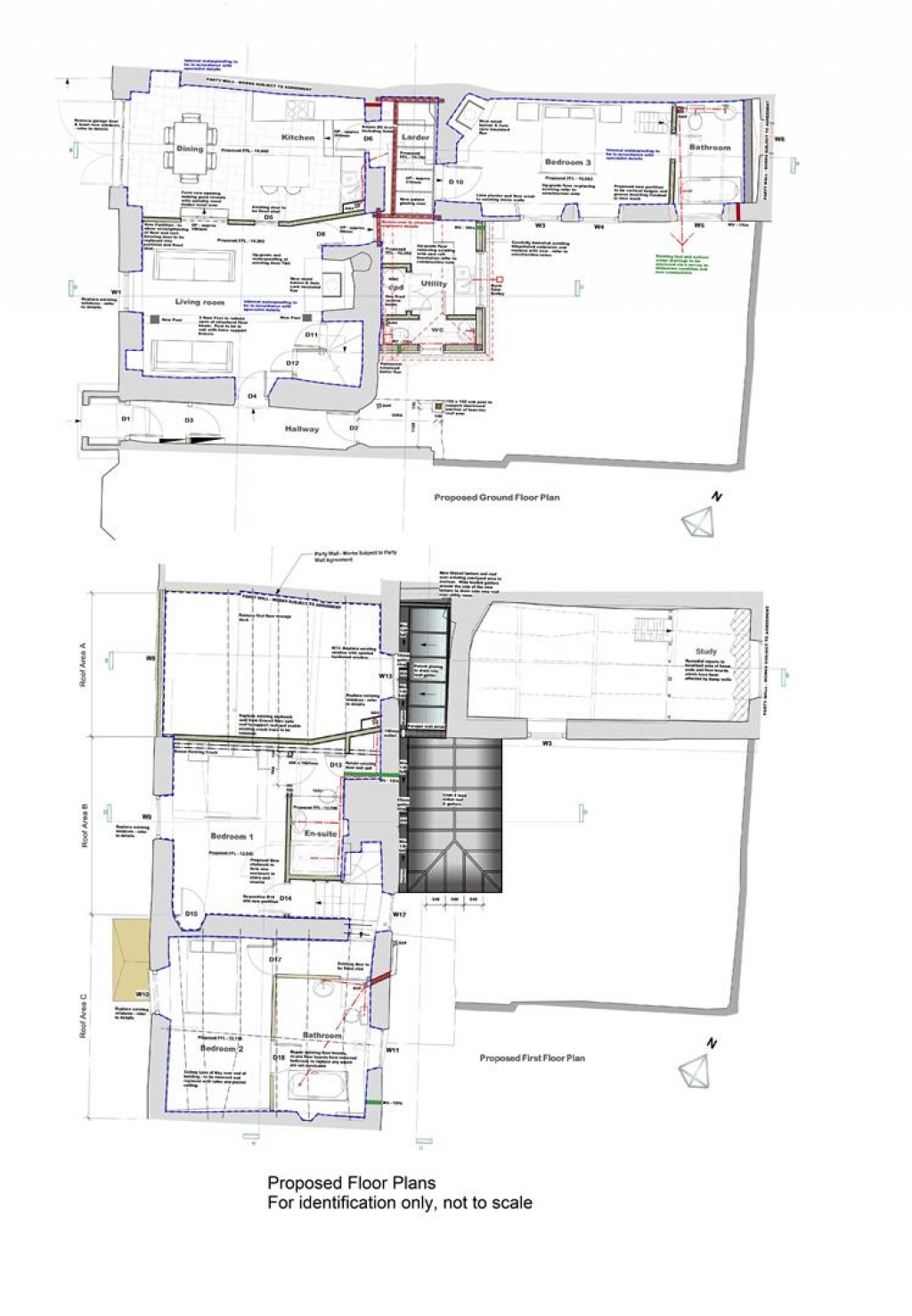
The plans for the GROUND FLOOR provide for a cross passage ENTRANCE HALL, LIVING ROOM with inglenook fireplace, open plan KITCHEN/DINING ROOM, LARDER, UTILITY ROOM, CLOAKROOM and a large DOUBLE BEDROOM with high vaulted ceiling and an EN-SUITE BATHROOM. Above this room is a mezzanine STUDY.

Planning permission has also been granted for conversion of the garage and shippon into ancillary accommodation (Ref 66029 18.12.2018

On the FIRST FLOOR in the main part of the cottage the plans provide for TWO FURTHER DOUBLE BEDROOMS, both with EN-SUITE BATH or SHOWER ROOMS.

Outside - To the front is a cobbled path and unrestricted parking in the village Square. To the rear is a good-sized, enclosed and mainly gravelled walled garden providing much privacy.

Services & Additional Information - All mains services currently connected.

Viewing - Strictly by confirmed prior appointment please through the sole selling agents, Stags on 01769 572263.

Directions - The property will be easily found on the eastern side of the Square in Chittlehampton.

What3words Ref: boxing.similar.sleepless

Stags

Stags

29 The Square
South Molton
Devon
EX36 3AQ

+44 (0)1769 572263

Reference: 34166997

Request a viewing for this property

Simply fill out the form below or alternatively call us on 020 7839 0888

* Mandatory fields