Land
£250,000
Neopardy, Crediton

Floorplans For Neopardy, Crediton Floorplans For Neopardy, Crediton

Description


A development for 4 highly sought-after bungalows with private gardens and parking.

Situation - The building plots are located in a beautiful rural position to the south of the hamlet of Neopardy and 1.7 miles from the popular village of Yeoford which has a pub, church, primary school and train station on the Tarka line (Exeter to Barnstaple). The town of Crediton (3.5 miles) has a comprehensive range of day-to-day amenities with a shop, medical centre, pub, church and Queen Elizabeth's School (Ofsted Good). The nearby city of Exeter (11 miles) together with two railway stations to Waterloo and Paddington also offers an extensive range of facilities, along with an international airport. There is excellent access to the A30 (3.1 miles), leading west to Cornwall and east to Exeter and the motorway network. A few miles to the south is the Dartmoor National Park which has many thousands of beautiful, unspoilt acres in which to pursue a number of country pursuits.

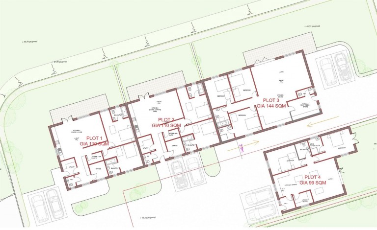
Description - A superb opportunity to develop four highly desirable bungalows, the building plots at Franklands Cottage benefit from full planning permission and offer the chance to create a bespoke collection of single-storey homes, each with private gardens and parking. Situated in a peaceful yet accessible position, the site lies just outside the popular village of Yeoford. Originally approved under Class Q, the site now has the benefit of a full fallback planning permission for the construction of four bungalows. The approved scheme comprises three terraced bungalows and one link-detached bungalow, offering a mix of 2 and 3 bedroom accommodation totalling approximately 463 sqm. An ideal prospect for developers seeking a well-located, high-quality scheme.

Planning Consent - On the 17th April 2025 planning consent (Ref; 24/01570/FULL) was obtained for the erection of 4 dwellings and associated works following demolition of an agricultural building utilising the Class Q fallback position 24/00371/PNCOU. Further information and a full list of the conditions can be found on the Mid Devon planning portal.
Plot 1 = 110 sqm GIA
Plot 2 = 110 sqm GIA
Plot 3 = 144 sqm GIA
Plot 4 = 99 sqm GIA

S106 - There is no community infrastructure levy (CIL) payable.

Local Authority - Mid Devon District Council - https://www.middevon.gov.uk/

Services - Purchasers would need to make their own investigations into the availability of electricity and water, however, surrounding properties are mains connected. The purchaser will need to install a sewage treatment plant (STP). The neighbouring property (Franklands Cottage) will retain the rights to be connected to the shared STP.

Directions - From the Woodleigh Junction on the A30 dual carriageway to the west of Exeter (Cheriton Bishop) leave at this junction and then take the 3rd exit back, signposted Tedburn St Mary, crossing over the A30 and then immediately thereafter turn left down a lane, signposted Crediton. Continue on this country road for 3 miles whereupon the building plots at Franklands Cottage will be on the right.
What3words - noun.games.proven

Services/Rights/Reservations - There will be rights and reservations covering access, services, maintenance and boundaries.

Viewings - Strictly by appointment through Stags. Please call on 01392255202.

Agents Note - Please note the owners have not elected to tax the property for VAT purposes.

Stags

Stags

21 Southernhay West
Exeter
Devon
EX1 1PR

+44 (0)1392 255202

Reference: 34166846

Request a viewing for this property

Simply fill out the form below or alternatively call us on 020 7839 0888

* Mandatory fields