Description
Situated in the tranquil hamlet of Hinton, just outside Mudford, this enchanting Grade II listed thatched residence offers a rare blend of historic charm and modern comfort. Set within approximately four acres of well maintained gardens, grounds, and paddock, the property includes a spacious four-bedroom main house and a fully self-contained one-bedroom annexe. EPC Band E
Situation - Located in the hamlet of Hinton, close to the village of Mudford, the property enjoys a quiet rural atmosphere while remaining close to local amenities and transport links. Yeovil is just two miles away, with Sherborne, Castle Cary, and the A303 all within easy reach. The area is well-served by reputable schools including Hazelgrove, Millfield, and Sherborne Prep, Boys and Girls Schools.
Description - This exceptional home presents a rare opportunity to own a piece of Somerset's heritage. Whether you're seeking a serene country retreat or a versatile family residence, this Grade II listed property is sure to impress.
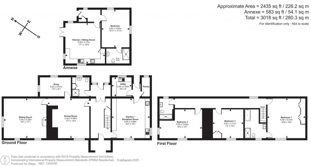
Accommodation - The main house welcomes you with a generous hallway leading to the principal reception rooms. The large living room, with exposed beams and a wood-burning stove, provides a cosy space for family gatherings. Adjacent to this is a formal dining room, ideal for entertaining, with natural light streaming through its windows.
The farmhouse-style kitchen is the heart of the home, featuring bespoke cabinetry, a Belfast sink, and an AGA cooker. A breakfast area overlooks the expansive rear garden, offering a perfect spot for casual meals. The ground floor also includes a versatile study or snug, which could serve as an additional bedroom, shower room and utility.
Upstairs, the property boasts three well-proportioned bedrooms, each with its own unique character. The master bedroom benefits from an en-suite bathroom and stunning views across the surrounding countryside. The remaining bedrooms share access to a thoughtfully designed family shower room.
The Stables - Annexe - The separate annexe provides flexible accommodation, ideal for guests, extended family, or potential rental income. It includes a modern open-plan living area with a fully equipped kitchen, a comfortable double bedroom, and a stylish bathroom. The annexe also features underfloor heating, solar panels, and an EV charging point, adding eco-conscious appeal.
Outside - Approaching the property, you'll find ample parking to the front. The home's traditional thatched roof, recently maintained by the current owners, complements its striking stonework and period features, preserving the timeless character of this countryside retreat.
The grounds extend to approximately 4 acres and include mature gardens, an island paddock with fishing rights, and a variety of outbuildings that blend period charm with modern utility. The outdoor space offers endless possibilities for gardening, recreation, or simply enjoying the peaceful countryside setting.
Agents Notes
A public footpath runs from Hinton Road along the driveway and across the paddock to the weir at the southernmost corner. Somerset Council has temporarily closed this section due to the removal of the iron bridge, which could no longer support foot traffic. A new bridge at an alternative location is proposed within the coming years.
Services - Mains water and electricity are connected. .....
Broadband : Standard and Superfast (ofcom).
Mobile : EE, three, O2 and Vodafone (ofcom-some service may be limited)
Flood Risk Status - very low risk (Environment Agency)
EPC Ratings: The Stables - C | Main Residence - E
Viewings - Strictly by appointment through the vendors selling agents. Stags, Yeovil office telephone 01935 475000.
Directions - From Yeovil head North towards Mudford and Marston Magna. After having left the town, continue through the village of Mudford and after a further 0.25 miles turn left signposted Hinton. Green Close Farm will be found 0.2 miles on the left hand side.