4 Bedroom Detached
£750,000
Watling Street East, Towcester, NN12

Floorplans For Watling Street East, Towcester, NN12

Description


Watling Mews is an exclusive gated community, comprising just six bespoke, individual properties, built to exacting standards by recognised local builders, Fairline Homes.

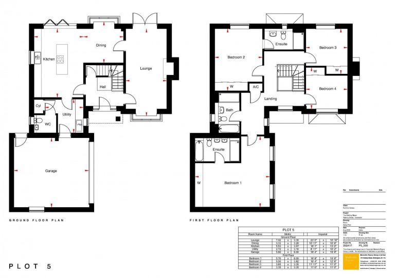
Plot 5 is an impressive, substantial, two storey, detached family home, with the spacious 2,003 square feet of accommodation comprising entrance hall, dual aspect sitting room, live-in kitchen / dining room, utility, cloakroom, large master bedroom with ensuite bath & shower room, guest bedroom with en-suite, two further double bedrooms and family bathroom. There is driveway parking to the front, providing access to the integral double garage, gated pedestrian access leads to a generous paved seating area and garden, backing on to the Mill Stream with views beyond over the Water Meadows.

Towcester - Situated within walking distance of the thriving market town of Towcester's many amenities including shops, bars and restaurants, primary and secondary schools, doctor and dentist surgeries and a leisure centre.

There is good access to the main arterial roads including the M1 motorway at junction 15a, the M40, A5 and A43 with train stations at Milton Keynes and Northampton offering services to London Euston with journey times of around 35 minutes and 50 minutes respectively.

Sporting activities in the area include rugby, hockey, tennis, netball and cricket at the nearby Towcestrians Sports Club, golf at Silverstone and Whittlebury Hall, sailing at Draycote Water, Pitsford and Hollowell Reservoirs, and of course the world famous motor racing at Silverstone.

Accomodation - Watling Mews is an exclusive gated community, comprising just six bespoke, individual properties, built to exacting standards by recognised local builders, Fairline Homes.
Situated close to the centre of the thriving Market Town of Towcester, with all amenities within easy walking distance, these quality properties provide perfect homes for all ages. Each property has a minimum of two parking spaces offering opportunities for both drivers and non-drivers to enjoy the central location. The properties will benefit from high EPC ratings, and low running costs, enhanced by the use of Air Source heat pumps. Those making early reservations will be invited to choose fixtures and fittings adding that individual touch.

Plot 5 is an impressive, substantial, two storey, detached family home, with the spacious 2,003 square feet of accommodation comprising entrance hall, dual aspect sitting room, live-in kitchen / dining room, utility, cloakroom, large master bedroom with ensuite bath & shower room, guest bedroom with en-suite, two further double bedrooms and family bathroom. There is driveway parking to the front, providing access to the integral double garage, gated pedestrian access leads to a generous paved seating area and garden, backing on to the Mill Stream with views beyond over the Water Meadows.

Local Authority - West Northamptonshire Council
The Forum, Moat Lane
Towcester, NN12 6AD

Council Tax Band: New build- rate not yet available

Viewing Arrangements - Strictly by prior appointment via the selling agents, Howkins and Harrison. Tel:01327-353575.

Fixtures And Fittings - Only those items in the nature of fixtures and fittings mentioned in these particulars are included in the sale. Other items are specifically excluded. None of the appliances have been tested by the agents and they are not certified or warrantied in any way.

Services - The following services are connected to this property :
Mains gas, electricity, water and drainage.

None of the above services have been tested and purchasers should note that it is their specific responsibility to make their own enquiries of the appropriate authorities as to the location, adequacy and availability of mains water, electricity, gas and drainage services.

Floorplan - Howkins and Harrison provide these plans for reference only - they are not to scale.

Important Notice - Every care has been taken with the preparation of these Sales Particulars, but complete accuracy cannot be guaranteed. In all cases, buyers should verify matters for themselves. Where property alterations have been undertaken buyers should check that relevant permissions have been obtained. If there is any point, which is of particular importance let us know and we will verify it for you. These Particulars do not constitute a contract or part of a contract. All measurements are approximate. The Fixtures, Fittings, Services & Appliances have not been tested and therefore no guarantee can be given that they are in working order. Photographs are provided for general information and it cannot be inferred that any item shown is included in the sale. Plans are provided for general guidance and are not to scale.

Howkins & Harrison

Howkins & Harrison

98A Watling St
Towcester
Northamptonshire
NN12 6BT

+44 (0)1327 353575

Reference: 34153028

Request a viewing for this property

Simply fill out the form below or alternatively call us on 020 7839 0888

* Mandatory fields