4 Bedroom Semi-Detached
£399,000
Littlemead Lane, Exmouth

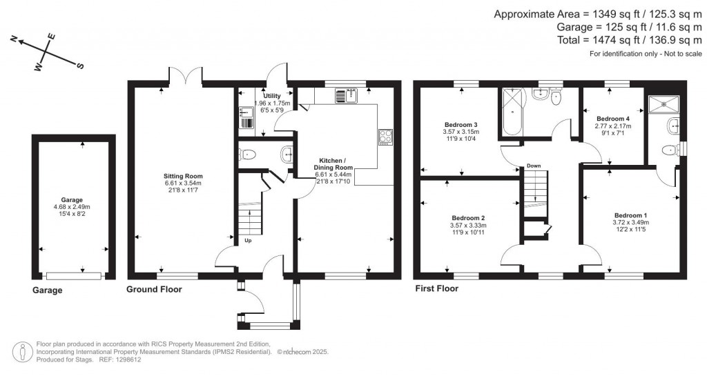
Floorplans For Littlemead Lane, Exmouth
EPC Graph for Littlemead Lane, Exmouth

Description


A modern four bedroom semi-detached home with garage, off-road parking, and garden, located in a quiet cul-de-sac and offered with no onward chain. EPC: C, Freehold.

Situation - The property is set in a cul-de-sac position within a popular residential area of Exmouth, a thriving coastal town on the east Devon coastline. Exmouth is surrounded by beautiful Devon countryside, yet lies just 9.5 miles from the Cathedral city of Exeter, which offers an intercity railway station, airport, and access to the M5 motorway. The town boasts over three miles of sandy beaches, a bustling marina, and numerous leisure opportunities including sailing, water sports, an estuary cycle path, and the renowned Woodbury Park Golf and Country Club. The town centre offers a wide range of shops, restaurants, and other amenities.

Description - 3 Estuary View is a modern four bedroom semi-detached property offering generous accommodation arranged over two floors. The property benefits from a single garage, driveway parking, and an enclosed rear garden, and is offered to the market with no onward chain. While the property would now benefit from some general updating, it presents an excellent opportunity to create a comfortable family home in a desirable location.

Accommodation - The ground floor is approached via an entrance porch leading into the hallway. To one side is a spacious sitting room with double doors opening directly to the rear garden. On the opposite side of the hallway is the open-plan kitchen/dining room, fitted with a range of units and providing ample space for a dining table. A door leads from the kitchen to a useful utility room, which offers additional storage, a sink, and space/plumbing for white goods. A cloakroom/WC completes the ground floor.

On the first floor, the principal bedroom benefits from an en-suite shower room. There are three further bedrooms and a family bathroom.

Outside - The rear garden is of good size and mainly laid to lawn, with a patio seating area directly adjoining the property, ideal for outdoor dining. To the front, there is a single garage with parking for one vehicle in front.

Services - Utilities: Mains electric, mains water, mains gas, telephone and broadband
Drainage: Mains drainage
Heating: Gas
Tenure: Freehold
EPC: C(77)
Council tax band: D
Standard, ultrafast and superfast broadband available. EE, O2, Three and Vodafone mobile networks likely to be available (Ofcom).

Stags

Stags

21 Southernhay West
Exeter
Devon
EX1 1PR

+44 (0)1392 255202

Reference: 34140212

Request a viewing for this property

Simply fill out the form below or alternatively call us on 020 7839 0888

* Mandatory fields