5 Bedroom Detached
£550,000
Chudleigh Road, Exeter

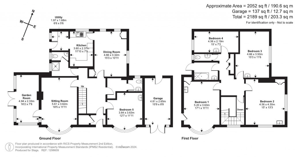
Floorplans For Chudleigh Road, Exeter
EPC Graph for Chudleigh Road, Exeter

Description


A spacious detached home offering flexible accommodation, a generous plot with ample parking, and scope for cosmetic improvement, situated in the sought-after Alphington area. EPC: C, No onward chain.

Situation - Alphington is situated on the south-western outskirts of Exeter and provides excellent access to major routes including the M5, A30 and Devon Expressway. The village offers a church, shop, post office, public house, doctor's surgery and primary school, along with a sports field and clubhouse, home to Alphington's football and cricket clubs. The area is well-served by public transport and is within easy reach of Exeter city centre, while nearby green spaces and riverside walks offer a pleasant lifestyle balance. Exeter itself is a vibrant and well-connected city with mainline rail links to London, a renowned university, excellent schooling, and a wide range of cultural, sporting and leisure facilities.

Description - Budlake is a well-proportioned detached property set within its own good-sized plot, approached via a private drive leading to a generous parking area with space for multiple vehicles. The accommodation was formerly utilised as a nursing care facility and offers excellent versatility with scope for cosmetic updating, making it an ideal opportunity for those wishing to personalise their next home.

Accommodation - A front door opens to an inner porch, which in turn leads into the hallway. The ground floor offers four versatile reception rooms, adaptable for use as sitting rooms, dining rooms, studies, or ground-floor bedrooms, together with a kitchen and adjoining utility room. On the first floor, there are four bedrooms and a family bathroom. The property also benefits from an integral garage and is offered for sale with no onward chain.

Outside - The property is set back from the road and approached via a private driveway leading to a generous parking area suitable for multiple vehicles, along with access to the garage. Gardens wrap around the property, offering both lawned and paved areas with potential for landscaping.

Services - Utilities: Mains electric, mains water, mains gas, telephone and broadband
Drainage: Mains drainage
Heating: Gas
Tenure: Freehold
EPC: C(73)
Council tax band: F
Standard, ultrafast and superfast broadband available. EE, O2, Three and Vodafone mobile networks likely to be available (Ofcom).

Stags

Stags

21 Southernhay West
Exeter
Devon
EX1 1PR

+44 (0)1392 255202

Reference: 34140160

Request a viewing for this property

Simply fill out the form below or alternatively call us on 020 7839 0888

* Mandatory fields