3 Bedroom Semi-Detached
£250,000
Hawthorn Way, Burwell

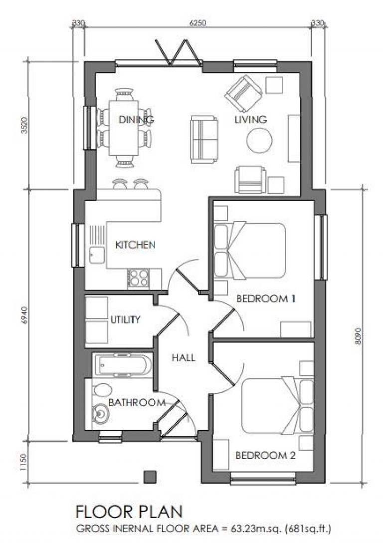
Floorplans For Hawthorn Way, Burwell
EPC Graph for Hawthorn Way, Burwell

Description


*PLANNING PERMISSION FOR DETACHED BUNGALOW* A great opportunity to acquire a 3 bedroom semi-detached property with a large garden that benefits from planning permission for the construction of a detached bungalow to the side replacing the existing garage and outbuilding. Please note the property is of non-standard construction and is offered with NO ONWARD CHAIN.

Entrance Hall - with double glazed entrance door, stairs up to the first floor, laminate flooring, radiator.

Living Room - with 2 windows overlooking the rear garden 2 radiators, laminate flooring, built-in storage cupboard.

Kitchen - with wall and base units, electric oven, 4 ring electric hob with extractor hood over, tiled flooring, stainless steel sink, further space and plumbing for appliances, door to the side aspect and a window to the front aspect.

First Floor -

Landing - with loft access and a window to the front aspect.

Bedroom 1 - with a built-in wardrobe, radiator, window overlooking the rear garden.

Bedroom 2 - with a built-in storage cupboard, radiator, window overlooking the rear garden.

Bedroom 3 - with a built-in storage cupboard, radiator, window to the front aspect.

Family Bathroom - with a side panel bath with electric shower over, pedestal wash hand basin, low level WC, radiator, tiled flooring, extractor fan, window to the side aspect.

Outside - To the front of the property is a shingled driveway enclosed by hedgerow borders with an outbuilding comprising a shed/utility space, storage room and cloakroom and a GARAGE.

To the rear of the property is a large laid to lawn garden with mature shrub borders and enclosed by timber fencing.

Planning permission (REF: 24/00022/FUL and 24/00022/REFAPP) for the construction of a detached bungalow, following the demolition of the existing garage and outbuilding. The current garden and driveway can be split to allow sufficient access for both the existing house and proposed new bungalow.

Sales Agents Notes - Please note the property is of non standard construction (Airey).

Please be aware there is a restrictive covenant on this property, please contact the office for information.

For more information on this property, please refer to the Material Information Brochure on our website.

Cheffins

Cheffins

2 Black Bear Court
Newmarket
Suffolk
CB8 9AF

+44 (0)1638 663228

Reference: 34117723

Request a viewing for this property

Simply fill out the form below or alternatively call us on 020 7839 0888

* Mandatory fields