6 Bedroom Semi-Detached
£475,000
Bridge Road, Torquay

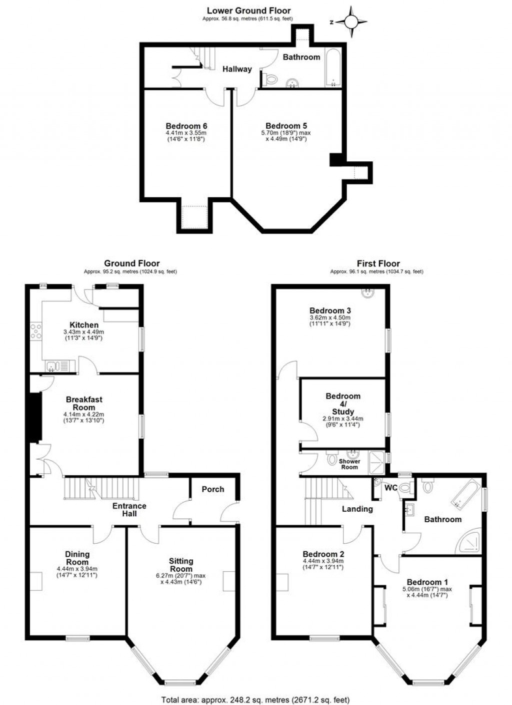
Floorplans For Bridge Road, Torquay
EPC Graph for Bridge Road, Torquay

Description


A characterful four or Six bedroom Victorian villa, walking distance to the beach with Large driveway, three reception rooms, rear garden and double bedrooms. EPC Band E

Description - A grand Victorian villa in the heart of Torquay's English Riviera. Dating back to around 1880, this elegant semi-detached home offers exceptional space set across three levels, full of period charm with high ceilings, marble fireplaces, bay windows, and ornate cornicing. The ground floor boasts three versatile reception rooms and a generous kitchen/breakfast room, while the upper level offers four double bedrooms, a family bathroom, additional shower room and separate WC. The lower ground floor provides even more flexibility with two large rooms and a bathroom-perfect for guest accommodation or multi-generational living. Maximum head height 6'1"

Outside, the property impresses just as much, with a gated gravel drive providing parking for several vehicles or even a boat, plus private gardens to the side and rear complete with decking, mature trees, and low-maintenance beds. Within walking distance of beaches, the harbour, shops, restaurants, top-rated schools, and both Torre and Torquay train stations, this home blends coastal convenience with timeless Victorian character. With up to six bedrooms, three bathrooms, and beautifully proportioned living spaces, it's a rare opportunity to secure a landmark family residence on the Riviera.

Stags

Stags

6 Vaughan Parade
Torquay
Devon
TQ2 5EG

+44 (0)1803 200160

Reference: 34116758

Request a viewing for this property

Simply fill out the form below or alternatively call us on 020 7839 0888

* Mandatory fields