2 Bedroom Detached
£395,000
Near George Nympton

Floorplans For Near George Nympton
EPC Graph for Near George Nympton

Description


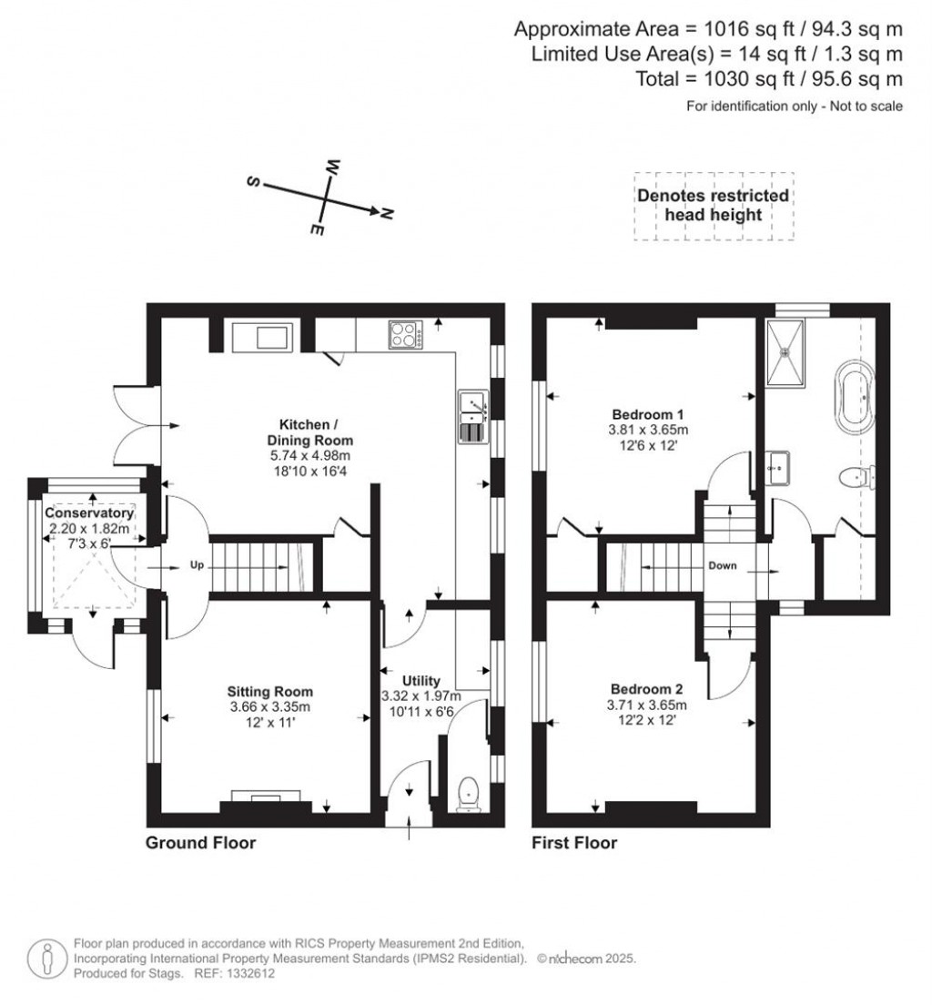
A charming detached cottage in a stunning setting with an outlook over open fields. Conservatory, living room, fitted kitchen/dining room, utility/boot room, cloakroom, two double bedrooms and bathroom. Much room and scope to extend (stp). Large gardens and grounds (0.22 acre) with plentiful parking. EPC Band D

Situation - Trayne View is situated in a lovely rural setting with fine views over adjoining farmland yet is only just over half a mile from the charming village of George Nympton which has a pub, The Castle Inn, Church and village hall which holds regular events. The village itself lies only two miles from the popular and thriving market town of South Molton which has a comprehensive range of shops, commercial venues and amenities including schooling to secondary level. The A361 (North Devon Link Road) bypasses the town and provides good access to Barnstaple to the North West and Tiverton and the M5 (J27) and Tiverton Parkway train station (London Paddington around 2 hours). Both the Exmoor National Park and the renowned North Devon Coastline are within easy reach by car.

Description - Of brick cavity construction under a slate roof, Trayne View is a delightful detached cottage set in a large plot of mature gardens and grounds amounting to just under a quarter of an acre in total. The cottage is well-presented throughout having been extensively modernised by the current owners over recent years and there is also considerable scope for further extension, subject to obtaining the necessary consents.

Accommodation - A side door leads into a UTILITY/BOOT ROOM with a tiled floor and a worktop with space and plumbing for a washing machine and space and vent for a dryer. Off this room is a CLOAKROOM with WC. The open-plan KITCHEN/DINING ROOM also has a tiled floor with the kitchen area fitted with a modern range of units, 1? bowl ceramic sink with mixer tap, integrated dishwasher and fridge freezer and fitted electric oven with induction hob and hood above. In the dining area is an under-stairs cupboard, former fireplace, currently with a sealed chimney but could be re-instated. Glazed double doors lead outside. A STAIR HALL leads through to the LIVING ROOM which has a fireplace with a slate hearth and wood-burning stove. Off the stair hall is a CONSERVATORY with door to outside.

On the FIRST FLOOR the landing splits three ways to TWO DOUBLE BEDROOMS, both taking full advantage of the wonderful views and the BATHROOM which is fitted with a modern suite comprising a freestanding bath, glazed shower cubicle, vanity wash basin, WC, heated towel rail and deep storage cupboard.

Outside - The property is approached off a country lane via a wide, double timber five bar gated entrance leading to the side of the cottage. There is plenty of room for parking numerous vehicles. Beyond is a lawned area bounded by hedges and mature trees.
To the western side of the cottage is an enclosed and sheltered garden, again mainly laid to lawn with some established trees and bounded by mature hedges. Outside of the glazed double doors from the kitchen/dining room is a slightly raised area of decking.

In total the whole plot extends to 0.22 ACRES.

Services And Further Information - Mains electricity and water. Private drainage system (septic tank and soakaway). Oil-fired central heating via radiators.
Mobile - Coverage available from all major providers (Ofcom).
Broadband - Standard and ultrafast available (Ofcom).

Viewing - Strictly by confirmed prior appointment through the sole selling agents, Stags on 01769 572263.

Directions - Approaching George Nympton from South Molton, drop down the hill into the village and take the second left turning opposite The Castle Inn public house. Stay on this road and leave the village. The property will be found after half a mile on the right.

What3words Ref: incline.universes.figs

Stags

Stags

29 The Square
South Molton
Devon
EX36 3AQ

+44 (0)1769 572263

Reference: 34102507

Request a viewing for this property

Simply fill out the form below or alternatively call us on 020 7839 0888

* Mandatory fields